32 (1F) Bernard Street, Leith, Edinburgh, EH6 6PR
- SIZE
Ask agent
- SECTOR
Office to lease
Lease details
- Lease available date:
- Ask agent
Key features
- First floor office within a traditional B-listed townhouse
- Available from 1st November 2024 on flexible terms
- Situated close to a wide range of cafes, bars and restaurants
- Short walk from ‘The Shore' tram stop
- Approximate Net Internal Area of 71.37 sq m (768 sq ft)
Description
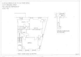
The subjects comprise an office premises arranged over first floor of a four storey and attic B-listed stone-built townhouse.
The office is accessed from a common stairwell and provides three office rooms with a separate staff room/kitchen and store.
The offices, overlooking Bernard Street and Timber Bush, are east facing and benefit from large sash and case windows providing plenty of natural light.
The toilet facilities are located in the basement.
Brochures
32 (1F) Bernard Street, Leith, Edinburgh, EH6 6PR
NEAREST STATIONS
Distances are straight line measurements from the centre of the postcode- Edinburgh Waverley Station1.9 miles
- Haymarket Station2.9 miles
- Brunstane Station3.5 miles
Notes
Disclaimer - Property reference 8308. The information displayed about this property comprises a property advertisement. Rightmove.co.uk makes no warranty as to the accuracy or completeness of the advertisement or any linked or associated information, and Rightmove has no control over the content. This property advertisement does not constitute property particulars. The information is provided and maintained by ALLIED SURVEYORS SCOTLAND, Edinburgh. Please contact the selling agent or developer directly to obtain any information which may be available under the terms of The Energy Performance of Buildings (Certificates and Inspections) (England and Wales) Regulations 2007 or the Home Report if in relation to a residential property in Scotland.
Map data ©OpenStreetMap contributors.





