
Alma Road, ST. ALBANS, AL1

- PROPERTY TYPE
End of Terrace
- BEDROOMS
5
- BATHROOMS
3
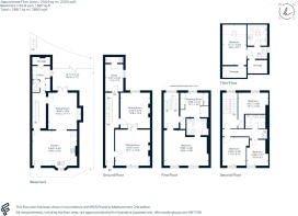
- SIZE
2,892 sq ft
269 sq m
- TENUREDescribes how you own a property. There are different types of tenure - freehold, leasehold, and commonhold.Read more about tenure in our glossary page.
Freehold
Key features
- Entrance Hall
- Sitting Room
- Dining Room
- Study
- Kitchen/Breakfast Room
- Living Room
- Utility room
- Store
- Five bedrooms
- En-Suite Bathroom
Description
You head into the entrance hall which leads into the principal living accommodation which comprises: sitting room, dining room, study and cloakroom. The lower ground floor has a large, well fitted kitchen/breakfast room, a further living room, the utility room, WC and a store. The first floor provides the principal bedroom suite including: an en-suite bathroom and spacious dressing room. On the second floor are three further double bedrooms and a family bathroom. The top floor provides another double bedroom, a bathroom and two eaves storage areas. Throughout the house are some high ceilings and delightful character features including sash windows with internal wooden shutters, dado rails, wood flooring and fireplaces.
Outside
To the rear is a low maintenance garden with a decked patio area and access to the off street parking for three cars at the rear of the property. Westerly aspect.
Situation
The historical city of St Albans offers a comprehensive range of shopping facilities within the city centre. St Albans is a Roman City of great historical interest, with an abundance of restaurants, cafes and bars. The Verulamium Park close by has approximately 100 acres of beautiful parkland and lake providing many leisure facilities. St Albans has an excellent selection of schooling both state and private.
For the commuter there is a fast one stop train link from St Albans City Station (which is also accessible along the Alban Way, a dedicated cycle route) to St Pancras International (with Eurostar direct to Brussels, Paris & Amsterdam) and directly onto the City. There is also access from the Abbey Station from which trains go to Watford Junction where there is the fast train into Euston station (approx. 20 minutes).
The surrounding countryside provides for an abundance of leisure activities including walking, riding, numerous golf courses, leisure centres and many areas of historical interest.
Property Ref Number:
HAM-55527Brochures
Brochure- COUNCIL TAXA payment made to your local authority in order to pay for local services like schools, libraries, and refuse collection. The amount you pay depends on the value of the property.Read more about council Tax in our glossary page.
- Band: G
- PARKINGDetails of how and where vehicles can be parked, and any associated costs.Read more about parking in our glossary page.
- Yes
- GARDENA property has access to an outdoor space, which could be private or shared.
- Private garden
- ACCESSIBILITYHow a property has been adapted to meet the needs of vulnerable or disabled individuals.Read more about accessibility in our glossary page.
- Ask agent
Alma Road, ST. ALBANS, AL1
Add an important place to see how long it'd take to get there from our property listings.
__mins driving to your place
Get an instant, personalised result:
- Show sellers you’re serious
- Secure viewings faster with agents
- No impact on your credit score
Your mortgage
Notes
Staying secure when looking for property
Ensure you're up to date with our latest advice on how to avoid fraud or scams when looking for property online.
Visit our security centre to find out moreDisclaimer - Property reference a1nQ500000F61IXIAZ. The information displayed about this property comprises a property advertisement. Rightmove.co.uk makes no warranty as to the accuracy or completeness of the advertisement or any linked or associated information, and Rightmove has no control over the content. This property advertisement does not constitute property particulars. The information is provided and maintained by Hamptons, St Albans. Please contact the selling agent or developer directly to obtain any information which may be available under the terms of The Energy Performance of Buildings (Certificates and Inspections) (England and Wales) Regulations 2007 or the Home Report if in relation to a residential property in Scotland.
*This is the average speed from the provider with the fastest broadband package available at this postcode. The average speed displayed is based on the download speeds of at least 50% of customers at peak time (8pm to 10pm). Fibre/cable services at the postcode are subject to availability and may differ between properties within a postcode. Speeds can be affected by a range of technical and environmental factors. The speed at the property may be lower than that listed above. You can check the estimated speed and confirm availability to a property prior to purchasing on the broadband provider's website. Providers may increase charges. The information is provided and maintained by Decision Technologies Limited. **This is indicative only and based on a 2-person household with multiple devices and simultaneous usage. Broadband performance is affected by multiple factors including number of occupants and devices, simultaneous usage, router range etc. For more information speak to your broadband provider.
Map data ©OpenStreetMap contributors.








