
Land for sale
Horton, Telford, TF6
- PROPERTY TYPE
Land
- BEDROOMS
3
- BATHROOMS
2
- SIZE
Ask agent
Key features
- Development Opportunity
- Additional Development *STP
- Fantastic Investment Opportunity
- Great Location
- Site Investigation Report Available
Description
**OFFERS INVITED ON A SUBJECT TO PLANNING BASIS **
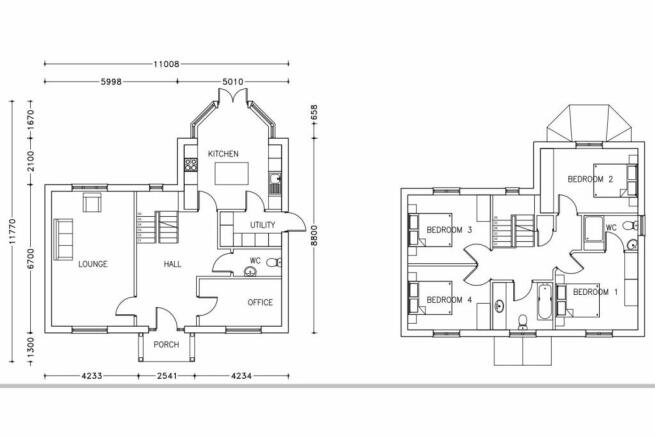
Planning was granted RE: TWC/2014/0926 by Telford & Wrekin Council for the demolition of an existing dwelling and erection of 3 dwellings. One of the 3 granted consent has already been constructed and sold and the consent is secured for the construction of 2 further dwellings on the remaining land.
However, subject to planning, the current land is of sufficient size to allow construction of 3 dwellings. Offers are invited on this basis of constructing 3 new dwellings subject to planning consent. Or alternatively for constructing the two properties that already have planning consent. The owner has advised that electric and water services are available via the previous dwelling that existed on the site, including foul and surface water drainage connections for the 2 consented dwellings.
Local Area
The property is within close proximity to the historic market towns of Newport, Wellington and Ironbridge as well as having the modern complex of Telford Town Centre close by. A superb opportunity to live in the rural village of Horton with Preston Upon The Weald Moors primary school up the road and the renowned gastro pub restaurant The Queens.
General Information
Surveys & Services:
* We have not conducted any soil test or survey. Purchasers must satisfy themselves that the plot is suitable for their intended purpose.
* We are told that mains electricity and water are available for connection on the road side connecting the site but connection charges will apply. We have not verified this availability. An appropriate non-mains drainage system will need to be installed subject to approval by the planning authority.
All parties will be required to discuss financial pre-qualification with a dedicated and specialised new build team within Strike Financial Services prior to viewings being confirmed. The Land and New Homes team at Purplebricks will arrange this on behalf of all interested parties
Property Description Disclaimer
This is a general description of the property only, and is not intended to constitute part of an offer or contract. It has been verified by the seller(s), unless marked as 'draft'. Purplebricks conducts some valuations online and some of our customers prepare their own property descriptions, so if you decide to proceed with a viewing or an offer, please note this information may have been provided solely by the vendor, and we may not have been able to visit the property to confirm it. If you require clarification on any point then please contact us, especially if you’re traveling some distance to view. All information should be checked by your solicitor prior to exchange of contracts.
Successful buyers will be required to complete anti-money laundering and proof of funds checks. Our partner, Lifetime Legal Limited, will carry out the initial checks on our behalf. The current non-refundable cost is £80 inc. VAT per offer. You’ll need to pay this to Lifetime Legal and complete all checks before we can issue a memorandum of sale. The cost includes obtaining relevant data and any manual checks and monitoring which might be required, and includes a range of benefits. Purplebricks will receive some of the fee taken by Lifetime Legal to compensate for its role in providing these checks.
Brochures
BrochureEnergy Performance Certificates
epcHorton, Telford, TF6
NEAREST STATIONS
Distances are straight line measurements from the centre of the postcode- Oakengates Station2.5 miles
- Wellington Station2.7 miles
- Telford Central Station3.4 miles
Notes
Disclaimer - Property reference 1601408-1. The information displayed about this property comprises a property advertisement. Rightmove.co.uk makes no warranty as to the accuracy or completeness of the advertisement or any linked or associated information, and Rightmove has no control over the content. This property advertisement does not constitute property particulars. The information is provided and maintained by Purplebricks New Homes, Nationwide. Please contact the selling agent or developer directly to obtain any information which may be available under the terms of The Energy Performance of Buildings (Certificates and Inspections) (England and Wales) Regulations 2007 or the Home Report if in relation to a residential property in Scotland.
Map data ©OpenStreetMap contributors.






