
Crosby Street, Darlington, DL3
- PROPERTY TYPE
Plot
- BEDROOMS
3
- BATHROOMS
1
- SIZE
Ask agent
Key features
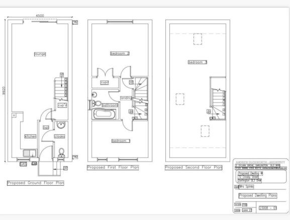
- Planning permission for a three-bedroom townhouse
- A Rare Opportunity in Darlington
- Freehold
- Crosby Street Building Plot
Description
Development Opportunity
Below is the link to the full planning application.
Residential building plot for one property
Planning permission approved for a three-bedroom detached townhouse
A Rare Opportunity in Darlington!
Situated in Darlington, this is your chance to secure a fantastic residential building plot with planning permission already in place for a three-bedroom townhouse. Whether you’re an investor, developer, or someone looking to create their dream home, this plot offers incredible potential in a popular location.
Details of the planning application can be found online at: Darlington Planning Portal
Why Choose Darlington?
This vibrant market town is renowned for its excellent transport links, including direct rail connections, top-rated schools, and a thriving community atmosphere. From its historic charm to modern amenities, Darlington is the perfect location to build a home that offers convenience, comfort, and long-term value.
Viewing Highly Recommended.
For further details or to arrange a viewing, please contact:
Ellie Angus, Property Consultant -
Tenure: Freehold
We are informed that the land is Freehold, but interested purchasers are advised to confirm this with their solicitors. Please note that the land will require registration.
Crosby Street, Darlington, DL3
NEAREST STATIONS
Distances are straight line measurements from the centre of the postcode- North Road Station0.8 miles
- Darlington Station1.8 miles
- Heighington Station3.7 miles
Notes
Disclaimer - Property reference b2d619af-0277-4216-92ae-872a31ebf2f5. The information displayed about this property comprises a property advertisement. Rightmove.co.uk makes no warranty as to the accuracy or completeness of the advertisement or any linked or associated information, and Rightmove has no control over the content. This property advertisement does not constitute property particulars. The information is provided and maintained by Northgate Estate Agents & Property Management, Newton Aycliffe. Please contact the selling agent or developer directly to obtain any information which may be available under the terms of The Energy Performance of Buildings (Certificates and Inspections) (England and Wales) Regulations 2007 or the Home Report if in relation to a residential property in Scotland.
Map data ©OpenStreetMap contributors.





