Towneley Cottages, Tysea Hill, Stapleford Abbotts, Romford

- PROPERTY TYPE
Terraced
- BEDROOMS
4
- BATHROOMS
3
- SIZE
Ask agent
- TENUREDescribes how you own a property. There are different types of tenure - freehold, leasehold, and commonhold.Read more about tenure in our glossary page.
Freehold
Key features
- NO CHAIN
- REAR ACCESS
- 200FT+ GARDEN TO REAR
- NEWLY REFURBISHED
- SPACIOUS
- EN- SUITE
- New LAWN TO BE LAID
- REAR SHED
- UNDERFLOOR HEATING
Description
A splendid mid-terrace house nestled on 0.11 acres of land, boasting a 240-foot garden, offering an excellent opportunity for the construction of a separate dwelling, subject to planning permission. This property is chain-free.
Key Features:
Spectacular views
Recently refurbished, featuring four spacious bedrooms
Brand new kitchen and utility room
Underfloor heating in the kitchen
Three separate heating zones for lower bills
Three bathrooms, including three showers and one bath
New windows for optimum insulation
Spacious layout
New lawn to be laid
Rear access
Rear shed
Description:
This impeccably refurbished mid-terrace house occupies a sizable plot with the potential to build an additional dwelling, subject to planning permission.
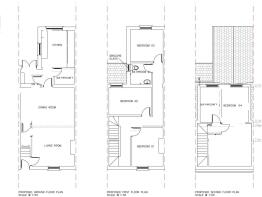
The ground floor comprises an entrance hall leading to two reception rooms with wooden flooring, an under-stairs cupboard, and access to a brand-new kitchen boasting a range of cupboards with Corian worktops, including a WC and shower room. There's also a side utility room with newly installed cupboards and Corian worktops. Both the kitchen and utility room provide access to the 240-foot garden.
On the first floor, you'll find three double bedrooms along with a WC and bath/shower. The second floor offers breathtaking views and an additional fourth bedroom with an en-suite shower and WC. The property sits on approximately 0.11 acres, with the rear garden stretching about 240 feet, mainly laid to lawn with a patio area.
Location:
Tysea Hill is situated in the charming village of Stapleford Abbotts, offering a countryside ambiance yet conveniently located for amenities in Brentwood (3.7 miles), Theydon Bois (6.7 miles), and Epping (6.7 miles). Brentwood, served by the Elizabeth Line, provides direct links to Central London, terminating at Reading in Berkshire.
Interior:
Entrance porch with access to stairway and lounge
Sitting room with double-glazed leaded window to the front aspect
Dining room with access to the kitchen
Well-equipped Kitchen and Utility Room
Ground floor bathroom with Shower
First-floor landing leading to three bedrooms
Loft Landing leads to Bedroom and third bathroom.
Exterior:
Extensive outstanding garden with a large lawn area approximately 240 feet to the rear shed, accessed via a private access road from Tysea Hill with a security gate.
Agent's Note:
The construction of a rear property will be subject to planning permission.
- COUNCIL TAXA payment made to your local authority in order to pay for local services like schools, libraries, and refuse collection. The amount you pay depends on the value of the property.Read more about council Tax in our glossary page.
- Ask agent
- PARKINGDetails of how and where vehicles can be parked, and any associated costs.Read more about parking in our glossary page.
- Ask agent
- GARDENA property has access to an outdoor space, which could be private or shared.
- Yes
- ACCESSIBILITYHow a property has been adapted to meet the needs of vulnerable or disabled individuals.Read more about accessibility in our glossary page.
- Ask agent
Energy performance certificate - ask agent
Towneley Cottages, Tysea Hill, Stapleford Abbotts, Romford
Add an important place to see how long it'd take to get there from our property listings.
__mins driving to your place
Get an instant, personalised result:
- Show sellers you’re serious
- Secure viewings faster with agents
- No impact on your credit score
Your mortgage
Notes
Staying secure when looking for property
Ensure you're up to date with our latest advice on how to avoid fraud or scams when looking for property online.
Visit our security centre to find out moreDisclaimer - Property reference APV1000673. The information displayed about this property comprises a property advertisement. Rightmove.co.uk makes no warranty as to the accuracy or completeness of the advertisement or any linked or associated information, and Rightmove has no control over the content. This property advertisement does not constitute property particulars. The information is provided and maintained by Apple Property Services, Hornchurch. Please contact the selling agent or developer directly to obtain any information which may be available under the terms of The Energy Performance of Buildings (Certificates and Inspections) (England and Wales) Regulations 2007 or the Home Report if in relation to a residential property in Scotland.
*This is the average speed from the provider with the fastest broadband package available at this postcode. The average speed displayed is based on the download speeds of at least 50% of customers at peak time (8pm to 10pm). Fibre/cable services at the postcode are subject to availability and may differ between properties within a postcode. Speeds can be affected by a range of technical and environmental factors. The speed at the property may be lower than that listed above. You can check the estimated speed and confirm availability to a property prior to purchasing on the broadband provider's website. Providers may increase charges. The information is provided and maintained by Decision Technologies Limited. **This is indicative only and based on a 2-person household with multiple devices and simultaneous usage. Broadband performance is affected by multiple factors including number of occupants and devices, simultaneous usage, router range etc. For more information speak to your broadband provider.
Map data ©OpenStreetMap contributors.






