New Street, Oadby, Leicester

- PROPERTY TYPE
Terraced
- BEDROOMS
3
- BATHROOMS
1
- SIZE
807 sq ft
75 sq m
- TENUREDescribes how you own a property. There are different types of tenure - freehold, leasehold, and commonhold.Read more about tenure in our glossary page.
Freehold
Key features
- No Upward Chain
- Terrace Home
- Lounge, Kitchen & Conservatory
Description
If you are looking to reside within the heart of Oadby then this chain free three bedroom terrace home could be the perfect option for you. Being within easy reach of the local Lidl, Launde Primary School and amenities along The Parade this opportunity offers everything your family could need. Featuring a lounge, kitchen and conservatory extension to the ground floor along with three bedrooms and a bathroom to the first floor. Outside enjoys front and rear gardens. Why not contact our office for more information or to secure a viewing.
EPC Rating: B
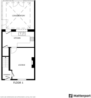
Entrance Hall
With double glazed front door, stairs to first floor, laminate floor.
Lounge
4.24m x 3.33m
With double glazed window to the front elevation, gas fire (not tested) with surround and hearth, laminate floor, radiator.
Kitchen
4.29m x 2.13m
With wall and base units with work surface over, part tiled walls, tiled floor, fitted oven and hob with filter hood over, space for under counter fridge freezer, space for washing machine, one and a half bowl sink and drainer, under stairs storage cupboard, radiator.
Conservatory
3.73m x 3.53m
With double glazed windows to the rear and side elevation, double glazed French doors to the rear garden.
First Floor Landing
With access to the following rooms:
Principal Bedroom
3.33m x 2.82m
Measurement up to wardrobes. With double glazed window to the front, fitted wardrobes, laminate floor, radiator.
Bedroom Two
3.07m x 2.54m
With double glazed window to the rear elevation, radiator.
Bedroom Three
1.98m x 1.8m
With double glazed window to the front elevation, built-in storage cupboard, radiator.
Shower Room
2.59m x 1.7m
With double glazed window to the rear elevation, tiled floor, tiled walls, fitted storage cupboard housing gas boiler, wash hand basin with storage below, low-level WC, shower cubicle, tiled walls, tiled floor, ladder style towel rail/radiator.
Front Garden
A raised front garden with paved pathway/steps, lawn areas, gravelled area.
Rear Garden
With lawn, decked area to the rear, shed, fencing to perimeter.
Disclaimer
Measurements are taken electronically and are for guidance only — not to be relied upon as exact. Services, appliances, and fittings have not been tested. Buyers must satisfy themselves through inspection. Floor plans are not to scale and are for layout guidance only. Knightsbridge Estate Agents make no warranties regarding the property. By law, we must carry out anti-money laundering checks for buyers and sellers. These are handled on our behalf by Lifetime Legal, who will contact you once you instruct us to sell or have an offer accepted. A £70 fee (incl. VAT) covers required data and any manual checks. This must be paid before we can publish your property (for vendors) or issue a memorandum of sale (for buyers). The fee is non-refundable and paid directly to Lifetime Legal. We receive a portion of this fee for facilitating the checks.
Brochures
Property Brochure- COUNCIL TAXA payment made to your local authority in order to pay for local services like schools, libraries, and refuse collection. The amount you pay depends on the value of the property.Read more about council Tax in our glossary page.
- Band: B
- PARKINGDetails of how and where vehicles can be parked, and any associated costs.Read more about parking in our glossary page.
- Ask agent
- GARDENA property has access to an outdoor space, which could be private or shared.
- Front garden,Rear garden
- ACCESSIBILITYHow a property has been adapted to meet the needs of vulnerable or disabled individuals.Read more about accessibility in our glossary page.
- Ask agent
New Street, Oadby, Leicester
Add an important place to see how long it'd take to get there from our property listings.
__mins driving to your place
Get an instant, personalised result:
- Show sellers you’re serious
- Secure viewings faster with agents
- No impact on your credit score



Affordability
Notes
Staying secure when looking for property
Ensure you're up to date with our latest advice on how to avoid fraud or scams when looking for property online.
Visit our security centre to find out moreDisclaimer - Property reference 3db4dec4-5c30-4511-80cc-7927ad22087e. The information displayed about this property comprises a property advertisement. Rightmove.co.uk makes no warranty as to the accuracy or completeness of the advertisement or any linked or associated information, and Rightmove has no control over the content. This property advertisement does not constitute property particulars. The information is provided and maintained by Knightsbridge Estate Agents & Valuers, Oadby. Please contact the selling agent or developer directly to obtain any information which may be available under the terms of The Energy Performance of Buildings (Certificates and Inspections) (England and Wales) Regulations 2007 or the Home Report if in relation to a residential property in Scotland.
*This is the average speed from the provider with the fastest broadband package available at this postcode. The average speed displayed is based on the download speeds of at least 50% of customers at peak time (8pm to 10pm). Fibre/cable services at the postcode are subject to availability and may differ between properties within a postcode. Speeds can be affected by a range of technical and environmental factors. The speed at the property may be lower than that listed above. You can check the estimated speed and confirm availability to a property prior to purchasing on the broadband provider's website. Providers may increase charges. The information is provided and maintained by Decision Technologies Limited. **This is indicative only and based on a 2-person household with multiple devices and simultaneous usage. Broadband performance is affected by multiple factors including number of occupants and devices, simultaneous usage, router range etc. For more information speak to your broadband provider.
Map data ©OpenStreetMap contributors.





