Nelson Street, Norwich, Norfolk, NR2

Letting details
- Let available date:
- 16/05/2026
- Deposit:
- £1,730A deposit provides security for a landlord against damage, or unpaid rent by a tenant.Read more about deposit in our glossary page.
- Min. Tenancy:
- 12 months How long the landlord offers to let the property for.Read more about tenancy length in our glossary page.
- Let type:
- Long term
- Furnish type:
- Unfurnished
- Council Tax:
- Ask agent
- PROPERTY TYPE
Terraced
- BEDROOMS
4
- SIZE
Ask agent
Key features
- Extended terrace house.
- Gas central heating.
- UPVC double glazing.
- Parking to front for one vehicle
- Large Kitchen/Diner
Description
Central heating by gas fired boiler and radiators. UPVc double glazed windows and doors.
Accommodation:-
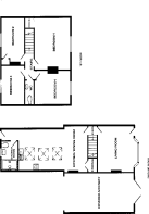
Ground Floor
LIVING ROOM - 14'5" into bay x 11'11" - radiator, Tv point, telephone point.
LOBBY - stairs to first floor.
OPEN PLAN - KITCHEN/DINING AREA - 31'7" x 11'8"
Dining Area - tiled floor, understairs storage cupboard, radiator.
Kitchen Area - Fitted wall and base units with wood effect work surfaces, stainless steel one and a half bowl sink drainer with mixer tap, built-in electric oven and hob with canopy extractor over, plumbing for washing machine, space for fridge freezer, boiler unit, tiled floor, radiators, velux roof lights. Outside door to rear garden.
SHOWER ROOM - wet room flooring, large walk in shower cubicle with shower, low level wc, pedestal basin, tiled floor, extractor fan, radiator.
First Floor
LANDING - all rooms off:-
BEDROOM 1 (Front) - 12'2" x 11'11" - wardrobe cupboard, radiator.
BEDROOM 2 (Rear) - 11'8" x 9'11" - ornate fireplace, built-in cupboard, radiator.
BEDROOM 3 (Front) - 12'2" x 7'6" - radiator.
BEDROOM 4 (Rear) - 9'11" x 7'6" - radiator.
CLOAKROOM - low level wc, wash hand basin, extractor fan.
Outside
Front garden laid to brickweave for parking for one car.
Rear garden (bisected) - laid to patio with large timber storage shed (which could be used as a Man Shed).
Council Tax: Band B
EPC Rating: D
Rent: £1500.00 per calendar month.
Damages Deposit: £1730.00
Holding Deposit: £346.00
- COUNCIL TAXA payment made to your local authority in order to pay for local services like schools, libraries, and refuse collection. The amount you pay depends on the value of the property.Read more about council Tax in our glossary page.
- Ask agent
- PARKINGDetails of how and where vehicles can be parked, and any associated costs.Read more about parking in our glossary page.
- Yes
- GARDENA property has access to an outdoor space, which could be private or shared.
- Yes
- ACCESSIBILITYHow a property has been adapted to meet the needs of vulnerable or disabled individuals.Read more about accessibility in our glossary page.
- Ask agent
Nelson Street, Norwich, Norfolk, NR2
Add an important place to see how long it'd take to get there from our property listings.
__mins driving to your place
Notes
Staying secure when looking for property
Ensure you're up to date with our latest advice on how to avoid fraud or scams when looking for property online.
Visit our security centre to find out moreDisclaimer - Property reference NelsonSt. The information displayed about this property comprises a property advertisement. Rightmove.co.uk makes no warranty as to the accuracy or completeness of the advertisement or any linked or associated information, and Rightmove has no control over the content. This property advertisement does not constitute property particulars. The information is provided and maintained by Philip Noble & Son, Norwich. Please contact the selling agent or developer directly to obtain any information which may be available under the terms of The Energy Performance of Buildings (Certificates and Inspections) (England and Wales) Regulations 2007 or the Home Report if in relation to a residential property in Scotland.
*This is the average speed from the provider with the fastest broadband package available at this postcode. The average speed displayed is based on the download speeds of at least 50% of customers at peak time (8pm to 10pm). Fibre/cable services at the postcode are subject to availability and may differ between properties within a postcode. Speeds can be affected by a range of technical and environmental factors. The speed at the property may be lower than that listed above. You can check the estimated speed and confirm availability to a property prior to purchasing on the broadband provider's website. Providers may increase charges. The information is provided and maintained by Decision Technologies Limited. **This is indicative only and based on a 2-person household with multiple devices and simultaneous usage. Broadband performance is affected by multiple factors including number of occupants and devices, simultaneous usage, router range etc. For more information speak to your broadband provider.
Map data ©OpenStreetMap contributors.






