Land for sale
Rectory Road, Duckmanton, Chesterfield, Derbyshire, S44
- PROPERTY TYPE
Land
- SIZE
Ask agent
Key features
- Land with full planning for 3 bed detached house
- Stunning views over farmland
- Close to transport Links
Description
IMPORTANT NOTE TO POTENTIAL PURCHASERS & TENANTS: We endeavour to make our particulars accurate and reliable, however, they do not constitute or form part of an offer or any contract and none is to be relied upon as statements of representation or fact. The services, systems and appliances listed in this specification have not been tested by us and no guarantee as to their operating ability or efficiency is given. All photographs and measurements have been taken as a guide only and are not precise. Floor plans where included are not to scale and accuracy is not guaranteed. If you require clarification or further information on any points, please contact us, especially if you are traveling some distance to view. POTENTIAL PURCHASERS: Fixtures and fittings other than those mentioned are to be agreed with the seller. POTENTIAL TENANTS: All properties are available for a minimum length of time, with the exception of short term accommodation. Please contact the branch for details. A security deposit of at least one month’s rent is required. Rent is to be paid one month in advance. It is the tenant’s responsibility to insure any personal possessions. Payment of all utilities including water rates or metered supply and Council Tax is the responsibility of the tenant in most cases.
CHS250011/2
Agent Note
To be able to purchase a property in the United Kingdom all agents have a legal requirement to conduct Identity checks on all customers involved in the transaction to fulfil their obligations under Anti Money Laundering regulations. We outsource this check to a third party and a charge will apply. Ask the branch for further details.
Land
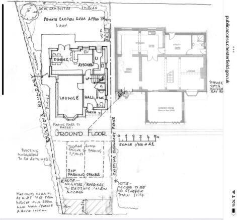
DEVELOPMENT OPPORTUNITY! A opportunity to build your own home within the lovely village of Duckmanton, boasting open views to farmland and afar! Other local attractions include Bolsover Castle, Chatsworth House and Cresswell Craggs not to mention the walks available in this area! So if you're looking to build your own home or for an investment opportunity, this is plot of land could be the answer as the full planning has been approved for a three bedroom detached house with a design for modern living and efficiency. Full planning documentation can be found via Chesterfield Brough Council.
Land Details
Ground survey complete Drainage survey complete Drop kerb already in place Gas main on the road Electric point by the gate
Brochures
Web DetailsFull Brochure PDFRectory Road, Duckmanton, Chesterfield, Derbyshire, S44
NEAREST STATIONS
Distances are straight line measurements from the centre of the postcode- Chesterfield Station3.4 miles
Notes
Disclaimer - Property reference CHS250011. The information displayed about this property comprises a property advertisement. Rightmove.co.uk makes no warranty as to the accuracy or completeness of the advertisement or any linked or associated information, and Rightmove has no control over the content. This property advertisement does not constitute property particulars. The information is provided and maintained by Reeds Rains, Chesterfield. Please contact the selling agent or developer directly to obtain any information which may be available under the terms of The Energy Performance of Buildings (Certificates and Inspections) (England and Wales) Regulations 2007 or the Home Report if in relation to a residential property in Scotland.
Map data ©OpenStreetMap contributors.







