
Brunswick Road, Cannock

- PROPERTY TYPE
Detached
- BEDROOMS
4
- BATHROOMS
2
- SIZE
Ask agent
- TENUREDescribes how you own a property. There are different types of tenure - freehold, leasehold, and commonhold.Read more about tenure in our glossary page.
Freehold
Key features
- Spacious four bedroom detached family home
- Large corner plot with ample parking and charming cottage style gardens
- Flexible living and sleeping accommodation
- Walking distance to the town centre
- Generous reception rooms
- New fitted kicthen
Description
Situated on an expansive corner plot, this unique, bespoke-built home boasts ample parking for at least three vehicles. The property is surrounded by enchanting cottage-style gardens, featuring mature flower beds, a serene winter garden area, a well-maintained lawn, 10x8ft shaker-style shed, greenhouse/potting shed and vegetable trug, a charming summer house, and a picturesque pond complete with a bridge. The gardens provide a tranquil retreat, especially during the summer months when the flowers are in full bloom, creating a truly idyllic setting.
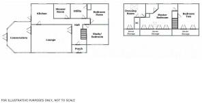
Internally the property offers: porch, grand entrance hallway with marble flooring, spacious lounge and large conservatory, brand new fitted oak kitchen, utility, family shower room, versatile study/bedroom, plus further ground floor bedroom, and two double first floor bedrooms, with an en-suite and large dressing room with walk in wardrobe area to the master bedroom.
The property is well placed to provide easy access to Cannock town centre (being just a short walk away) which offers a wide range of amenities with both local & national bus and train services available. The location also benefits from being just a few minutes away from Cannock Chase, an area of outstanding natural beauty. Commuter benefits include A460, A5 and M6 toll road linking the midlands motorway network
PORCH:
Entrance door, ample space to store coats, shoes and boots, further door into the hallway.
RECEPTION HALL:
Newly laid marble tiled flooring, ceiling light points, cast iron radiator, stairs to first floor, opening to the kitchen, double doors to the lounge, further doors to the study, bedroom, utility and shower room.
LOUNGE:
21' 9'' x 15' 2'' (6.62m x 4.62m)
Feature fireplace with fitted coal effect gas fire, laminate parquet style flooring, ceiling light point, radiators, windows to the front, door to the kitchen and French doors to the conservatory.
NEW FITTED KITCHEN:
12' 0'' x 11' 0'' (3.66m x 3.35m)
Range of matching wall and base units incorporating painted oak front cabinets and drawers, Quartz work surfaces, inset Belfast sink with mono tap plus instant boiling water tap, space for a range cooker with extractor hood, further integrated dishwasher and space for a fridge-freezer, pull out bin cupboard, porcelain tiled flooring, light point, windows to the side and rear and door to the garden.
LARGE CONSERVATORY:
12' 9'' x 17' 5'' (3.89m x 5.31m)
Pitched poly-carbonate roof with a UPVC frame set on brick base, green Spanish tiled flooring, light point, ample space for a dining table and chairs plus lounge area, French doors to the garden.
STUDY/BEDROOM FOUR:
13' 7'' x 10' 8'' (4.15m x 3.26m)
Laminate parquet style flooring, light point, radiator, window to the front, ideal for use as a study, bedroom or further sitting room.
UTILITY:
8' 8'' x 7' 9'' (2.65m x 2.36m)
Fitted wall units with cabinets and work top with space beneath for a washing machine and dryer, radiator, light point, window to the rear and storage cupboard.
FAMILY SHOWER ROOM:
8' 8'' x 7' 9'' (2.65m x 2.36m)
Suite comprising: walk in shower cubicle with same level floor, low level WC, bowl wash hand basin set on cabinet, tiled flooring, light point, cast iron radiator and window to the rear.
BEDROOM THREE:
9' 7'' x 11' 0'' (2.91m x 3.35m)
Laminate flooring, ceiling light point, radiator, recess with space for wardrobe and window to the side.
FIRST FLOOR LANDING:
Wooden flooring, ceiling light point, doors off to the two top floor bedrooms.
BEDROOM ONE:
17' 3'' x 13' 10'' (5.27m x 4.22m)
Wooden flooring, radiators, ceiling light points dormer window to the rear and Velux skylight to the front, lot of eaves storage cupboards, doors to the en-suite and dressing room.
EN-SUITE:
Modern fitted suite comprising: shower cubicle with full body wash shower, low level WC, bowl sink set on cabinet, heated towel rail, dormer window to the rear and light point.
DRESSING ROOM:
11' 7'' x 13' 7'' (3.52m x 4.15m)
Ceiling skylight, fitted wardrobes and shelving, large airing cupboard housing the gas boiler, wooden flooring, light point, eaves storage and skylight to the rear.
BEDROOM TWO:
11' 2'' x 14' 0'' (3.40m x 4.26m)
Eaves storage cupboards, carpeted flooring, ceiling light point, radiator and window to the rear.
VIEWING:
Please contact us on if you would like to arrange a viewing appointment for this property or require further information.
DISCLAIMER:
These particulars are set up as a general outline only for the guidance of intending purchasers or lessees, and do not constitute part of an offer or contract. The sellers has given permission for all descriptions, dimensions, references to conditions, tenure, service charges and necessary permissions for use, occupation and other details to be used and we have taken them in good faith whether included or not & whilst we believe them to be correct, any intending purchasers or tenants should not rely on them as representations or fact but must satisfy themselves by inspection or otherwise as to the correctness of each of them and have this certified during the conveyancing by their solicitor. No person in the employment of Lovett&Co has any authority to make or give any representation or warranty whatsoever in relation to this property.
Brochures
Property BrochureFull Details- COUNCIL TAXA payment made to your local authority in order to pay for local services like schools, libraries, and refuse collection. The amount you pay depends on the value of the property.Read more about council Tax in our glossary page.
- Band: D
- PARKINGDetails of how and where vehicles can be parked, and any associated costs.Read more about parking in our glossary page.
- Yes
- GARDENA property has access to an outdoor space, which could be private or shared.
- Yes
- ACCESSIBILITYHow a property has been adapted to meet the needs of vulnerable or disabled individuals.Read more about accessibility in our glossary page.
- Ask agent
Brunswick Road, Cannock
Add an important place to see how long it'd take to get there from our property listings.
__mins driving to your place
Get an instant, personalised result:
- Show sellers you’re serious
- Secure viewings faster with agents
- No impact on your credit score
Your mortgage
Notes
Staying secure when looking for property
Ensure you're up to date with our latest advice on how to avoid fraud or scams when looking for property online.
Visit our security centre to find out moreDisclaimer - Property reference 12578099. The information displayed about this property comprises a property advertisement. Rightmove.co.uk makes no warranty as to the accuracy or completeness of the advertisement or any linked or associated information, and Rightmove has no control over the content. This property advertisement does not constitute property particulars. The information is provided and maintained by Lovett&Co. Estate Agents, Lichfield. Please contact the selling agent or developer directly to obtain any information which may be available under the terms of The Energy Performance of Buildings (Certificates and Inspections) (England and Wales) Regulations 2007 or the Home Report if in relation to a residential property in Scotland.
*This is the average speed from the provider with the fastest broadband package available at this postcode. The average speed displayed is based on the download speeds of at least 50% of customers at peak time (8pm to 10pm). Fibre/cable services at the postcode are subject to availability and may differ between properties within a postcode. Speeds can be affected by a range of technical and environmental factors. The speed at the property may be lower than that listed above. You can check the estimated speed and confirm availability to a property prior to purchasing on the broadband provider's website. Providers may increase charges. The information is provided and maintained by Decision Technologies Limited. **This is indicative only and based on a 2-person household with multiple devices and simultaneous usage. Broadband performance is affected by multiple factors including number of occupants and devices, simultaneous usage, router range etc. For more information speak to your broadband provider.
Map data ©OpenStreetMap contributors.





