Couston Place, Dalgety Bay

- PROPERTY TYPE
Terraced
- BEDROOMS
3
- BATHROOMS
1
- SIZE
Ask agent
- TENUREDescribes how you own a property. There are different types of tenure - freehold, leasehold, and commonhold.Read more about tenure in our glossary page.
Freehold
Key features
- Mid Terrace
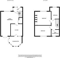
- Lounge/
- Dining Room
- Kitchen
- 3 Bedrooms
- Wet Room
- Garden
- Energy Efficiency Rating B & Council Tax Band C
Description
It is however the aspect and appointment that will most impress. Views from rear facing apartments, over estate to woodland and River Forth. Ensuring this affordable asset allows you to live in the coastal town with bedroom and the "glass palace" of a conservatory affording sumptuous River outlook.
Subjects are accessed via purpose built greeting area to large "L" shaped living space (20'5 x 15 at largest points) with window formation to front and French doors at rear. Kitchen is accessed off lounge and is well fitted with integrated and free-standing appliances.
At first floor are 3 bedrooms. Principal is completed with bespoke bedroom furniture, beautifully fitted with organiser. Free standing 3 door wardrobe will be left in second bedroom. Interior completed by partially tiled wet room.
Garden grounds compliment the property with astro turf and path to front. The landscaped rear gardens have purpose built decked and patio sections. But most importantly, these too command River aspect. Punctuated by garden shed.
Five miles South East of Dunfermline and fourteen miles from Edinburgh, Dalgety Bay is a desirable and now a well-established coastal town. Beautifully appointed on the North shore of the Firth of Forth the town has historical links dating back over 800 years. An excellent environment for commuters, family home buyers and those seeking property in a desirable address, Dalgety Bay is popular with young children, teenagers and adults alike. This is largely due to the prized residential setting with open country walks and coastal path (to Aberdour and beyond) and the wide range of facilities and amenities. Shopping facilities include supermarket, restaurants and bars.
Lounge/ 15 x 10
Dining Room 10'7 x 8'3
Kitchen 10'10 x 9'6
Conservatory 10'6 x 10
Entrance Vestibule 8 x 4'4
Bedroom 1 13'6 x 11'2
Bedroom 2 13'6 x 8'10
Bedroom 3 10 x 7'9
Wet Room 6'8 x 5'10
Extras
Gas central heating; Double glazing; Solar panels; Light fittings; Free standing wardrobe; Conservatory furniture; Integrated electric hob, oven, cooker hood & fridge/freezer; Free standing washing machine, tumble drier & dishwasher;
- COUNCIL TAXA payment made to your local authority in order to pay for local services like schools, libraries, and refuse collection. The amount you pay depends on the value of the property.Read more about council Tax in our glossary page.
- Ask agent
- PARKINGDetails of how and where vehicles can be parked, and any associated costs.Read more about parking in our glossary page.
- Ask agent
- GARDENA property has access to an outdoor space, which could be private or shared.
- Yes
- ACCESSIBILITYHow a property has been adapted to meet the needs of vulnerable or disabled individuals.Read more about accessibility in our glossary page.
- Ask agent
Couston Place, Dalgety Bay
Add an important place to see how long it'd take to get there from our property listings.
__mins driving to your place
Get an instant, personalised result:
- Show sellers you’re serious
- Secure viewings faster with agents
- No impact on your credit score



Your mortgage
Notes
Staying secure when looking for property
Ensure you're up to date with our latest advice on how to avoid fraud or scams when looking for property online.
Visit our security centre to find out moreDisclaimer - Property reference REM1003558. The information displayed about this property comprises a property advertisement. Rightmove.co.uk makes no warranty as to the accuracy or completeness of the advertisement or any linked or associated information, and Rightmove has no control over the content. This property advertisement does not constitute property particulars. The information is provided and maintained by Regents Estates & Mortgages, Dalgety Bay. Please contact the selling agent or developer directly to obtain any information which may be available under the terms of The Energy Performance of Buildings (Certificates and Inspections) (England and Wales) Regulations 2007 or the Home Report if in relation to a residential property in Scotland.
*This is the average speed from the provider with the fastest broadband package available at this postcode. The average speed displayed is based on the download speeds of at least 50% of customers at peak time (8pm to 10pm). Fibre/cable services at the postcode are subject to availability and may differ between properties within a postcode. Speeds can be affected by a range of technical and environmental factors. The speed at the property may be lower than that listed above. You can check the estimated speed and confirm availability to a property prior to purchasing on the broadband provider's website. Providers may increase charges. The information is provided and maintained by Decision Technologies Limited. **This is indicative only and based on a 2-person household with multiple devices and simultaneous usage. Broadband performance is affected by multiple factors including number of occupants and devices, simultaneous usage, router range etc. For more information speak to your broadband provider.
Map data ©OpenStreetMap contributors.




