5 bedroom detached house for sale
Sevenoaks Avenue, Southport, Merseyside, PR8

- PROPERTY TYPE
Detached
- BEDROOMS
5
- BATHROOMS
2
- SIZE
Ask agent
- TENUREDescribes how you own a property. There are different types of tenure - freehold, leasehold, and commonhold.Read more about tenure in our glossary page.
Freehold
Key features
- No onward chain
- Very large family home with plenty of scope for improvement
- Excellent residential location close to Village, train station and beach
- Private rear garden, driveway and double garage
- Early viewings are essential
Description
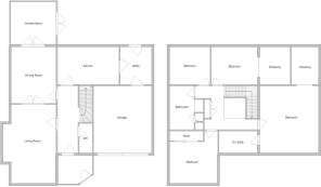
Entrance Hall - Glazed porch with double doors, further door opening into the hallway, radiator, ornate staircase leading to the first floor landing.
Cloakroom/WC - Circular window to the front, WC, hand wash basin, part tiled walls.
Lounge - 6.4m x 3.6m - Upvc double glazed windows to the front, feature fire place with circular window, glazed doors opening into the dining room.
Dining Room - 4.5m x 3.6m - Double doors opening into the conservatory, radiator.
Conservatory - 3.6m x 3.5m - Upvc double glazed conservatory with tiled flooring, double doors opening onto the rear garden.
Kitchen - 4.9m x 3.1m - Upvc double glazed window to the rear, a range of wooded base and eye level units with work surfaces incorporating sink unit with mixer taps, Karndean flooring, plate racks, radiator,
Utility - 3.1m x 2.5m - Upvc double glazed window and door to the rear, plumbing for washing machine and dryer, floor mounted boiler, quarry tiled flooring, door leading into the garage.
First floor landing - Spacious landing with large store cupboard/wardrobe, coving to the ceiling.
Bedroom One - 5.4m x 4.7m - Large master suite with Upvc double glazed bay window, radiator, access to the dressing area and en suite.
En Suite - Upvc double glazed window, large walk in shower cubicle, radiator, WC, hand wash basin with vanity unit, tiled walls and flooring.
Dressing Room - Upvc double glazed window, radiator, fitted wardrobes.
Bedroom Two - 3.6m x 3.2m - Upvc double glazed window, radiator.
Bedroom Five/Dressing area -3.2m x 2.3m - Upvc double glazed window, radiator.
Bedroom Three - 4.4m x 3.6m - Upvc double glazed window, radiator.
Bedroom Four - 3.2m x 3.1m - Upvc double glazed window, radiator.
Family Bathroom - Two Upvc double glazed windows, four piece bathroom suite comprising corner bath, WC, hand wash basin with vanity unit, walk in shower cubicle.
Exterior - To the front of the property is a gravelled garden with shrubs and plants. The driveway provides off road parking and access to the double garage (up and over door, power and lighting). To the rear is a private garden mainly laid to lawn, paved patio area with pergola, ideal for outdoor entertaining.
EPC rating D
- COUNCIL TAXA payment made to your local authority in order to pay for local services like schools, libraries, and refuse collection. The amount you pay depends on the value of the property.Read more about council Tax in our glossary page.
- Ask agent
- PARKINGDetails of how and where vehicles can be parked, and any associated costs.Read more about parking in our glossary page.
- Garage,Driveway
- GARDENA property has access to an outdoor space, which could be private or shared.
- Front garden,Patio,Private garden,Enclosed garden,Rear garden
- ACCESSIBILITYHow a property has been adapted to meet the needs of vulnerable or disabled individuals.Read more about accessibility in our glossary page.
- Ask agent
Energy performance certificate - ask agent
Sevenoaks Avenue, Southport, Merseyside, PR8
Add an important place to see how long it'd take to get there from our property listings.
__mins driving to your place
Get an instant, personalised result:
- Show sellers you’re serious
- Secure viewings faster with agents
- No impact on your credit score
Your mortgage
Notes
Staying secure when looking for property
Ensure you're up to date with our latest advice on how to avoid fraud or scams when looking for property online.
Visit our security centre to find out moreDisclaimer - Property reference 03010550. The information displayed about this property comprises a property advertisement. Rightmove.co.uk makes no warranty as to the accuracy or completeness of the advertisement or any linked or associated information, and Rightmove has no control over the content. This property advertisement does not constitute property particulars. The information is provided and maintained by Spencer Gordon, Ainsdale. Please contact the selling agent or developer directly to obtain any information which may be available under the terms of The Energy Performance of Buildings (Certificates and Inspections) (England and Wales) Regulations 2007 or the Home Report if in relation to a residential property in Scotland.
*This is the average speed from the provider with the fastest broadband package available at this postcode. The average speed displayed is based on the download speeds of at least 50% of customers at peak time (8pm to 10pm). Fibre/cable services at the postcode are subject to availability and may differ between properties within a postcode. Speeds can be affected by a range of technical and environmental factors. The speed at the property may be lower than that listed above. You can check the estimated speed and confirm availability to a property prior to purchasing on the broadband provider's website. Providers may increase charges. The information is provided and maintained by Decision Technologies Limited. **This is indicative only and based on a 2-person household with multiple devices and simultaneous usage. Broadband performance is affected by multiple factors including number of occupants and devices, simultaneous usage, router range etc. For more information speak to your broadband provider.
Map data ©OpenStreetMap contributors.




