5 bedroom detached bungalow for sale
The Hollies, Middle Road, Hardwick Wood, Wingerworth, Chesterfield, S42 6RH

- PROPERTY TYPE
Detached Bungalow
- BEDROOMS
5
- BATHROOMS
2
- SIZE
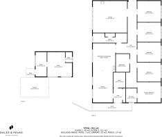
3,778 sq ft
351 sq m
- TENUREDescribes how you own a property. There are different types of tenure - freehold, leasehold, and commonhold.Read more about tenure in our glossary page.
Freehold
Key features
- 5 bedroom detached bungalow
- Bespoke built home offering 3347 sqft of accommodation (3778 sqft inc converted garage)
- Social open plan living and dining kitchen with bi-folds to a terrace, log burning stove, quartz worktops and a range of hi-spec integrated appliances
- 2 modern bathrooms including family bathroom with separate bath and huge walk-in shower, as well as master en-suite
- Impressive family lounge with log burning stove and large bi-fold doors filling the room with natural light
- Large plot with huge driveway and landscaped rear garden with patio, lawns and woodland
- Large double bedrooms all overlooking the garden
- Designated office providing work-from-home space
- Truly unique home designed around modern lifestyle in this tranquil woodland setting, just minutes away from Chesterfield and Matlock Town Centres
- Council tax band - D Tenure - Freehold. EPC rating TBC (current cert shows previous home but current home estimated B)
Description
Set centrally in its plot, The Hollies modestly offers a truly deceptive 3347 sqft of accommodation over a single storey. The property features a social open plan living and dining kitchen with bi-fold doors to the front terrace, a modern log burning stove, quartz worktops and a range of integrated appliances, the impressive family lounge is both light and spacious whilst being cosy and comfortable, with large windows filling it with natural light and a log burning stove for those cosy evenings.
The property also features 5 very spacious double bedrooms, all overlooking the garden, 2 modern bathrooms including the master en-suite and family bathroom with separate bath and huge walk-in shower and a designated office for the all-important work-from-home space.
Externally, the property sits centrally in a large plot measuring approximately 1 acre, to the front of the home is a driveway providing off road parking for multiple vehicles and a detached garage which has been converted to be used as an annex. To the rear of the home is a beautifully landscaped tiered garden, with large patios providing fantastic space for entertaining and lawns spanning up to the properties private woodland area.
Dales & Peaks Forwardmove Please Read - Dales & Peaks is marketing this Property with the benefit of ForwardMove. Dales & Peaks has introduced ForwardMove to help speed up the sales process, minimise sale fall-throughs and give more certainty to both the Seller and the Buyer.
Purchasers will benefit from the Buyer Information Pack (BIP), which we have created with our legal partners, to give buyers more information before they agree to purchase.
The pack includes:
Property information form (TA6)
Fixtures and contents form (TA10)
Official Copy of the Register (OC1)
Title Plan (OC2)
Local Search*
Water and Drainage Search*
Coal and Mining Search*
Homescreen / Environmental Search*
(Dales & Peaks has ordered the local, drainage, coal and homescreen / environmental searches; we will add these to the BIP as they become available)
ForwardMove allows the sale process to be completed significantly quicker than a ‘normal sale’. This is because the legal work, usually done in the first four to eight weeks after the sale is agreed, has already been completed. The searches, which can take up to five weeks, are ordered on the day the listing goes live and are transferable to the successful Buyer as part of their legal due diligence.
Additionally, and on behalf of the Seller, Dales & Peaks requests that the successful Buyer enters into a Reservation Agreement and pays the Reservation Agreement Fee of £595 (including VAT). This includes payment for the Buyer Information Pack and all the searches (which a buyer typically purchases separately after the sale is agreed).
Upon receipt of the signed Reservation Agreement, payment of the Reservation Agreement Fee, completion of ID and AML checks and the issuing of the Memorandum of Sale, the Seller will agree to take the Property off the market and market it as Sold Subject To Contract (SSTC).
During the Reservation Agreement period, the Seller will reject all offers and not enter into another agreement with any other buyer. The reservation period is agreed upon at the time of sale but is usually between 60 and 120 days.
The Reservation Fee is non-refundable except where the Seller withdraws from the sale. A copy of the Reservation Agreement is available on request, and Dales & Peaks advises potential buyers to seek legal advice before entering into the Reservation Agreement.
If you have any questions about the process or want to know how selling or buying with Dales & Peaks ForwardMove could benefit you, please speak to a member of the Dales & Peaks team.
Brochures
The Hollies, Middle Road, Hardwick Wood, WingerworBrochure- COUNCIL TAXA payment made to your local authority in order to pay for local services like schools, libraries, and refuse collection. The amount you pay depends on the value of the property.Read more about council Tax in our glossary page.
- Band: E
- PARKINGDetails of how and where vehicles can be parked, and any associated costs.Read more about parking in our glossary page.
- Yes
- GARDENA property has access to an outdoor space, which could be private or shared.
- Yes
- ACCESSIBILITYHow a property has been adapted to meet the needs of vulnerable or disabled individuals.Read more about accessibility in our glossary page.
- Ask agent
The Hollies, Middle Road, Hardwick Wood, Wingerworth, Chesterfield, S42 6RH
Add an important place to see how long it'd take to get there from our property listings.
__mins driving to your place
Get an instant, personalised result:
- Show sellers you’re serious
- Secure viewings faster with agents
- No impact on your credit score
Your mortgage
Notes
Staying secure when looking for property
Ensure you're up to date with our latest advice on how to avoid fraud or scams when looking for property online.
Visit our security centre to find out moreDisclaimer - Property reference 33680968. The information displayed about this property comprises a property advertisement. Rightmove.co.uk makes no warranty as to the accuracy or completeness of the advertisement or any linked or associated information, and Rightmove has no control over the content. This property advertisement does not constitute property particulars. The information is provided and maintained by Dales & Peaks, Chesterfield. Please contact the selling agent or developer directly to obtain any information which may be available under the terms of The Energy Performance of Buildings (Certificates and Inspections) (England and Wales) Regulations 2007 or the Home Report if in relation to a residential property in Scotland.
*This is the average speed from the provider with the fastest broadband package available at this postcode. The average speed displayed is based on the download speeds of at least 50% of customers at peak time (8pm to 10pm). Fibre/cable services at the postcode are subject to availability and may differ between properties within a postcode. Speeds can be affected by a range of technical and environmental factors. The speed at the property may be lower than that listed above. You can check the estimated speed and confirm availability to a property prior to purchasing on the broadband provider's website. Providers may increase charges. The information is provided and maintained by Decision Technologies Limited. **This is indicative only and based on a 2-person household with multiple devices and simultaneous usage. Broadband performance is affected by multiple factors including number of occupants and devices, simultaneous usage, router range etc. For more information speak to your broadband provider.
Map data ©OpenStreetMap contributors.






