Wearde Road, Saltash, PL12
- PROPERTY TYPE
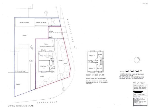
Plot
- BEDROOMS
3
- BATHROOMS
1
- SIZE
Ask agent
Key features
- PA24/08437
- Outline Planning Permission
- 1 Two Storey Dwelling With 2 Parking Spaces
- 89sqm Internally
- Corner Plot
- Great Accessibility For Build
- Close to Schools & Nature Reserve
- Front & Rear Gardens
- Convenience Store Nearby
- Exciting Development Opportunity!
Description
*** AN EXCITING & UNIQUE DEVELOPMENT OPPORTUNITY!! *** A fab building plot with outline planning for an 89sqm three bedroom detached house with two parking spaces! The land is conveniently situated within walking distance to Saltash Community School and Bishops Cornish Preschool as well as the beautiful Forder Creek and Churchtown Farm Community Nature Reserve. The proposed dwelling is set over two floors and would also features an open plan kitchen/diner, living room, downstairs toilet, two double bedrooms with wardrobes, a single bedroom and a family bathroom. There would be front and rear gardens to enjoy on this lovely corner plot and a handy convenience store nearby. Call today to find out more about this fantastic opportunity!
Saltash is a picturesque town that lies just across the River Tamar from Plymouth and is often referred to as the "Gateway to Cornwall". The town centre itself provides many shops and the doctors, dentists, library and leisure centre are all close by. There are four primary schools and a secondary school, along with a local health centre and many places of worship. South East Cornwall boasts many waterside villages such as St Germans and Cargreen, all within easy commuting distance to Saltash and the City of Plymouth.
We endeavour to make our sales particulars accurate and reliable, however, they do not constitute or form part of an offer or any contract and none is to be relied upon as statements of representation or fact. Any services, systems and appliances listed in this specification have not been tested by us and no guarantee as to their operating ability or efficiency is given. All measurements have been taken as a guide to prospective buyers only, and are not precise. If you require clarification or further information on any points, please contact us, especially if you are travelling some distance to view. Fixtures and fittings other than those mentioned are to be agreed with the seller by separate negotiation.
Tenure: Freehold,Wearde Road, Saltash, PL12
NEAREST STATIONS
Distances are straight line measurements from the centre of the postcode- Saltash Station0.7 miles
- St. Budeaux Victoria Road Station1.6 miles
- St. Budeaux Ferry Road Station1.7 miles
Notes
Disclaimer - Property reference P2055. The information displayed about this property comprises a property advertisement. Rightmove.co.uk makes no warranty as to the accuracy or completeness of the advertisement or any linked or associated information, and Rightmove has no control over the content. This property advertisement does not constitute property particulars. The information is provided and maintained by Belvoir, Plymouth. Please contact the selling agent or developer directly to obtain any information which may be available under the terms of The Energy Performance of Buildings (Certificates and Inspections) (England and Wales) Regulations 2007 or the Home Report if in relation to a residential property in Scotland.
Map data ©OpenStreetMap contributors.







