
Crondace Road, Eel Brook Common, Fulham, London, SW6

- PROPERTY TYPE
Terraced
- BEDROOMS
5
- BATHROOMS
4
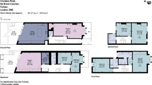
- SIZE
2,816 sq ft
262 sq m
- TENUREDescribes how you own a property. There are different types of tenure - freehold, leasehold, and commonhold.Read more about tenure in our glossary page.
Freehold
Key features
- Sought-after street in the heart of Parsons Green
- Eel Brook Common at the end of the road
- Impressive red brick façade
- Wonderfully light rooms throughout
- Delightful decked garden
- EPC Rating = D
Description
Description
This wonderful family home is nestled between Parsons Green and Eel Brook Common. The classic Victorian façade, characterised by red brick, large sash and bay windows, presents an attractive exterior.
On entry, is an impressive double reception room with beautifully high ceilings and original cornicing. Natural light bathes the room through the southerly facing bay window, and solid oak wooden floor run underfoot. The contemporary kitchen, to the rear of the house, is arguably the heart of the home. All appliances are integrated and the island overlooks the dining area, a fantastic space for cooking whilst entertaining guests. Fineline doors maximise light and and glide open into the delightful decked garden. Flowers flourish in the raised flowerbeds and greenery creates privacy.
The basement hosts a guest bedroom with a full wall of built-in wardrobes, a study/sixth bedroom, shower room, utility room and a generous, light-filled family room. Sliding doors lead out into the lightwell, which has additional storage and stairs up to the garden.
Upstairs, the elegant principal bedroom occupies the front room with bay window, which fills the room with an abundance of light. It benefits from a full wall of bespoke wardrobes and en suite bathroom. Behind sits a second double bedroom and bathroom. The top floor consists of two further bedrooms and a shared bathroom.
Please note: The antique shelving unit in the reception room is not included within this sale.
The photos were taken over 6 months ago.
Location
Crondace Road is one of the most sought after streets in the heart of Parsons Green, with the open green spaces of both Eel Brook Common and Parson Green on your doorstep, as well as the numerous boutiques, restaurants and bars along the New Kings Road.
There are good public transport links, with Parsons Green underground station being 0.4 miles away, and bus routes along the New Kings Road in to the West End (4.4 miles).
Eel Brook Common is at the end of the road with lots of green open space, a children's play park, tennis courts and astro turf football pitch.
The area is known for its wide selection of nursery, primary and secondary schools including Pippa Pop-Ins, Kensington Prep, Thomas's Fulham and Lady Margaret's.
Please note that all distances are approximate.
Square Footage: 2,816 sq ft
Brochures
Web DetailsParticulars- COUNCIL TAXA payment made to your local authority in order to pay for local services like schools, libraries, and refuse collection. The amount you pay depends on the value of the property.Read more about council Tax in our glossary page.
- Band: H
- PARKINGDetails of how and where vehicles can be parked, and any associated costs.Read more about parking in our glossary page.
- Ask agent
- GARDENA property has access to an outdoor space, which could be private or shared.
- Yes
- ACCESSIBILITYHow a property has been adapted to meet the needs of vulnerable or disabled individuals.Read more about accessibility in our glossary page.
- Ask agent
Crondace Road, Eel Brook Common, Fulham, London, SW6
Add an important place to see how long it'd take to get there from our property listings.
__mins driving to your place
Get an instant, personalised result:
- Show sellers you’re serious
- Secure viewings faster with agents
- No impact on your credit score
Affordability
Notes
Staying secure when looking for property
Ensure you're up to date with our latest advice on how to avoid fraud or scams when looking for property online.
Visit our security centre to find out moreDisclaimer - Property reference FUS240332. The information displayed about this property comprises a property advertisement. Rightmove.co.uk makes no warranty as to the accuracy or completeness of the advertisement or any linked or associated information, and Rightmove has no control over the content. This property advertisement does not constitute property particulars. The information is provided and maintained by Savills, Fulham. Please contact the selling agent or developer directly to obtain any information which may be available under the terms of The Energy Performance of Buildings (Certificates and Inspections) (England and Wales) Regulations 2007 or the Home Report if in relation to a residential property in Scotland.
*This is the average speed from the provider with the fastest broadband package available at this postcode. The average speed displayed is based on the download speeds of at least 50% of customers at peak time (8pm to 10pm). Fibre/cable services at the postcode are subject to availability and may differ between properties within a postcode. Speeds can be affected by a range of technical and environmental factors. The speed at the property may be lower than that listed above. You can check the estimated speed and confirm availability to a property prior to purchasing on the broadband provider's website. Providers may increase charges. The information is provided and maintained by Decision Technologies Limited. **This is indicative only and based on a 2-person household with multiple devices and simultaneous usage. Broadband performance is affected by multiple factors including number of occupants and devices, simultaneous usage, router range etc. For more information speak to your broadband provider.
Map data ©OpenStreetMap contributors.





