Unit 134, Clock Tower Industrial Estate, Clock Tower Road, Isleworth, TW7 6GF
- SIZE AVAILABLE
5,624 sq ft
522 sq m
- SECTOR
Warehouse to lease
- USE CLASSUse class orders: B1 Business and B8 Storage and Distribution
B1, B8
Lease details
- Lease available date:
- Now
- Lease type:
- Long term
Key features
- To be refurbished
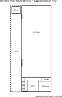
- Two storey offices
- Clear internal height 3.9m
- Glazed entrance doors
- Roller shutter doors
- Forecourt parking
- Shared loading area
- LED lighting
- Carpeted throughout
- Male/female WCs
Description
These units benefit from steel portal frames with profile elevations.
Office accommodation is located to the first floors and are fully fitted whilst the warehouses have electric powered up and over loading doors and 3 phase power.
The remainder of the estate forms an outer crescent shape with some units benefiting from self contained yards, office accommodation over two levels and parking.
The whole gated estate benefits from 24 hour access and a ready working population available locally.
Clock Tower Estate is a well established industrial estate situated directly off Worton Road, Isleworth close to the junction with the A310 Twickenham Road. The A310 southbound joins the A316, a main arterial route joining the A4 into Central London (11 Miles) and the M3/M25 (6 and 11 miles respectively) and the rest of the motorway network.
To the north of the estate, the A4 (1 ¼ miles) gives access to Heathrow Airport and the M4 (8 miles and 3 miles respectively). Isleworth Station provides services into London Waterloo.
Osterley Underground Station (Piccadilly Line) also serves Central London and Heathrow Airport.
The estate is ideally placed to service local areas such as Chiswick (5 miles), Richmond (2.5 miles) and Brentford (2.1 miles).
Strictly through prior appointment with joint sole agents Vokins or JLL.
A new FRI lease is available for a term to be agreed.
Brochures
Unit 134, Clock Tower Industrial Estate, Clock Tower Road, Isleworth, TW7 6GF
NEAREST STATIONS
Distances are straight line measurements from the centre of the postcode- Isleworth Station0.5 miles
- Syon Lane Station1.0 miles
- St. Margarets Station1.1 miles
Notes
Disclaimer - Property reference 211051-2. The information displayed about this property comprises a property advertisement. Rightmove.co.uk makes no warranty as to the accuracy or completeness of the advertisement or any linked or associated information, and Rightmove has no control over the content. This property advertisement does not constitute property particulars. The information is provided and maintained by Vokins, London. Please contact the selling agent or developer directly to obtain any information which may be available under the terms of The Energy Performance of Buildings (Certificates and Inspections) (England and Wales) Regulations 2007 or the Home Report if in relation to a residential property in Scotland.
Map data ©OpenStreetMap contributors.





