
Broadgrove Nursery Farm Shop, Eckington Road, Birlingham
- PROPERTY TYPE
Land
- SIZE
Ask agent
Key features
- Re-development site
- Commercial consent W/23/00042/FUL (7 light industrial units)
- Approval in principle - residential W/23/02328
- Semi-rural location
- Easy access M5 and facilities
- Option/conditional contract considered
Description
Light Industrial Units
1 & 2 – 100 sq.m
3 – 75 sq. m
4- 150 sq.m
5 & 6 – 125 sq.m
7 – 150 sq.m
Additional Information
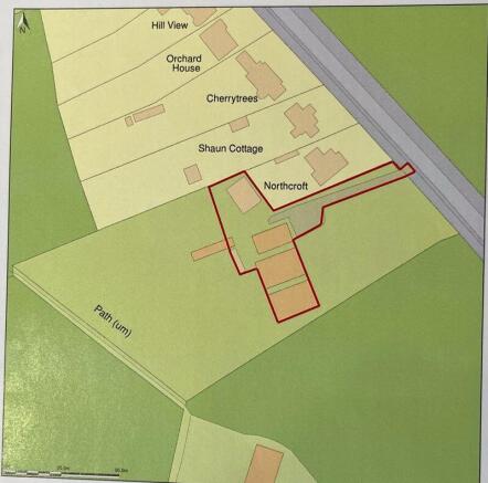
The total site area is approx. 2-acres. As can be seen from the plans the industrial and residential areas being sold are different and both form part of the overall site. This is done to minimise an uplift payment to the council on any areas that have development consent.
The remainder of the site is available by way of a conditional contract or option on terms to be agreed.
Brochures
Property BrochureFull DetailsBroadgrove Nursery Farm Shop, Eckington Road, Birlingham
NEAREST STATIONS
Distances are straight line measurements from the centre of the postcode- Pershore Station3.1 miles
- Worcestershire Parkway Station5.0 miles
Notes
Disclaimer - Property reference 12606586. The information displayed about this property comprises a property advertisement. Rightmove.co.uk makes no warranty as to the accuracy or completeness of the advertisement or any linked or associated information, and Rightmove has no control over the content. This property advertisement does not constitute property particulars. The information is provided and maintained by Nigel Poole & Partners, Pershore. Please contact the selling agent or developer directly to obtain any information which may be available under the terms of The Energy Performance of Buildings (Certificates and Inspections) (England and Wales) Regulations 2007 or the Home Report if in relation to a residential property in Scotland.
Map data ©OpenStreetMap contributors.





