
High Street, Clearwell, Gloucestershire. GL16 8JS

- PROPERTY TYPE
Detached
- BEDROOMS
5
- BATHROOMS
1
- SIZE
Ask agent
- TENUREDescribes how you own a property. There are different types of tenure - freehold, leasehold, and commonhold.Read more about tenure in our glossary page.
Freehold
Key features
- Handsome Period Home, Large Walled Garden
- Peaceful Historic Village, Edge of Forest of Dean
- Former Post Office, Lots of Original Character
- Bright, Spacious, 3 Reception Rooms, 5 Bedrooms
- Orchard, Stone Outbuildings
- NO ONWARD CHAIN
Description
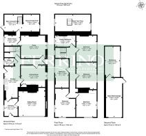
Entrance Hall
Window to side, doors to sitting room and kitchen.
Sitting Room
The former old post office with a large window overlooking High Street, electric fire.
Dining Room
Window to side, original alcove cupboards, fireplace with Parkray solid fuel stove (chimney capped off), attractive coloured glass door lights.
Rear Hall
Walk-in pantry, part glazed doors to dining room and sitting room, enclosed stairwell.
Snug
Window to side, original coving and ceiling rose, lovely period slate fireplace with hand painted details. Door to boiler room.
Kitchen
Window to side, doors to dining room, rear hall and side access.
Boiler Room
Window to side, central heating boiler, plumbing for washing machine, exposed floor boards, door to stone workshop.
Landing
Access to roof space, doors to bedrooms 1 2,3,4,5 and family bathroom.
Bedroom 1
Window overlooking the garden.
Bedroom 2
Window overlooking the garden, original cast iron fireplace with slate mantle, laminate floor.
Bedroom 3
Dual aspect room, sunny and bright, beautiful built-in linen press.
Bedroom 4
Dual aspect, exposed floor boards
Bedroom 5
Window to side.
Family Bathroom
Window to side, enclosed hot water cylinder, bath, WC, wash basin, exposed floor boards.
Garage / Workshop
Requires attention. Accessed from the road, double length, sub divided into garage space and workshop, power supply.
Barn
A two storey stone barn/store attached to the house with an original flagstone floor‚ ladder access to first floor. This presents a great opportunity for development‚ potential home office‚ gym or studio with the relevant planning consent.
Outside
To the front of the house is a flagstone courtyard. There is gated access either side leading to the garage‚ workshop and stone barn and separately the walled garden. The walled garden is designed with lovely flagstone paths that divide it into two lawned areas. The deep borders are sheltered by the high stone walls. There are steps up to the large stone potting shed. The sloping rear garden/orchard has a secure walled and fenced boundary. There is a lovely view from the top. There is a large open lean-to store/log store.
Directions
What3Words - ///reefs.consented.musician
From the cenotaph in the middle of Clearwell village, head in the direction of Coleford. The property is situated on the left hand side of the High Street just past The Tudor Farmhouse and The Butchers Arms country pub.
- COUNCIL TAXA payment made to your local authority in order to pay for local services like schools, libraries, and refuse collection. The amount you pay depends on the value of the property.Read more about council Tax in our glossary page.
- Band: E
- PARKINGDetails of how and where vehicles can be parked, and any associated costs.Read more about parking in our glossary page.
- Yes
- GARDENA property has access to an outdoor space, which could be private or shared.
- Yes
- ACCESSIBILITYHow a property has been adapted to meet the needs of vulnerable or disabled individuals.Read more about accessibility in our glossary page.
- Ask agent
High Street, Clearwell, Gloucestershire. GL16 8JS
Add an important place to see how long it'd take to get there from our property listings.
__mins driving to your place
Get an instant, personalised result:
- Show sellers you’re serious
- Secure viewings faster with agents
- No impact on your credit score
Affordability
Notes
Staying secure when looking for property
Ensure you're up to date with our latest advice on how to avoid fraud or scams when looking for property online.
Visit our security centre to find out moreDisclaimer - Property reference PRA15896. The information displayed about this property comprises a property advertisement. Rightmove.co.uk makes no warranty as to the accuracy or completeness of the advertisement or any linked or associated information, and Rightmove has no control over the content. This property advertisement does not constitute property particulars. The information is provided and maintained by Ferrino & Partners, Lydney. Please contact the selling agent or developer directly to obtain any information which may be available under the terms of The Energy Performance of Buildings (Certificates and Inspections) (England and Wales) Regulations 2007 or the Home Report if in relation to a residential property in Scotland.
*This is the average speed from the provider with the fastest broadband package available at this postcode. The average speed displayed is based on the download speeds of at least 50% of customers at peak time (8pm to 10pm). Fibre/cable services at the postcode are subject to availability and may differ between properties within a postcode. Speeds can be affected by a range of technical and environmental factors. The speed at the property may be lower than that listed above. You can check the estimated speed and confirm availability to a property prior to purchasing on the broadband provider's website. Providers may increase charges. The information is provided and maintained by Decision Technologies Limited. **This is indicative only and based on a 2-person household with multiple devices and simultaneous usage. Broadband performance is affected by multiple factors including number of occupants and devices, simultaneous usage, router range etc. For more information speak to your broadband provider.
Map data ©OpenStreetMap contributors.








