3 bedroom semi-detached house for sale
72 Victoria Road North, Windermere

- PROPERTY TYPE
Semi-Detached
- BEDROOMS
3
- BATHROOMS
1
- SIZE
Ask agent
- TENUREDescribes how you own a property. There are different types of tenure - freehold, leasehold, and commonhold.Read more about tenure in our glossary page.
Freehold
Key features
- Semi detached house
- Located in a quiet residential area
- Open plan living with modern fitted kitchen
- Three bedrooms with two being doubles
- Modern bathroom and ground floor shower room
- Cul-de-sac location, parking on road
- Gas central heating and double glazing
- Stunning landscape gardens to the rear
- Easy access to local amenities
- Road links to the M6 Motorway and the rest of the Lake District National Park
Description
A well proportioned semi detached house situated on a generous plot within a cul-de-sac located in the heart of the Lake District National Park. The property is conveniently placed for the many amenities available both in and around Windermere including the bus and railway services and is within easy reach of the M6.
Nestled in a quiet residential area, this charming 3 bedroom semi-detached house offers a comfortable and modern living environment. Boasting gas central heating and double glazing throughout, the property features an open plan layout with a sleek, modern fitted kitchen. The house comprises three bedrooms, two of which are generously sized doubles, along with a modern bathroom and convenient ground floor shower room. Situated in a cul-de-sac location, residents can enjoy peace and tranquillity while still having easy access to local amenities.
The exterior of this property showcases stunning landscape gardens at the rear, providing a serene retreat for outdoor relaxation. The gardens feature a variety of trees, hedges, planting beds, well-kept lawns, and charming rockery features. A gravelled pathway winds through the garden, offering numerous spots for garden furniture placement. At the front of the property, a well-established hedge enhances privacy and frames a lawn, planting bed, and paved walkway leading to the front. Whether you prefer to bask in the tranquillity of nature or entertain guests in the picturesque surroundings, the outdoor space of this property offers a perfect blend of beauty and functionality, creating an idyllic setting for your dream home.
EPC Rating: D
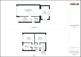
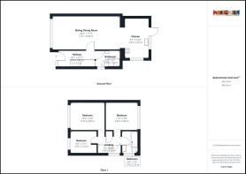
ENTRANCE HALL (1.81m x 4.01m)
SITTING ROOM (3.6m x 7.41m)
KITCHEN (2.62m x 4.32m)
BATHROOM (1.71m x 2.56m)
LANDING (1.03m x 2.49m)
BEDROOM (2.99m x 3.75m)
BEDROOM (2.99m x 3.49m)
BEDROOM (2.41m x 2.81m)
BATHROOM (1.74m x 2.37m)
IDENTIFICATION CHECKS
Should a purchaser(s) have an offer accepted on a property marketed by THW Estate Agents they will need to undertake an identification check. This is done to meet our obligation under Anti Money Laundering Regulations (AML) and is a legal requirement. We use a specialist third party service to verify your identity. The cost of these checks is £43.20 inc. VAT per buyer, which is paid in advance, when an offer is agreed and prior to a sales memorandum being issued. This charge is non-refundable.
SERVICES
Mains electric, mains gas, mains water, mains drainage
Garden
Beautiful landscape gardens to the rear which has an abundance of trees, hedges, planting beds, well kept lawns and rockery features. A gravelled path way leads up through the garden where you will find many places for garden furniture to be placed as well. To the front there is a well established hedge that adds privacy to a lawn, planting bed and paved walk way leading to the front and side of the property.
Parking - On street
No limits to parking.
Brochures
Property Brochure- COUNCIL TAXA payment made to your local authority in order to pay for local services like schools, libraries, and refuse collection. The amount you pay depends on the value of the property.Read more about council Tax in our glossary page.
- Band: D
- PARKINGDetails of how and where vehicles can be parked, and any associated costs.Read more about parking in our glossary page.
- On street
- GARDENA property has access to an outdoor space, which could be private or shared.
- Private garden
- ACCESSIBILITYHow a property has been adapted to meet the needs of vulnerable or disabled individuals.Read more about accessibility in our glossary page.
- Ask agent
72 Victoria Road North, Windermere
Add an important place to see how long it'd take to get there from our property listings.
__mins driving to your place
Get an instant, personalised result:
- Show sellers you’re serious
- Secure viewings faster with agents
- No impact on your credit score
Your mortgage
Notes
Staying secure when looking for property
Ensure you're up to date with our latest advice on how to avoid fraud or scams when looking for property online.
Visit our security centre to find out moreDisclaimer - Property reference 15a9bca3-cf82-4ce5-9f81-655e68f264cb. The information displayed about this property comprises a property advertisement. Rightmove.co.uk makes no warranty as to the accuracy or completeness of the advertisement or any linked or associated information, and Rightmove has no control over the content. This property advertisement does not constitute property particulars. The information is provided and maintained by Thomson Hayton Winkley Estate Agents, Windermere. Please contact the selling agent or developer directly to obtain any information which may be available under the terms of The Energy Performance of Buildings (Certificates and Inspections) (England and Wales) Regulations 2007 or the Home Report if in relation to a residential property in Scotland.
*This is the average speed from the provider with the fastest broadband package available at this postcode. The average speed displayed is based on the download speeds of at least 50% of customers at peak time (8pm to 10pm). Fibre/cable services at the postcode are subject to availability and may differ between properties within a postcode. Speeds can be affected by a range of technical and environmental factors. The speed at the property may be lower than that listed above. You can check the estimated speed and confirm availability to a property prior to purchasing on the broadband provider's website. Providers may increase charges. The information is provided and maintained by Decision Technologies Limited. **This is indicative only and based on a 2-person household with multiple devices and simultaneous usage. Broadband performance is affected by multiple factors including number of occupants and devices, simultaneous usage, router range etc. For more information speak to your broadband provider.
Map data ©OpenStreetMap contributors.




