Plot at Braeroy Road, Roy Bridge, Inverness-Shire, PH31 4AJ
- PROPERTY TYPE
Land
- SIZE
32,670 sq ft
3,035 sq m
Key features
- Very attractive Plot in the picturesque village of Roy Bridge
- In an elevated position above the River Roy
- Surrounded by wonderful mountain & countryside views
- Extending to approximately 0.75 acres acre (0.3ha)
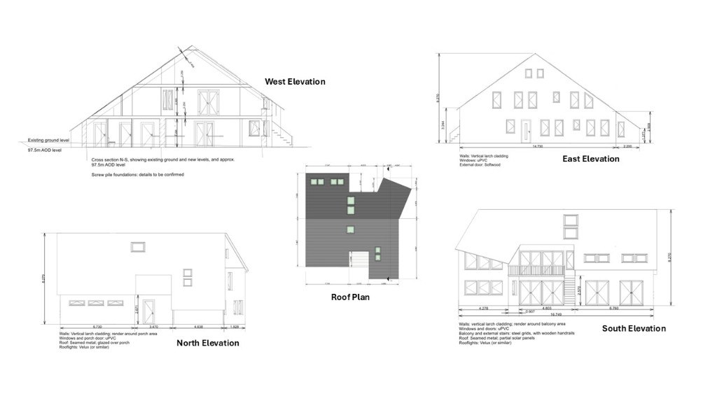
- Planning granted for detached house & self-contained annex
- Planning reference 22/00282/FUL
- Additional adjacent land avaliable under separate negotiation
Description
The Plot comes with full planning permission for a substantial detached dwellinghouse with self-contained annex. Full details can be found under planning reference 22/00282/FUL.
Brochures
Brochure 1Brochure 2Brochure 3Plot at Braeroy Road, Roy Bridge, Inverness-Shire, PH31 4AJ
NEAREST STATIONS
Distances are straight line measurements from the centre of the postcode- Roy Bridge Station0.4 miles
- Spean Bridge Station3.3 miles
Notes
Disclaimer - Property reference PlotBraeroyRdRoyBridge. The information displayed about this property comprises a property advertisement. Rightmove.co.uk makes no warranty as to the accuracy or completeness of the advertisement or any linked or associated information, and Rightmove has no control over the content. This property advertisement does not constitute property particulars. The information is provided and maintained by Fiuran Property, Oban. Please contact the selling agent or developer directly to obtain any information which may be available under the terms of The Energy Performance of Buildings (Certificates and Inspections) (England and Wales) Regulations 2007 or the Home Report if in relation to a residential property in Scotland.
Map data ©OpenStreetMap contributors.






