Commercial property for sale
Station Road, Kirton, Boston, PE20 1LD
- SIZE AVAILABLE
5,030 sq ft
467 sq m
- SECTOR
Commercial property for sale
Key features
- Village Centre Commercial Opportunity For Sale Freehold
- Due to Relocation
- Warehouse, Offices and Stores with Residential Flat
- Total Accommodation Extending to 5,030sqft, Site Area 0.2 acres
- 325sqm, 3,495sqft of Warehouse and Stores
- Ground and First Floor Offices Totalling 800sqft
- Large 2 Storey Property For Sale with Modernised First Floor Apartment
- Residential Development Potential or Suitable for Rural Workshops
Description
The large expanding village of Kirton has a population of over 5,000 residents and is currently subject to a number of major residential developments.
The village has a vibrant centre with a number of well- regarded cafés and public houses and shops, the property being located on Station Road which is a popular residential location with a school, fire station and clinics.
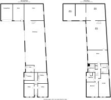
Accommodation...
The property comprises an L-shaped two storey structure of conventional construction.
Hallway
Office No.1.........................................3m x 4.2m, 13.1sqm
Office No. 2........................................4.2m x 3.5m, 14sqm
Kitchen.......................................3.4m x 2.6m, 8.9sqm
WC
Stairs lead to the first floor where there is an apartment.
Lobby.................................................3.2m x 2.4m, 7.7sqm
Lounge................................................7.7m x 3.7m, 29sqm
Bedroom No. 1......................................4m x 4.7, 18.7sqm
Bedroom No. 2.......................................2.7m x 2m, 6sqm
Kitchen.................................................2.4m x 2.8m, 7sqm
Having a full range of modern fitted kitchen units.
Airing Cupboard
Bathroom
Additional Office............................4.5m x 6.4m, 28.6sqm
A vehicular access leads to the side of the property to the rear car parking space where former stables have been used for storage.
Store.................................................5.2m x 3.5m, 18.7sqm
Store/Office............................5.1m x.3.6m, 18.7sqm
Store................5.1m x 6.7m max, 34.1sqm
Warehouse........................................21m x 6.7m, 141sqm
Ceiling height 2.75m.
First floor Warehouse....................16.2m x 6.4m, 104sqm
Schedule of Accommodation...
Offices 74.4m2 800ft2
Residential Apartment 68.4m2 736ft2
Warehouse/Stores 324.6m2 3,494ft2
Total 467.7m2 5,030ft2
Site Area 0.2 acres
Tenure...
The property is available freehold with vacant possession.
Outgoings...
The property has a Rateable Value of £6,500. Qualifying businesses may be able to claim relief. The residential apartment is rated at Council Tax Band A.
EPC...
An EPC has been instructed and will be available on request.
Viewing...
All viewings are to be made by appointment through the agent.Poyntons Consultancy.
Brochures
Station Road, Kirton, Boston, PE20 1LD
NEAREST STATIONS
Distances are straight line measurements from the centre of the postcode- Boston Station3.6 miles
- Hubberts Bridge Station4.0 miles
Notes
Disclaimer - Property reference StationRoadKirton. The information displayed about this property comprises a property advertisement. Rightmove.co.uk makes no warranty as to the accuracy or completeness of the advertisement or any linked or associated information, and Rightmove has no control over the content. This property advertisement does not constitute property particulars. The information is provided and maintained by Poyntons Consultancy Commercial, Lincolnshire Office. Please contact the selling agent or developer directly to obtain any information which may be available under the terms of The Energy Performance of Buildings (Certificates and Inspections) (England and Wales) Regulations 2007 or the Home Report if in relation to a residential property in Scotland.
Map data ©OpenStreetMap contributors.





