Waldron, Nr Heathfield, East Sussex
- PROPERTY TYPE
Plot
- BEDROOMS
1
- SIZE
Ask agent
Key features
- Planning permission to convert a detached barn.
- Adjoining pasture fields
- Rural Location
- Extending in all to approximately 1.9 acres
Description
The property is located off a country lane, approximately 1.4 miles to the south-east of Waldron village centre and 2.5 miles to the south-west of Heathfield. Tunbridge Wells is approximately 15 miles to the north-east, and the coast at Eastbourne approximately 16 miles to the south-east.
DESCRIPTION
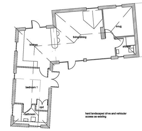
Star Lodge is an exciting development opportunity that currently comprises a detached outbuilding of timber weatherboard elevations beneath a peg tiled roof with planning permission to convert and extend, thereby creating a modern residential dwelling of approximately 74 M2. The delightful rural setting for the new dwelling will also benefit from adjoining paddocks extending to approximately 1.82 acres.
The property is registered under title number ESX263782 and extends in all to about 1.9 acres.
DIRECTIONS
From Heathfield High Street, proceed in a westerly direction on the A265 (which becomes the A267) towards Mayfield. Upon reaching Cross-in-Hand, turn left opposite the Shell garage onto the B2102 (signposted Uckfield, Lewes and Waldron) and then turn immediately left into Back Lane, continue on Back Lane for approximately 1.7 miles and then turn left onto Burnt Oak Lane and then after approximately 140 yards, turn right into Cambridge Lane. The entrance gates to Star Lodge will then be found on the right-hand side, immediately after the right-hand bend. Please do not obstruct the lane, as this also serves a neighbouring property.
SERVICES
There are no services currently connected. However, we understand that connections to mains electricity and water supplies should be possible, as the vendor has previously obtained quotes for connection.
METHOD OF SALE
The property is offered for sale by private treaty.
TENURE
The property is freehold.
LOCAL AUTHORITY
Wealden District Council
PHOTOGRAPHS
Photographs taken in March 2025.
EASEMENTS, WAYLEAVES AND RIGHTS OF WAY
The property is sold subject to and with the benefit of all existing rights whether public or private, including rights of way, supply, drainage, water and electricity supplies or other rights, covenants, restrictions and obligations, quasi-easements and all wayleaves whether referred to or not within these particulars.
ACREAGES
The acreages are for guidance purposes only and are given without responsibility. Any intending purchasers should not rely upon them as statements or representations of fact.
BOUNDARIES
The purchaser must satisfy themselves on the location of all boundaries from the Land Registry plans available and from their site inspection on the ground.
PLANS
The plans provided are for identification purposes only, and purchasers should satisfy themselves on the location of external or internal boundaries prior to offering.
TOWN AND COUNTRY PLANNING
Planning details for Star Lodge are available on the Wealden District Council website:
Application number: WD/2024/1993/LDE
The Community Infrastructure Levy (CIL) has been paid.
VIEWINGS
The vendors and their agents do not accept any responsibility for accidents or personal injury as a result of viewings, whether accompanied or not.
AGENTS NOTES
We wish to inform prospective purchasers that we have prepared these sales particulars as a general guide. None of the statements contained within these particulars relating to this property should be relied upon as a statement of fact. All measurements are given as a guide, and no liability can be accepted for any errors arising therefrom.
Brochures
BROCHUREWaldron, Nr Heathfield, East Sussex
NEAREST STATIONS
Distances are straight line measurements from the centre of the postcode- Buxted Station5.0 miles
Notes
Disclaimer - Property reference HF0591. The information displayed about this property comprises a property advertisement. Rightmove.co.uk makes no warranty as to the accuracy or completeness of the advertisement or any linked or associated information, and Rightmove has no control over the content. This property advertisement does not constitute property particulars. The information is provided and maintained by BTF Partnership, Heathfield. Please contact the selling agent or developer directly to obtain any information which may be available under the terms of The Energy Performance of Buildings (Certificates and Inspections) (England and Wales) Regulations 2007 or the Home Report if in relation to a residential property in Scotland.
Map data ©OpenStreetMap contributors.




