High street retail property to lease
17 High Street, Bognor Regis, West Sussex, PO21
- SIZE AVAILABLE
3,690-5,629 sq ft
343-523 sq m
- SECTOR
High street retail property to lease
Lease details
- Lease available date:
- Ask agent
Key features
- Bognor Regis is an affluent and popular resort town in West Sussex
- Busy pedestrian and vehicular throughfare
- Open plan sales area
- Suit a variety of uses, subject to planning
- New EFRI lease available
- Rent £45,000 pax
- Nearby occupiers include Cubitt & West, Loungers and Santander
Description
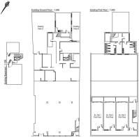
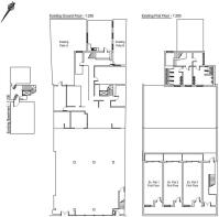
The accommodation provides a large open plan sales area, with ancillary accommodation in the basement and WCs on the first floor.
Location
Bognor Regis is an affluent and popular resort town in West Sussex ideally located on the south coast approximately 55 miles south west of London 24 miles west of Brighton and six miles south east of Chichester.
Planning
A new Use Classes Order (UCO) came into effect on 1st September 2020. Under the new UCO a new Use Class E was introduced to cover commercial, business and service uses. Use Class E encompasses A1, A2, A3, B1 and some D1 and D2 uses under the former UCO. We therefore understand that the premises benefit from Class E 'Commercial Business and Service' use within the Use Classes Order 2020.
VAT
Rents and prices are quoted exclusive of, but may be subject to VAT.
Accommodation
The accommodation has the following approximate Net Internal Area (NIA):
Business Rates / Council Tax Band
Rateable Value (2023): £44,500
Rateable Value (Draft - Scheduled for Implementation from 1st April 2026): £47,500
Occupiers will pay approximately 50% of this per annum (on sub £50,001 Rateable Values) and approximately 55% on Ratable Values above.
Interested parties should make their own enquiries to satisfy themselves of their business rates liability:
EPC
To be assessed.
Legal Fees
Each party to bear their own legal costs incurred.
Brochures
17 High Street, Bognor Regis, West Sussex, PO21
NEAREST STATIONS
Distances are straight line measurements from the centre of the postcode- Bognor Regis Station0.3 miles
- Barnham Station3.6 miles
- Ford Station5.2 miles

Notes
Disclaimer - Property reference 5659LH. The information displayed about this property comprises a property advertisement. Rightmove.co.uk makes no warranty as to the accuracy or completeness of the advertisement or any linked or associated information, and Rightmove has no control over the content. This property advertisement does not constitute property particulars. The information is provided and maintained by Flude Property Consultants, Chichester. Please contact the selling agent or developer directly to obtain any information which may be available under the terms of The Energy Performance of Buildings (Certificates and Inspections) (England and Wales) Regulations 2007 or the Home Report if in relation to a residential property in Scotland.
Map data ©OpenStreetMap contributors.






