Portland Street, Lincoln, Lincolnshire, LN5

- PROPERTY TYPE
Flat
- BEDROOMS
7
- BATHROOMS
5
- SIZE
Ask agent
- TENUREDescribes how you own a property. There are different types of tenure - freehold, leasehold, and commonhold.Read more about tenure in our glossary page.
Freehold
Key features
- 4 Modern Apartments
- Currently Achieving £59,325, with pre lets agreed for next year
- Over 11.8% Yield
- Ready Made Investment
- City Centre Location
- Council Tax Bands - A
- EPC Ratings Flats 1-3 - E
- EPC Rating Flat 4 - D
Description
READY MADE INVESTMENT ACHIEVING £59,325 ANNUALLY
Pygott & Crone are delighted to offer for sale this spacious home split into 4 flats located in a superb central location close to the City Centre.
The property itself is split into 4 Apartments which are currently let and the Owner has advised us it is achieving the following annual income: Flat 1 - £11,750, Flat 2 - £20,145, Flat 3 - £15,700, Flat 4 - £11,730. This equates to a gross income of £59,325 annually. The home makes the ideal investment whilst also offering an abundance of modern features throughout.
To avoid missing out please contact Pygott and Crone Today on .
Agent's Note: Flat 2 has been granted C4 Change of use, which allows the flat to be rented out to 3 individual tenants, allowing for a higher income.
We have been advised by the vendor that the property is currently let and the property is to be sold with tenants in situ. The property is fully let for 2025/26 as well. The buyer will need to confirm with their solicitor.
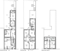
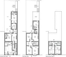
Flat 1
Hall
Kitchenette
Study
Dressing/Laundry Area
Shower Room
Further Hall
Lounge
Bedroom
En-Suite Shower Room
Entrance Hall
Kitchen
Flat 2 Bedroom
Flat 2 En-Suite Shower Room
Flat 3
Stairs Up To First Floor
Lobby
Flat 3 Lounge
Flat 3 Kitchen
Flat 3 WC
Bedroom 1
Bedroom 2
Bedroom 3
Stairs Up To Second Floor
Flat 4
Hallway
Flat 4 Kitchen
Flat 4 Bedroom
Flat 4 Bathroom
- COUNCIL TAXA payment made to your local authority in order to pay for local services like schools, libraries, and refuse collection. The amount you pay depends on the value of the property.Read more about council Tax in our glossary page.
- Band: A
- PARKINGDetails of how and where vehicles can be parked, and any associated costs.Read more about parking in our glossary page.
- Ask agent
- GARDENA property has access to an outdoor space, which could be private or shared.
- Ask agent
- ACCESSIBILITYHow a property has been adapted to meet the needs of vulnerable or disabled individuals.Read more about accessibility in our glossary page.
- Ask agent
Portland Street, Lincoln, Lincolnshire, LN5
Add an important place to see how long it'd take to get there from our property listings.
__mins driving to your place
Explore area BETA
Lincoln
Get to know this area with AI-generated guides about local green spaces, transport links, restaurants and more.
Get an instant, personalised result:
- Show sellers you’re serious
- Secure viewings faster with agents
- No impact on your credit score
Your mortgage
Notes
Staying secure when looking for property
Ensure you're up to date with our latest advice on how to avoid fraud or scams when looking for property online.
Visit our security centre to find out moreDisclaimer - Property reference 10639148. The information displayed about this property comprises a property advertisement. Rightmove.co.uk makes no warranty as to the accuracy or completeness of the advertisement or any linked or associated information, and Rightmove has no control over the content. This property advertisement does not constitute property particulars. The information is provided and maintained by Pygott & Crone, Lincoln. Please contact the selling agent or developer directly to obtain any information which may be available under the terms of The Energy Performance of Buildings (Certificates and Inspections) (England and Wales) Regulations 2007 or the Home Report if in relation to a residential property in Scotland.
*This is the average speed from the provider with the fastest broadband package available at this postcode. The average speed displayed is based on the download speeds of at least 50% of customers at peak time (8pm to 10pm). Fibre/cable services at the postcode are subject to availability and may differ between properties within a postcode. Speeds can be affected by a range of technical and environmental factors. The speed at the property may be lower than that listed above. You can check the estimated speed and confirm availability to a property prior to purchasing on the broadband provider's website. Providers may increase charges. The information is provided and maintained by Decision Technologies Limited. **This is indicative only and based on a 2-person household with multiple devices and simultaneous usage. Broadband performance is affected by multiple factors including number of occupants and devices, simultaneous usage, router range etc. For more information speak to your broadband provider.
Map data ©OpenStreetMap contributors.




