
Prince's Park, Salhouse Road, Rackheath, Norwich, Norfolk, NR13 6PG

- PROPERTY TYPE
Detached
- BEDROOMS
5
- SIZE
Ask developer
- TENUREDescribes how you own a property. There are different types of tenure - freehold, leasehold, and commonhold.Read more about tenure in our glossary page.
Freehold
Key features
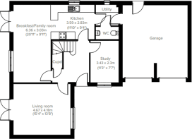
- Spacious detached family home
- Dual aspect living room with French doors
- Separate study
- Utility room for laundry and extra storage - with garage access
- Spacious kitchen/dining/family room with French doors to the garden
- Bedroom 1 with en suite
- Bedroom 2 and 3 with Jack and Jill en suite
- Family bathroom with modern fixtures and fittings
- Integral double garage
Description
The Oxford is an exceptional five-bedroom detached home that offers space, style and flexibility for growing families. The impressive L-shaped kitchen, dining and family area is filled with natural light thanks to French doors opening to the garden, complemented by a separate living room with its own garden access. A study, utility room and WC add everyday practicality, while the double garage provides ample storage. Upstairs, the luxurious bedroom one includes an en suite, bedrooms two and three share a Jack and Jill bathroom and a further family bathroom serves bedrooms four and five.
Additional Information
- Tenure: Freehold
- Council tax band: Not made available by local authority until post-occupation
Room Dimensions
- Breakfast/Family room - 3.03 x 6.36 metre
- Kitchen - 3.59 x 2.83 metre
- Living room - 4.18 x 4.67 metre
- Study - 2.3 x 3.43 metre
- Kitchen - 3.59 x 2.77 metre
- Bedroom One - 5.36 x 4.6 metre
- Bedroom Two - 4.67 x 2.0 metre
- Bedroom Three - 3.0 x 3.37 metre
- Bedroom Four - 3.11 x 2.87 metre
- Bedroom Five - 2.63 x 2.84 metre
- COUNCIL TAXA payment made to your local authority in order to pay for local services like schools, libraries, and refuse collection. The amount you pay depends on the value of the property.Read more about council Tax in our glossary page.
- Ask developer
- PARKINGDetails of how and where vehicles can be parked, and any associated costs.Read more about parking in our glossary page.
- Yes
- GARDENA property has access to an outdoor space, which could be private or shared.
- Yes
- ACCESSIBILITYHow a property has been adapted to meet the needs of vulnerable or disabled individuals.Read more about accessibility in our glossary page.
- Ask developer
Energy performance certificate - ask developer
- Choice of 2, 3, 4 and 5 bedroom homes
- Excellent proximity to Norwich city centre
- Beautiful nature reserves and coastline nearby
- Schools and essential amenities within walking distance
Prince's Park, Salhouse Road, Rackheath, Norwich, Norfolk, NR13 6PG
Add an important place to see how long it'd take to get there from our property listings.
__mins driving to your place
Get an instant, personalised result:
- Show sellers you’re serious
- Secure viewings faster with agents
- No impact on your credit score
About the development
About Charles Church
Prince's Park is situated in New Rackheath, less than 5 miles from the bustling and historic centre of Norwich. Living at Prince's Park you'll benefit from essential amenities and schools within walking distance, while the numerous shops, restaurants and attractions of Norwich are just a 10-minute drive away. From browsing independent retailers in The Lanes, to sampling the vast and vibrant outdoor market, to exploring the magnificent castle, there's so much to do in the city.
4.7 miles away lies the popular town of Wroxham. Known as the capital of the Norfolk Broads, Wroxham is home to an abundance of waterside shops, pubs and restaurants. Visitors can also enjoy the riverside park, model museum, steam railway, craft centre, and of course the scenic waterways which you can explore by hire boat – all less than 10 minutes from our development.
Add this to the superb transport links and proximity to the stunning Norfolk Broads and coastline, and Charles Church Prince's Park really does have something for everyone.
This development offers the following schemes:
- New Build Boost
- Part Exchange
- Deposit Boost
- Home Change
- Own New Rate Reducer
Schemes are available on selected plots only, subject to status, terms and conditions apply. Contact the development for latest information.
Affordability
Notes
Staying secure when looking for property
Ensure you're up to date with our latest advice on how to avoid fraud or scams when looking for property online.
Visit our security centre to find out moreDisclaimer - Property reference 5_1. The information displayed about this property comprises a property advertisement. Rightmove.co.uk makes no warranty as to the accuracy or completeness of the advertisement or any linked or associated information, and Rightmove has no control over the content. This property advertisement does not constitute property particulars. The information is provided and maintained by Charles Church. Please contact the selling agent or developer directly to obtain any information which may be available under the terms of The Energy Performance of Buildings (Certificates and Inspections) (England and Wales) Regulations 2007 or the Home Report if in relation to a residential property in Scotland.
*This is the average speed from the provider with the fastest broadband package available at this postcode. The average speed displayed is based on the download speeds of at least 50% of customers at peak time (8pm to 10pm). Fibre/cable services at the postcode are subject to availability and may differ between properties within a postcode. Speeds can be affected by a range of technical and environmental factors. The speed at the property may be lower than that listed above. You can check the estimated speed and confirm availability to a property prior to purchasing on the broadband provider's website. Providers may increase charges. The information is provided and maintained by Decision Technologies Limited. **This is indicative only and based on a 2-person household with multiple devices and simultaneous usage. Broadband performance is affected by multiple factors including number of occupants and devices, simultaneous usage, router range etc. For more information speak to your broadband provider.
Map data ©OpenStreetMap contributors.






