Falcon House, King Street, Castle Hedingham, Essex CO9 3ER

- PROPERTY TYPE
Town House
- BEDROOMS
4
- BATHROOMS
2
- SIZE
3,500 sq ft
325 sq m
- TENUREDescribes how you own a property. There are different types of tenure - freehold, leasehold, and commonhold.Read more about tenure in our glossary page.
Freehold
Key features
- Amazing Character Property
- Investment Opportunity
- Potential Four Bedroom Property
- 3700 Sq Ft
- Four Storey Building
- In the Heart Of Castle Hedingham
- In Need of Conversion/Modernisation
- Incredible Cellar Space
- Full of Character and Charm
- No Onward Chain
Description
Quote Ref: DP0213 when requesting further details of the amazing opportunity to purchase this stunning Grade II listed property set in the heart of Castle Hedingham. The property has many 17th century character features to include ornate cornicing, many sash windows and marble fire surrounds and an impressive turned staircase. Currently used as a commercial premises the property has got recent change of use to a fabulous four-bedroom four storey dwelling to include an impressive cellar.
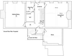
As you enter this impressive property you are greeted with a fine hallway with a feature ornate turned staircase and other character features to include detailed door surrounds and wall panelling. The ground floor currently provides three office rooms with plans to convert into a formal kitchen and separate living room and study. There are stairs down to the lower ground floor where the cellars are situated.
On the first floor there is a staggered landing with access to three main rooms that are currently office space but with plans to covert to three large double bedrooms with two en-suites and a family bathroom. One of the rooms at the rear is a fully wood panelled room and the other rooms have feature fireplaces and plenty of light through the sash windows.
On the second floor there is currently a kitchen area with an open landing with a shower room and two separate wcs and a washroom area all with planning permission to convert to a large bedroom suite with bathroom and dressing room.
Outside:
To the rear of the property there is an open courtyard area with access through a side gate to the front of the property and there is a separate outbuilding that could be converted for independent use or storage for the property.
Agents Note:
The property has been through an application to covert to residential status - Planning number 24/01547/FUL through Braintree Council.
Services:
Mains Electricity. Gas fired heating. Mains Drainage. Braintree Council Tax TBC (property is currently commercially rated) .There are BT Openreach and County Broadband Standard, Superfast and Ultrafast broadband connections up to 1000mbps available at his property (according to Ofcom broadband checker).
- COUNCIL TAXA payment made to your local authority in order to pay for local services like schools, libraries, and refuse collection. The amount you pay depends on the value of the property.Read more about council Tax in our glossary page.
- Ask agent
- LISTED PROPERTYA property designated as being of architectural or historical interest, with additional obligations imposed upon the owner.Read more about listed properties in our glossary page.
- Listed
- PARKINGDetails of how and where vehicles can be parked, and any associated costs.Read more about parking in our glossary page.
- Ask agent
- GARDENA property has access to an outdoor space, which could be private or shared.
- Ask agent
- ACCESSIBILITYHow a property has been adapted to meet the needs of vulnerable or disabled individuals.Read more about accessibility in our glossary page.
- Ask agent
Energy performance certificate - ask agent
Falcon House, King Street, Castle Hedingham, Essex CO9 3ER
Add an important place to see how long it'd take to get there from our property listings.
__mins driving to your place
Get an instant, personalised result:
- Show sellers you’re serious
- Secure viewings faster with agents
- No impact on your credit score
Your mortgage
Notes
Staying secure when looking for property
Ensure you're up to date with our latest advice on how to avoid fraud or scams when looking for property online.
Visit our security centre to find out moreDisclaimer - Property reference S1244975. The information displayed about this property comprises a property advertisement. Rightmove.co.uk makes no warranty as to the accuracy or completeness of the advertisement or any linked or associated information, and Rightmove has no control over the content. This property advertisement does not constitute property particulars. The information is provided and maintained by eXp UK, South East. Please contact the selling agent or developer directly to obtain any information which may be available under the terms of The Energy Performance of Buildings (Certificates and Inspections) (England and Wales) Regulations 2007 or the Home Report if in relation to a residential property in Scotland.
*This is the average speed from the provider with the fastest broadband package available at this postcode. The average speed displayed is based on the download speeds of at least 50% of customers at peak time (8pm to 10pm). Fibre/cable services at the postcode are subject to availability and may differ between properties within a postcode. Speeds can be affected by a range of technical and environmental factors. The speed at the property may be lower than that listed above. You can check the estimated speed and confirm availability to a property prior to purchasing on the broadband provider's website. Providers may increase charges. The information is provided and maintained by Decision Technologies Limited. **This is indicative only and based on a 2-person household with multiple devices and simultaneous usage. Broadband performance is affected by multiple factors including number of occupants and devices, simultaneous usage, router range etc. For more information speak to your broadband provider.
Map data ©OpenStreetMap contributors.





