
Cattle Way, Crewe

- PROPERTY TYPE
Mews
- BEDROOMS
3
- BATHROOMS
1
- SIZE
Ask agent
Key features
- 3 Bedrooms
- Cloakroom
- Desirable location
- Double driveway
- Enclosed rear garden
- First Time Buyer home
- Integrated Appliances
- Modern Mews Property
- NHBC Guarantee
- Shared ownership 40%
Description
Council Tax Band: B (Cheshire East)
Tenure: Leasehold
Shared Ownership: 40% being sold, £326 per month rental payments
Rent includes service charges and buildings insurance.
Access
Approached over a paved pathway which leads to the part glazed, composite front door under porch leading into:
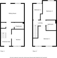
Entrance Hall
Good sized entrance hall with stairs rising to first floor landing, doors off to kitchen. cloakroom, understair cupboard and sitting room. Laminate flooring and radiator. Wired smoke alarm.
Kitchen
w: 2.44m x l: 3.32m (w: 8' x l: 10' 11")
Fitted with a range of soft close, wall, base and drawer units with worksurfaces over incorporating a single bowl stainless steel sink and drainer with mixer tap. Integrated electric oven with gas burner hob and extractor over having stainless steel splashback. Space for fridge/freezer and space for washing machine. Wall mounted central heating boiler in matching wall cupboard. uPvc double glazed, Georginan bar window to front elevation. Radiator. Laminate flooring. Extractor fan and inset spotlighting.
Cloakroom
Fitted with a two piece suite comprising low level, push button W.C. and pedestal wash hand basin with splash back tiling. Radiator. Extractor fan and laminate flooring.
Sitting Room
w: 4.61m x l: 3.69m (w: 15' 1" x l: 12' 1")
Generous Sitting room with laminate flooring continued through from the entrance hallway, radiator, uPvc double glazed window to rear elevation, uPvc double glazed door to rear elevation.
Landing
Having doors off to all bedrooms, family bathroom. Loft access. Radiator.
Bedroom 1
w: 4.62m x l: 3.69m (w: 15' 2" x l: 12' 1")
Large double room having uPvc double glazed, Georgian Bar windows to front elevation. Radiator.
Bedroom 2
w: 3.1m x l: 3.79m (w: 10' 2" x l: 12' 5")
Double room currently set us as gym and office. Having radiator and uPvc double glazed window to rear elevation.
Bedroom 3
w: 1.84m x l: 3.24m (w: 6' x l: 10' 8")
Good sized single room currently set up as dressing room and having uPvc double glazed window to rear elevation. Radiator.
Bathroom
Fitted with a 3 piece suite comprising panelled bath with electric shower over and glazed pivot screen, low level push button W.C., pedestal wash hand basin, complimentary tiling, radiator and extractor fan. Laminate flooring.
Externally
The front of the property has a double driveway, paved pathway leading to the front door and blue slate border. To the rear the garden is fenced on all boundaries and whilst mainly laid to lawn has a good sized patio area for outside entertaining.
Energy Performance
The current rating is 85 with a potential of 97.
Viewings
Viewings are strictly by appointment only. Please call or email the office to arrange. Thank you.
Looking to sell?
If you are thinking of selling please call or email the office to arrange a free Market Appraisal. Thank you.
Brochures
Brochure- COUNCIL TAXA payment made to your local authority in order to pay for local services like schools, libraries, and refuse collection. The amount you pay depends on the value of the property.Read more about council Tax in our glossary page.
- Band: B
- PARKINGDetails of how and where vehicles can be parked, and any associated costs.Read more about parking in our glossary page.
- Off street
- GARDENA property has access to an outdoor space, which could be private or shared.
- Private garden,Enclosed garden
- ACCESSIBILITYHow a property has been adapted to meet the needs of vulnerable or disabled individuals.Read more about accessibility in our glossary page.
- Ask agent
Cattle Way, Crewe
Add an important place to see how long it'd take to get there from our property listings.
__mins driving to your place
Get an instant, personalised result:
- Show sellers you’re serious
- Secure viewings faster with agents
- No impact on your credit score
Your mortgage
Notes
Staying secure when looking for property
Ensure you're up to date with our latest advice on how to avoid fraud or scams when looking for property online.
Visit our security centre to find out moreDisclaimer - Property reference RS0583. The information displayed about this property comprises a property advertisement. Rightmove.co.uk makes no warranty as to the accuracy or completeness of the advertisement or any linked or associated information, and Rightmove has no control over the content. This property advertisement does not constitute property particulars. The information is provided and maintained by Wheatcroft & Lloyd, Sandbach. Please contact the selling agent or developer directly to obtain any information which may be available under the terms of The Energy Performance of Buildings (Certificates and Inspections) (England and Wales) Regulations 2007 or the Home Report if in relation to a residential property in Scotland.
*This is the average speed from the provider with the fastest broadband package available at this postcode. The average speed displayed is based on the download speeds of at least 50% of customers at peak time (8pm to 10pm). Fibre/cable services at the postcode are subject to availability and may differ between properties within a postcode. Speeds can be affected by a range of technical and environmental factors. The speed at the property may be lower than that listed above. You can check the estimated speed and confirm availability to a property prior to purchasing on the broadband provider's website. Providers may increase charges. The information is provided and maintained by Decision Technologies Limited. **This is indicative only and based on a 2-person household with multiple devices and simultaneous usage. Broadband performance is affected by multiple factors including number of occupants and devices, simultaneous usage, router range etc. For more information speak to your broadband provider.
Map data ©OpenStreetMap contributors.






