Station Yard, Station Road, North Kesley Moor, Market Rasen LN7 6HD
- SIZE AVAILABLE
7,750 sq ft
720 sq m
- SECTOR
Light industrial facility for sale
- USE CLASSUse class orders: B1 Business and C3 Dwelling Houses
B1, C3
Key features
- Occupying a Plot of 1.2 Acres
- With First Floor 2 Bedroom Apartment
- Light Industrial Unit with Mezzanine Storage Area
- Ample Parking
- Consideration would be given to the sale of the property to include the existing business
- EPC Rating - D
Description
The property is located adjacent to the level crossing at North Kelsey Moor, as shown on the site plan attached. The property is located approximately three miles east of Caistor Town Centre, accessed directly from North Kelsey Road. Market Rasen is located approximately 9 miles to the south.
Description
We are pleased to offer for sale this excellent and rare opportunity to purchase a steel framed light industrial unit, suitable for a variety of business purposes, currently being run as a successful gun shop, with associated rifle range and archery club. The property has a ground floor footprint of 720 sq.m (7,750 sq.ft) and in addition, there is a first floor apartment extending to 180 sq.m (1,937 sq.ft) and there is also a useful mezzanine storage area of 160 sq.m (1,722 sq.ft). The property occupies a plot of circa. 1.2 acres including landscaped grassland, vehicle parking and loading bays to the rear. Consideration would be given to the sale of the property to include the existing 'business', which is considered to be a profitable and viable going concern. Further details are available on request.
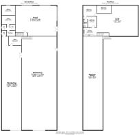
Accommodation
The accommodation is currently configured to provide a retail area, with ancillary offices, kitchens and WCs off, which could be used for a variety of showroom/business uses, having a floor area of 180 sq.m (1,937 sq.ft).
In addition, the warehouse/workshop space, currently used as an indoor archery and rifle range, extends to a further 450 sq.m (4,844 sq.ft) having the benefit of an oil-fired warm air heater and two vehicle access loading doors to the rear. Internal working headroom within the workspace is 4.5 metres and lighting is via LED strip lights.
There is a mezzanine store directly above the workshop/warehouse accommodation, providing useful additional stores. The mezzanine extends to 160 sq.m (1,722 sq.ft).
The property also offers the rare facility of incorporating residential accommodation located directly above the retail and office space, comprising a large open-plan living area, fitted kitchen, two bedrooms, bathroom and dressing room and having a total floor area of 180 sq.m (1,937 sq.ft). The living accommodation can be accessed via a stairwell from the retail space or alternatively, from the mezzanine floor. The living accommodation has a wood-burning stove installed and the property is therefore ideally set-up for a business requiring on-site accommodation.
GROUNDS
The property occupies a large, level plot extending to 1.2 acres with attractively landscaped grounds, principally set to lawn. A large gravelled car parking area can accommodate a number of vehicles and a long stretch of grassland to the rear of the building (currently used as an outdoor archery range) is suitable for a variety of storage uses, having direct access to the workspace via two roller shutter loading doors.
Services
Mains drainage, electricity and water are understood to be connected. An oil-fired convector heater is installed within the workspace.
EPC Rating - D
Tenure
The property is available for sale on a Freehold basis.
Business Rates
Rates £7,700 (Retail/Showroom/Office Premises)
£17,500 (Warehouse/Workspace)
Small Business Multiplier (2023/2024) 49.9p in the £.
The property may qualify for small business rates relief.
It may be possible to obtain Small Business Rates Relief, depending on individual circumstances.
The current business running the Rifle & Archery Range is able to claim 75% Business Rates Relief in respect of the Workshop/Warehouse accommodation. It may be possible for the buyer to continue receiving this benefit depending on the future use of the premises.
Council Tax Band - A (Living Accommodation)
VAT
VAT may be applicable in addition to the purchase price at the prevailing rate.
Viewing
By prior appointment through Mundys Commercial.
Parking
Yes
Brochures
Station Yard, Station Road, North Kesley Moor, Market Rasen LN7 6HD
NEAREST STATIONS
Distances are straight line measurements from the centre of the postcode- Barnetby Station5.1 miles
- Brigg Station5.1 miles
Notes
Disclaimer - Property reference Trackside. The information displayed about this property comprises a property advertisement. Rightmove.co.uk makes no warranty as to the accuracy or completeness of the advertisement or any linked or associated information, and Rightmove has no control over the content. This property advertisement does not constitute property particulars. The information is provided and maintained by Mundys Commercial, Lincoln. Please contact the selling agent or developer directly to obtain any information which may be available under the terms of The Energy Performance of Buildings (Certificates and Inspections) (England and Wales) Regulations 2007 or the Home Report if in relation to a residential property in Scotland.
Map data ©OpenStreetMap contributors.





