
Randall Garth, Driffield, YO25 5PE

- PROPERTY TYPE
Town House
- BEDROOMS
3
- BATHROOMS
3
- SIZE
Ask agent
- TENUREDescribes how you own a property. There are different types of tenure - freehold, leasehold, and commonhold.Read more about tenure in our glossary page.
Freehold
Key features
- Townhouse
- Three Double Bedrooms
- Three Bathrooms
- Off Street Parking
- Good Condition
- Two Reception Rooms
Description
Brought to the market with no onward chain, Randall Garth is a three bedroom townhouse which is in good condition throughout and offers a blank canvas to put your own stamp on it. The vendor has reconfigured the property to create more useable space and bigger bedrooms to provide more comfortable accommodation.
The property briefly comprises:- entrance hall, snug, kitchen, shower room, first floor landing with lounge and bedroom three, second floor landing with two bedrooms, both with en-suites, rear garden and off street parking.
LOCATION
Driffield offers an outstanding array of amenities, including shops, restaurants, public houses, quality sports facilities dedicated to Rugby, Golf, Football, Bowls, Cricket and many others, as well as a very highly regarded Secondary School. It also provides excellent road and public transport connections to Hull, Beverley, Bridlington and Scarborough.
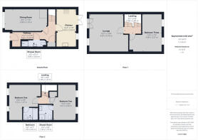
THE ACCOMMODATION COMPRISES:-
ENTRANCE HALL- 2'11 (0.91m) x 17'3 (5.28m)
Door to the front aspect, storage cupboard, stairs leading to the first floor landing, vinyl flooring, radiator and power points.
DINING ROOM- 8'9 (2.68m) x 17'0 (5.19m)
Window to the front aspect, vinyl flooring, radiator, TV point and power points.
KITCHEN- 15'4 (4.69m) x 7'8 (2.35m)
French doors and window to the rear aspect, cupboard housing the gas boiler, tiled splash back, a range of wall and base units, sink with drainer unit, integrated fridge/freezer, integrated dishwasher, plumbing for washing machine and space for additional white goods, electric oven, gas hob, extractor hood, vinyl flooring, radiator and power points.
SHOWER ROOM- 2'9 (0.85m) x 9'11 (3.04m)
Partially tiled walls, three piece bathroom suite comprising:- low flush WC, wall mounted sink, shower cubicle, laminated flooring, radiator and extractor fan.
FIRST FLOOR LANDING- 3'2 (0.98m) x 6'6 (2.00m)
Stairs leading to the second floor landing, fitted carpets, radiator and power points.
LOUNGE- 15'3 (4.67m) x 13'8 (4.18m)
French doors and window to the front aspect, laminated flooring, radiator, TV point, telephone point and power points.
BEDROOM THREE- 15'4 (4.68m) x 7'9 (2.37m)
Double bedroom with windows to the rear aspect, fitted carpets, radiator, TV point and power points.
SECOND FLOOR LANDING- 3'5 (1.06m) x 4'0 (1.24m)
Fitted carpets and power points. There is also access to the loft.
BEDROOM ONE- 15'6 (4.73m) x 5'9 (1.77m)
Double aspect windows to the front, fitted carpets, radiator, TV point, telephone point and power points.
EN-SUITE BATHROOM- 5'6 (1.70m) x 6'7 (2.03m)
Three piece bathroom suite comprising:- low flush WC, sink with pedestal, panelled bath, storage cupboard, vinyl flooring, radiator and extractor fan.
BEDROOM TWO- 15'3 (4.67m) x 9'8 (2.96m)
Double aspect windows to the rear aspect, fitted carpets, radiator, TV point and power points.
EN-SUITE- 6'4 (1.94m) x 5'8 (1.75m)
Three piece bathroom suite comprising:- low flush WC, sink with pedestal, shower cubicle, vinyl flooring, radiator and extractor fan.
GARDEN
North facing garden which is mainly laid to lawn with patio area to the immediate rear, garden shed, timber fencing ensuring it's fully secure and gated rear access for bins.
PARKING
Off street parking for two cars.
SERVICES
Understood to all be connected to mains. Mains gas, water and electric.
TENURE
The property is Freehold and offered with the benefit of vacant possession upon completion.
COUNCIL TAX BAND
Council Tax is payable to the East Riding of Yorkshire Council. The property is shown on the Council Tax Property Bandings List in Valuation Band 'C'.
EPC
This property's energy rating is C.
VIEWING
Strictly by appointment with the sole agents.
FREE VALUATION
If you are looking to sell your own property, we will be very happy to provide you with a free, no obligation market appraisal and valuation. We offer very competitive fees and an outstanding personal service that is rated 5 star by our fully verified clients.
ANTI-MONEY LAUNDERING (AML) REGULATIONS
In accordance with the Money Laundering, Terrorist Financing and Transfer of Funds (Information on the Payer) Regulations 2017, we are required to carry out identity checks on all purchasers. A charge of £25 + VAT per person will be payable by the purchaser to cover the cost of these checks. This fee is non-refundable and is payable upon acceptance of an offer.
Brochures
Brochure 1- COUNCIL TAXA payment made to your local authority in order to pay for local services like schools, libraries, and refuse collection. The amount you pay depends on the value of the property.Read more about council Tax in our glossary page.
- Band: C
- PARKINGDetails of how and where vehicles can be parked, and any associated costs.Read more about parking in our glossary page.
- Yes
- GARDENA property has access to an outdoor space, which could be private or shared.
- Yes
- ACCESSIBILITYHow a property has been adapted to meet the needs of vulnerable or disabled individuals.Read more about accessibility in our glossary page.
- Ask agent
Randall Garth, Driffield, YO25 5PE
Add an important place to see how long it'd take to get there from our property listings.
__mins driving to your place
Affordability
Get an instant, personalised result:
- Show sellers you’re serious
- Secure viewings faster with agents
- No impact on your credit score
Notes
Staying secure when looking for property
Ensure you're up to date with our latest advice on how to avoid fraud or scams when looking for property online.
Visit our security centre to find out moreDisclaimer - Property reference dah_2025478338. The information displayed about this property comprises a property advertisement. Rightmove.co.uk makes no warranty as to the accuracy or completeness of the advertisement or any linked or associated information, and Rightmove has no control over the content. This property advertisement does not constitute property particulars. The information is provided and maintained by Dee Atkinson & Harrison, Driffield. Please contact the selling agent or developer directly to obtain any information which may be available under the terms of The Energy Performance of Buildings (Certificates and Inspections) (England and Wales) Regulations 2007 or the Home Report if in relation to a residential property in Scotland.
*This is the average speed from the provider with the fastest broadband package available at this postcode. The average speed displayed is based on the download speeds of at least 50% of customers at peak time (8pm to 10pm). Fibre/cable services at the postcode are subject to availability and may differ between properties within a postcode. Speeds can be affected by a range of technical and environmental factors. The speed at the property may be lower than that listed above. You can check the estimated speed and confirm availability to a property prior to purchasing on the broadband provider's website. Providers may increase charges. The information is provided and maintained by Decision Technologies Limited. **This is indicative only and based on a 2-person household with multiple devices and simultaneous usage. Broadband performance is affected by multiple factors including number of occupants and devices, simultaneous usage, router range etc. For more information speak to your broadband provider.
Map data ©OpenStreetMap contributors.









