5 bedroom detached house for sale
Ashford Road, Tenterden, Kent, TN30

- PROPERTY TYPE
Detached
- BEDROOMS
5
- BATHROOMS
4
- SIZE
Ask agent
- TENUREDescribes how you own a property. There are different types of tenure - freehold, leasehold, and commonhold.Read more about tenure in our glossary page.
Freehold
Key features
- Characterful Georgian family Home
- Period Features
- 5/6 Bedrooms
- Outbuilding with potential for conversion
- Delightful Gardens
- Prominent Town location
- Walking distance to town centre
- Access to commuter links
Description
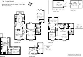
The Georgian part of the house exhibits period features that would be expected of a property from this era, such as high ceilings, excellent room proportions, period fireplaces, bay windows to the front façade, sash windows and picture rails. The versatile accommodation is set across four levels and is accompanied by a wonderful garden room with bi-folding doors adjacent to the garden terrace, a substantial outbuilding with integrated garaging, an Edwardian greenhouse, a timber framed gazebo and garden shed.
The gardens are something to admire and a real surprise considering the property’s central town location. They have been beautifully maintained by the current owner and include many wonderful specimens such as a majestic ancient mulberry tree, a medlar, silver birch and a ginkgo biloba. The garden has been designed and expertly planted with climbing and rambling wisteria, rose beds, box hedging, evergreen shrubs and perennials. A walled vegetable garden is well positioned to experience wonderful levels of sunlight for growing an abundance of fruit and vegetables.
The outbuilding incorporates a garage, open log storage along the full length of the building and rooms above. The outbuilding could be utilised in a number of ways, and offers potential for conversion subject to any necessary planning consents.
As well as the garaging in the outbuilding the property also benefits from two further off-road parking spaces accessed through electric gates and along a private driveway.
The Tower House is a wonderfully charming family home.
FEATURES
- Dual aspect grand drawing room, formally two separate reception rooms that could be reinstated with partitioning doors, open fireplaces - one with a log burner, fitted bookcases, French doors opening onto the garden terrace and bay window with views to the front
- Formal dining room with bay window seat overlooking the front, feature open fireplace
- Kitchen/breakfast room with pine floorboards, good selection of painted wall and base units, larder cupboard and pantry cupboard with space for fridge freezer, central freestanding island, Aga, double bowl stainless steel sink, and French doors opening onto a balcony for prime views over the garden
- Laundry/utility room with space for washing machine and tumble dryer, storage cupboards and access door to driveway
- Basement level cosy family room, ideal for use as a children’s play space, door opening onto a small terrace with steps up to the garden
- Basement level guest bedroom and separate bathroom with contemporary roll top bath, WC and wall hung basin
- First floor master suite with dressing room and en suite shower room
- Three further first floor bedrooms, two doubles and one ideal size for a baby’s nursery
- Family bathroom and family shower room complete the first floor accommodation
- Second floor bedroom/home office space
- Access to the top of the tower is gained from the second floor landing, from atop the tower you can see for miles across the whole of Tenterden and the surrounding Kentish countryside
- Garden room with bi-folding doors to two sides of the building offers a wonderful outside/inside entertaining space
SITUATION
Set in a prominent location in the picturesque market town of Tenterden, the property benefits from being only moments away from Waitrose and Tesco supermarkets, shops, restaurants and amenities. There are a host of leisure and tourist attractions nearby including the Kent and East Sussex Railway, Great Dixter Gardens at Northiam, Bodiam and Sissinghurst Castles (National Trust), Chapel Down Vineyard, London Beach Golf Club and Spa and the coast. Tenterden also has its own leisure centre offering swimming and gym facilities as well as spa treatments.
A range of schools in the area include Tenterden Infant and Junior Schools, Homewood School and Sixth Form Centre (both in walking distance), girls’ and boys’ grammar schools in Ashford, Dulwich Preparatory in Cranbrook, Sutton Valence Preparatory and Senior schools plus Saint Ronan’s and Marlborough House in Hawkhurst.
Headcorn Station offers services to London Bridge, Cannon Street and Charing Cross with journey times from just under the hour with Ashford International operating the high speed service to London St Pancras from just 37 minutes.
The A28 gives access to the M20 leading east to the coastal ports and west to the M25 for links to Gatwick, Heathrow, City and Stansted Airports.
Headcorn 8.5 miles
Ashford 12 miles
M20 12 miles
Rye 12 miles
(All distances are approximate)
PROPERTY INFORMATION
- Services: Gas fired central heating. Mains gas, electric, water and drainage.
- Local Authority: Ashford Borough Council.
- Council Tax band: G (2023/24)
- Fixtures and fittings are excluded from the sale but may be available by separate negotiation.
DIRECTIONS
From Tenterden town centre proceed north-east on the High Street (A28) towards High Halden. At the traffic lights keep left, go past Oaks Road (B2080) on the right and the property will be found after a short distance on the left.
VIEWINGS
Strictly by appointment through Jackson-Stops.
Tel:
Brochures
Particulars- COUNCIL TAXA payment made to your local authority in order to pay for local services like schools, libraries, and refuse collection. The amount you pay depends on the value of the property.Read more about council Tax in our glossary page.
- Band: G
- PARKINGDetails of how and where vehicles can be parked, and any associated costs.Read more about parking in our glossary page.
- Yes
- GARDENA property has access to an outdoor space, which could be private or shared.
- Yes
- ACCESSIBILITYHow a property has been adapted to meet the needs of vulnerable or disabled individuals.Read more about accessibility in our glossary page.
- Ask agent
Energy performance certificate - ask agent
Ashford Road, Tenterden, Kent, TN30
Add an important place to see how long it'd take to get there from our property listings.
__mins driving to your place
Get an instant, personalised result:
- Show sellers you’re serious
- Secure viewings faster with agents
- No impact on your credit score
Your mortgage
Notes
Staying secure when looking for property
Ensure you're up to date with our latest advice on how to avoid fraud or scams when looking for property online.
Visit our security centre to find out moreDisclaimer - Property reference CRA220122. The information displayed about this property comprises a property advertisement. Rightmove.co.uk makes no warranty as to the accuracy or completeness of the advertisement or any linked or associated information, and Rightmove has no control over the content. This property advertisement does not constitute property particulars. The information is provided and maintained by Jackson-Stops, Kent And East Sussex. Please contact the selling agent or developer directly to obtain any information which may be available under the terms of The Energy Performance of Buildings (Certificates and Inspections) (England and Wales) Regulations 2007 or the Home Report if in relation to a residential property in Scotland.
*This is the average speed from the provider with the fastest broadband package available at this postcode. The average speed displayed is based on the download speeds of at least 50% of customers at peak time (8pm to 10pm). Fibre/cable services at the postcode are subject to availability and may differ between properties within a postcode. Speeds can be affected by a range of technical and environmental factors. The speed at the property may be lower than that listed above. You can check the estimated speed and confirm availability to a property prior to purchasing on the broadband provider's website. Providers may increase charges. The information is provided and maintained by Decision Technologies Limited. **This is indicative only and based on a 2-person household with multiple devices and simultaneous usage. Broadband performance is affected by multiple factors including number of occupants and devices, simultaneous usage, router range etc. For more information speak to your broadband provider.
Map data ©OpenStreetMap contributors.




