3 bedroom semi-detached house for sale
Waveney Road, Diss

- PROPERTY TYPE
Semi-Detached
- BEDROOMS
3
- BATHROOMS
1
- SIZE
920 sq ft
85 sq m
- TENUREDescribes how you own a property. There are different types of tenure - freehold, leasehold, and commonhold.Read more about tenure in our glossary page.
Freehold
Key features
- Guide Price £260,000 - £270,000
- No onward chain
- Victorian semi-detached house
- Close to town centre
- Three bedrooms
- Downstairs cloakroom
- Driveway parking to front
- Freehold - EPC Rating D
- Council Tax Band C
- Gas heating - Mains drainage
Description
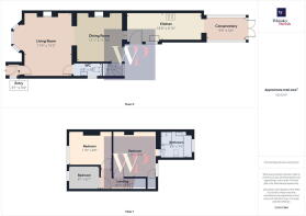
Offered with no onward chain, this Victorian semi-detached house is conveniently located close to the town centre and within short distance of the train station. The property is of traditional brick construction, built in circa 1888 boasting original sash windows to the front and is presented in excellent order throughout. The accommodation extends to approximately 900 square feet with the ground floor offering an entrance porch leading into a well proportioned sitting room with front bay window, feature fireplace with gas fire and arch leading into the dining room. The dining room has ample space for table and chairs, stairs to first floor and a fireplace. The kitchen forms part of an extension to the rear of the property and offers a range of wall and base units with integrated appliances, gas hob and space and plumbing for washing machine. The ground floor also boasts a cloakroom and fabulous conservatory with glass roof and French doors opening out onto the rear garden. Upstairs offers three bedrooms, two of which are double rooms and the bathroom is located off bedroom one. The loft has a drop down ladder and is partly boarded to one side. There may be potential to convert the loft space subject to planning permission.
Externally the property is located on a small cul-de-sac off Victoria Road and conveniently positioned for easy access to the town centre and train station. There is parking on a brick weave driveway to the front and side gate leading to the rear garden. The rear garden is laid to lawn and patio with an array of mature trees and shrubs and there is a useful garden shed.
ENTRANCE PORCH:
LIVING ROOM: - 3.45m x 4.62m (11'4" x 15'2")
WC: - 2.03m x 0.91m (6'8" x 3'0")
DINING ROOM: - 3.38m x 3.61m (11'1" x 11'10")
KITCHEN: - 5.49m x 2.08m (18'0" x 6'10")
CONSERVATORY: - 2.97m x 1.68m (9'9" x 5'6")
FIRST FLOOR LEVEL - LANDING:
BEDROOM: - 3.51m x 2.67m (11'6" x 8'9")
BEDROOM: - 2.46m x 1.85m (8'1" x 6'1")
BEDROOM: - 3.43m x 3.58m (11'3" x 11'9")
BATHROOM: - 2.64m x 2.29m (8'8" x 7'6")
SERVICES:
Drainage - mains
Heating - gas
EPC Rating D
Council Tax Band C
Tenure - freehold
Anti-Money Laundering Fee Statement
To comply with HMRC's regulations on Anti-Money Laundering (AML), Whittley Parish are legally required to conduct AML checks on every purchaser(s) once a sale is agreed. We use a government-approved electronic identity verification service from Landmark to ensure compliance, accuracy, and security. This is approved by the Government as part of the Digital Identity and Attributes Trust Framework (DIATF).
The cost of anti-money laundering (AML) checks is £50 + VAT (£60 inc VAT) per purchase, payable in advance after an offer has been accepted. This fee to Whittley Parish is mandatory to comply with HMRC regulations and must be paid before a memorandum of sale can be issued. Please note that the fee is non-refundable.
Brochures
Brochure 1Brochure 2Full Details- COUNCIL TAXA payment made to your local authority in order to pay for local services like schools, libraries, and refuse collection. The amount you pay depends on the value of the property.Read more about council Tax in our glossary page.
- Band: C
- PARKINGDetails of how and where vehicles can be parked, and any associated costs.Read more about parking in our glossary page.
- Driveway
- GARDENA property has access to an outdoor space, which could be private or shared.
- Private garden
- ACCESSIBILITYHow a property has been adapted to meet the needs of vulnerable or disabled individuals.Read more about accessibility in our glossary page.
- No wheelchair access
Waveney Road, Diss
Add an important place to see how long it'd take to get there from our property listings.
__mins driving to your place
Get an instant, personalised result:
- Show sellers you’re serious
- Secure viewings faster with agents
- No impact on your credit score
Your mortgage
Notes
Staying secure when looking for property
Ensure you're up to date with our latest advice on how to avoid fraud or scams when looking for property online.
Visit our security centre to find out moreDisclaimer - Property reference S1249376. The information displayed about this property comprises a property advertisement. Rightmove.co.uk makes no warranty as to the accuracy or completeness of the advertisement or any linked or associated information, and Rightmove has no control over the content. This property advertisement does not constitute property particulars. The information is provided and maintained by Whittley Parish, Diss. Please contact the selling agent or developer directly to obtain any information which may be available under the terms of The Energy Performance of Buildings (Certificates and Inspections) (England and Wales) Regulations 2007 or the Home Report if in relation to a residential property in Scotland.
*This is the average speed from the provider with the fastest broadband package available at this postcode. The average speed displayed is based on the download speeds of at least 50% of customers at peak time (8pm to 10pm). Fibre/cable services at the postcode are subject to availability and may differ between properties within a postcode. Speeds can be affected by a range of technical and environmental factors. The speed at the property may be lower than that listed above. You can check the estimated speed and confirm availability to a property prior to purchasing on the broadband provider's website. Providers may increase charges. The information is provided and maintained by Decision Technologies Limited. **This is indicative only and based on a 2-person household with multiple devices and simultaneous usage. Broadband performance is affected by multiple factors including number of occupants and devices, simultaneous usage, router range etc. For more information speak to your broadband provider.
Map data ©OpenStreetMap contributors.








