
3 bedroom barn conversion for sale
Collington, Bromyard, Herefordshire, HR7

- PROPERTY TYPE
Barn Conversion
- BEDROOMS
3
- BATHROOMS
3
- SIZE
1,458 sq ft
135 sq m
- TENUREDescribes how you own a property. There are different types of tenure - freehold, leasehold, and commonhold.Read more about tenure in our glossary page.
Freehold
Key features
- Detached barn conversion
- Three bedrooms including two on the ground floor
- Family bathroom + en-suite to the master + 2nd bedroom
- Open plan newly fitted kitchen/breakfast room
- Living room/dining room with feature log burner
- Private rear gardens with rural views
- Driveway parking for multiple vehicles
- Carport with workshop to the rear
- Rural position and views
- Characterful features
Description
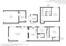
Located within the rural hamlet of Collington, is this well presented three bedroom detached barn conversion offering landscaped rear gardens with rural views, driveway parking for multiple vehicles and a carport with workshop.
Property Details
Chancellors are delighted to introduce this well presented three double bedroom detached barn conversion located within the rural Hamlet of Collington. Upon entering the property, you are welcomed into the open plan living room/dining room holding a wealth of character including exposed timbers and brick, vaulted ceilings and a feature log burner. There are bi-folding doors onto the private rear gardens. The property offers an open feel into the modern fitted kitchen with a breakfast bar. The ground floor benefits from underfloor heating.
The character continues throughout the property and into the master bedroom which is located on the ground floor and benefits from an ensuite shower room, built in wardrobes and a vaulted ceiling. The third bedroom is located on the ground floor and is current used as a home office/hobby room. The ground floor also includes a downstairs W/C, which has previously been used a walk in shower and can be returned to this. Taking the oak staircase to the first floor, you will find the guest bedroom with en-suite bathroom. The bedroom offers a seating area and built in storage.
Externally, the property offers an elevated rear garden which is mostly laid to lawn with herbaceous borders with colourful plants throughout. The rear garden offers a summer house and seating area, making an ideal entertaining space and somewhere to enjoy the rural views. The property offers two private driveways, one to the front offering space for multiple vehicles and additional parking area to the side next to the open fronted carport. To the rear of the carport is a secure workshop.
Brochures
More details from Chancellors- COUNCIL TAXA payment made to your local authority in order to pay for local services like schools, libraries, and refuse collection. The amount you pay depends on the value of the property.Read more about council Tax in our glossary page.
- Band: D
- PARKINGDetails of how and where vehicles can be parked, and any associated costs.Read more about parking in our glossary page.
- Garage,Off street
- GARDENA property has access to an outdoor space, which could be private or shared.
- Private garden
- ACCESSIBILITYHow a property has been adapted to meet the needs of vulnerable or disabled individuals.Read more about accessibility in our glossary page.
- Ask agent
Collington, Bromyard, Herefordshire, HR7
Add an important place to see how long it'd take to get there from our property listings.
__mins driving to your place
Get an instant, personalised result:
- Show sellers you’re serious
- Secure viewings faster with agents
- No impact on your credit score
Your mortgage
Notes
Staying secure when looking for property
Ensure you're up to date with our latest advice on how to avoid fraud or scams when looking for property online.
Visit our security centre to find out moreDisclaimer - Property reference 5743128. The information displayed about this property comprises a property advertisement. Rightmove.co.uk makes no warranty as to the accuracy or completeness of the advertisement or any linked or associated information, and Rightmove has no control over the content. This property advertisement does not constitute property particulars. The information is provided and maintained by Chancellors, Leominster. Please contact the selling agent or developer directly to obtain any information which may be available under the terms of The Energy Performance of Buildings (Certificates and Inspections) (England and Wales) Regulations 2007 or the Home Report if in relation to a residential property in Scotland.
*This is the average speed from the provider with the fastest broadband package available at this postcode. The average speed displayed is based on the download speeds of at least 50% of customers at peak time (8pm to 10pm). Fibre/cable services at the postcode are subject to availability and may differ between properties within a postcode. Speeds can be affected by a range of technical and environmental factors. The speed at the property may be lower than that listed above. You can check the estimated speed and confirm availability to a property prior to purchasing on the broadband provider's website. Providers may increase charges. The information is provided and maintained by Decision Technologies Limited. **This is indicative only and based on a 2-person household with multiple devices and simultaneous usage. Broadband performance is affected by multiple factors including number of occupants and devices, simultaneous usage, router range etc. For more information speak to your broadband provider.
Map data ©OpenStreetMap contributors.








