
South Drive, Cuffley, Potters Bar

- PROPERTY TYPE
Detached Bungalow
- BEDROOMS
2
- BATHROOMS
1
- SIZE
Ask agent
Key features
- Well-Maintained 2-Bedroom Detached Bungalow – Built in 2013 and designed for comfortable, independent living.
- Exclusive Retirement Housing Complex – Available to over 60s or registered disabled over 55s
- Spacious Accommodation – Two double bedrooms, a modern kitchen/dining room, and a mobility-friendly tiled shower room.
- Private Outdoor Space – Front garden and a south-facing rear garden, ideal for enjoying the sun.
- Onsite Residents’ Lounge & Conservatory – A welcoming space with regular social events and activities.
- Laundry Room & Guest Suite – Practical facilities including commercial washing machines and an overnight guest suite (pre-bookable for a reasonable charge).
- Beautiful Communal Gardens – Well-maintained lawns, flower beds, shrubs, and a patio seating area for outdoor relaxation.
- Onsite Warden for Added Reassurance – Providing support and security for residents.
- Prime Location – Within level walking distance to Cuffley Village High Street (0.3 miles) and Cuffley British Rail Station (0.5 miles).
- Chain-Free & Viewing Highly Recommended! – A fantastic opportunity for a peaceful yet convenient lifestyle.
Description
Built in 2013, this well-maintained two-bedroom detached bungalow is located in a small and friendly retirement housing complex, exclusively for over 60s (or registered disabled over 55) applicants, offering a peaceful yet convenient lifestyle.
The property features two double bedrooms, a mobility-friendly tiled shower room, and a modern kitchen/dining room. Outside, there is a front garden and a south-facing rear garden, perfect for enjoying the sun.
Residents benefit from onsite facilities, including a lounge and conservatory with regular events and activities, a laundry room, beautifully maintained communal gardens, and the reassurance of an onsite warden.
Ideally situated within level walking distance to Cuffley Village High Street (0.3 miles) and Cuffley British Rail Station (0.5 miles), this bungalow offers both comfort and convenience.
Viewing highly recommended!
Front - Laid lawn with shrub and flower borders. Communal patio area. Outside water tap. Bin storage. Block paved path to a covered front door.
Entrance - Composite double glazed entrance door to the:-
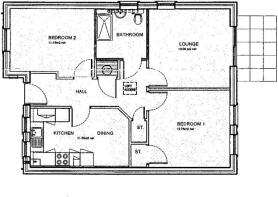
Hallway - Coving to ceiling. Double radiator. Two built in storage cupboards. Amtico flooring with pencil outline. Oak cottage style doors to the:-
Kitchen/Dining Room - 4.39m x 2.74m (14'5 x 9') - Double glazed windows to the front. Amtico flooring. Built in cupboard housing Ideal boiler. Radiator. Range of wall and base fitted units in shaker style cream. Wood effect worktops over incorporating stainless steel sink with mixer tap and drainer. Integrated washing machine. Built in oven. Four ring hob and extractor fan over. Integrated fridge and freezer. Coving to ceiling. Inset spotlights. Tiled splash back. Emergency Pull cord.
Living Room - 3.91m x 3.61m (12'10 x 11'10) - Double glazed sliding patio doors to the garden. Double glazed window to the side. Coving to ceiling. Radiator. Emergency Pull cord.
Bedroom 1 - 3.63m x 3.61m (11'11 x 11'10) - Two double glazed windows to the rear. Radiator. Coving to ceiling. Emergency Pull cord.
Bedroom 2 - 3.76m x 3.15m (12'4 x 10'4) - Double glazed window to the front. Radiator. Coving to ceiling. Emergency Pull cord.
Shower Room - Opaque double glazed window to the side. Chrome towel radiator. Inset spotlights to ceiling. Extractor fan. Suite comprising of low flush W.C. with concealed cistern. Semi countered wash hand basin with mixer tap. Walk in shower with mixer valve, hand attachment and rain-head. Extensively tiled walls and flooring. Shaver socket. Emergency Pull cord.
South Facing Garden - 9.14m (30') - Patio area. Mainly laid to lawn with mature shrub and flower borders. Side access. Outside light.
Fantastic Onsite Facilities & Community Activities - Residents can enjoy a comfortable lounge with a variety of seating and tables, a bright conservatory, and a communal kitchen. Additional amenities include a laundry room equipped with commercial washing machines and tumble dryers, as well as an overnight guest suite available for a reasonable charge (pre-booking required).
The beautiful communal gardens feature well-maintained lawns, vibrant flower beds, shrub and tree borders, plus a peaceful patio seating area for outdoor relaxation.
For those who wish to get involved, there is a lively community with monthly events and activities, including art clubs, coffee mornings, OAP-priced fish & chip evenings, organized walks, entertainment and exercise classes.
This wonderful setting offers both independent living and a welcoming community atmosphere.
Parking - There is residents only parking on a first come first served basis.
Onsite Warden - Onsite Scheme Manager on duty 9am -3 pm via Emergency pull Cord, (in each room ) which will go straight to Central Control for help or advice. this call system is operational 24 hours a day connecting you directly to the scheme manager or the central control facility operated by central control at First Garden Cities Homes.
Criteria - To be eligible to live at Greenfield residents must be with over 60 and or over 55 if registered disabled.
Shared Ownership - The vendor is selling 75%. Rent is paid on the remaining 25% at £339.45 per calendar month
Service Charge - £203.60 Per Calendar month.
Service Charge items, Communal electricity, Gas and water. Ground Maintenance, emergency call systems, window cleaning, communal cleaning, scheme managers & caretaker
Lease - 113 years remaining
Brochures
South Drive, Cuffley, Potters Bar- COUNCIL TAXA payment made to your local authority in order to pay for local services like schools, libraries, and refuse collection. The amount you pay depends on the value of the property.Read more about council Tax in our glossary page.
- Band: D
- PARKINGDetails of how and where vehicles can be parked, and any associated costs.Read more about parking in our glossary page.
- Yes
- GARDENA property has access to an outdoor space, which could be private or shared.
- Yes
- ACCESSIBILITYHow a property has been adapted to meet the needs of vulnerable or disabled individuals.Read more about accessibility in our glossary page.
- Ask agent
South Drive, Cuffley, Potters Bar
Add an important place to see how long it'd take to get there from our property listings.
__mins driving to your place
Get an instant, personalised result:
- Show sellers you’re serious
- Secure viewings faster with agents
- No impact on your credit score
Affordability
Notes
Staying secure when looking for property
Ensure you're up to date with our latest advice on how to avoid fraud or scams when looking for property online.
Visit our security centre to find out moreDisclaimer - Property reference 33769833. The information displayed about this property comprises a property advertisement. Rightmove.co.uk makes no warranty as to the accuracy or completeness of the advertisement or any linked or associated information, and Rightmove has no control over the content. This property advertisement does not constitute property particulars. The information is provided and maintained by JR Property Services, Cuffley. Please contact the selling agent or developer directly to obtain any information which may be available under the terms of The Energy Performance of Buildings (Certificates and Inspections) (England and Wales) Regulations 2007 or the Home Report if in relation to a residential property in Scotland.
*This is the average speed from the provider with the fastest broadband package available at this postcode. The average speed displayed is based on the download speeds of at least 50% of customers at peak time (8pm to 10pm). Fibre/cable services at the postcode are subject to availability and may differ between properties within a postcode. Speeds can be affected by a range of technical and environmental factors. The speed at the property may be lower than that listed above. You can check the estimated speed and confirm availability to a property prior to purchasing on the broadband provider's website. Providers may increase charges. The information is provided and maintained by Decision Technologies Limited. **This is indicative only and based on a 2-person household with multiple devices and simultaneous usage. Broadband performance is affected by multiple factors including number of occupants and devices, simultaneous usage, router range etc. For more information speak to your broadband provider.
Map data ©OpenStreetMap contributors.








