
Goldcrest, Ruette de La Tour, Cobo, Castel, GY5

- PROPERTY TYPE
Detached
- BEDROOMS
4
- BATHROOMS
1
- SIZE
2,799 sq ft
260 sq m
- TENUREDescribes how you own a property. There are different types of tenure - freehold, leasehold, and commonhold.Read more about tenure in our glossary page.
Freehold
Key features
- West coast sea views over Cobo Bay
- Situated on an elevated site
- Just a five minute walk from the beach
- Garage and parking
- Scope to renovate and extend
Description
Description
Perched in an enviable elevated position above Cobo Bay, this lovely four double bedroomed detached home offers panoramic sea views, with both front and rear garden for privacy. It also has the added benefit of a detached garage and parking to the rear.
The property is designed to maximize its spectacular coastal outlook, with spacious and light-filled living areas that seamlessly connect to the outdoor areas.
The property benefits from an additional living space that could be utilised as a downstairs bedroom or games room.
Location
'Goldcrest' is situated in a highly sought after location, just a few minutes away from the popular west coast beaches, kiosks, shops and supermarkets at Cobo Village and the Rockmount. The property is in close proximity to the nature trail which leads to Saumarez Park.
A regular bus route is available close by from Route de Cobo.
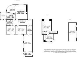
Square Footage: 2,799 sq ft
Directions
As you exit the car park of the Rockmount, head directly up the lane opposite, 'Ruette de la Tour'. As you near the crest of the hill, take the tarmac driveway on your right hand side signed "Terramar Court", then take the first right hand driveaway. Goldcrest is clearly signed.
Additional Info
Additional Information Mains electricity, water and drainage. Oil fired central heating. UPVC double glazing. We understand the property is of solid block construction. Tenure: Freehold. TRP:260.
Please note any total floor areas referred to within Savills Guernsey's details are provided by the States of Guernsey and are approximate only.
Brochures
Web DetailsParticulars- COUNCIL TAXA payment made to your local authority in order to pay for local services like schools, libraries, and refuse collection. The amount you pay depends on the value of the property.Read more about council Tax in our glossary page.
- Band: TBC
- PARKINGDetails of how and where vehicles can be parked, and any associated costs.Read more about parking in our glossary page.
- Yes
- GARDENA property has access to an outdoor space, which could be private or shared.
- Yes
- ACCESSIBILITYHow a property has been adapted to meet the needs of vulnerable or disabled individuals.Read more about accessibility in our glossary page.
- Ask agent
Energy performance certificate - ask agent
Goldcrest, Ruette de La Tour, Cobo, Castel, GY5
Add an important place to see how long it'd take to get there from our property listings.
__mins driving to your place
Get an instant, personalised result:
- Show sellers you’re serious
- Secure viewings faster with agents
- No impact on your credit score
Affordability
Notes
Staying secure when looking for property
Ensure you're up to date with our latest advice on how to avoid fraud or scams when looking for property online.
Visit our security centre to find out moreDisclaimer - Property reference GUE230101. The information displayed about this property comprises a property advertisement. Rightmove.co.uk makes no warranty as to the accuracy or completeness of the advertisement or any linked or associated information, and Rightmove has no control over the content. This property advertisement does not constitute property particulars. The information is provided and maintained by Savills, Guernsey. Please contact the selling agent or developer directly to obtain any information which may be available under the terms of The Energy Performance of Buildings (Certificates and Inspections) (England and Wales) Regulations 2007 or the Home Report if in relation to a residential property in Scotland.
*This is the average speed from the provider with the fastest broadband package available at this postcode. The average speed displayed is based on the download speeds of at least 50% of customers at peak time (8pm to 10pm). Fibre/cable services at the postcode are subject to availability and may differ between properties within a postcode. Speeds can be affected by a range of technical and environmental factors. The speed at the property may be lower than that listed above. You can check the estimated speed and confirm availability to a property prior to purchasing on the broadband provider's website. Providers may increase charges. The information is provided and maintained by Decision Technologies Limited. **This is indicative only and based on a 2-person household with multiple devices and simultaneous usage. Broadband performance is affected by multiple factors including number of occupants and devices, simultaneous usage, router range etc. For more information speak to your broadband provider.
Map data ©OpenStreetMap contributors.





