
Sugar Beet Avenue, Allscott, Telford, Shropshire, TF6

- PROPERTY TYPE
Semi-Detached
- BEDROOMS
3
- BATHROOMS
2
- SIZE
Ask agent
- TENUREDescribes how you own a property. There are different types of tenure - freehold, leasehold, and commonhold.Read more about tenure in our glossary page.
Freehold
Key features
- Well-Sized Three Bedroom House
- Sought after Location
- Generous Accommodation Throughout
- Family Bathroom and En-Suite
- Private and Enclosed Garden
- Off-Street Parking
Description
DB Roberts are proud to bring to market this good sized three bedroom semi-detached house, offering generous and modern accommodation within a sought after location. This property is a must see!
Stepping through the front door you will be greeted with a welcoming entrance hall complete with W/C. The hall leads to a modern fitted kitchen and bright lounge.
Heading to the first floor you will find three generous bedrooms, the largest of which benefiting from a stylish en-suite, as well as a fully equipped family bathroom.
Externally, the property occupies a great position within the estate, with off-road parking to the front and a private and enclosed garden to the rear.
Located in the popular Allscott area you will find great access to a range of transport links, schools and amenities.
This property features generous accommodation with a fantastic location and is situated on a great plot. Viewings are highly recommended on this fantastic property!
Don't miss out and contact us today for further details and to arrange your viewing!
Agent Notes:
Agents are made aware of a management charge.
Mobile coverage available from EE and THREE networks*
Ultrafast Broadband available*
All services are mains connected
Off Street Parking
*Results provided by Ofcom and correct at time of listing
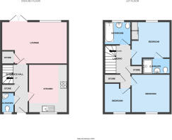
Entrance Hall
W/C
Kitchen
4.1m x 3.2m
Lounge
5.5m x 3.6m
First Floor
Bedroom One
3.2m x 3.1m
En-Suite
2.4m x 1.3m
Bedroom Two
3.2m x 2.9m
Bedroom Three
2.5m x 2.4m
Bathroom
2.2m x 1.8m
Brochures
Particulars- COUNCIL TAXA payment made to your local authority in order to pay for local services like schools, libraries, and refuse collection. The amount you pay depends on the value of the property.Read more about council Tax in our glossary page.
- Band: C
- PARKINGDetails of how and where vehicles can be parked, and any associated costs.Read more about parking in our glossary page.
- Off street
- GARDENA property has access to an outdoor space, which could be private or shared.
- Yes
- ACCESSIBILITYHow a property has been adapted to meet the needs of vulnerable or disabled individuals.Read more about accessibility in our glossary page.
- Ask agent
Sugar Beet Avenue, Allscott, Telford, Shropshire, TF6
Add an important place to see how long it'd take to get there from our property listings.
__mins driving to your place
Get an instant, personalised result:
- Show sellers you’re serious
- Secure viewings faster with agents
- No impact on your credit score



Affordability
Notes
Staying secure when looking for property
Ensure you're up to date with our latest advice on how to avoid fraud or scams when looking for property online.
Visit our security centre to find out moreDisclaimer - Property reference TTC241795. The information displayed about this property comprises a property advertisement. Rightmove.co.uk makes no warranty as to the accuracy or completeness of the advertisement or any linked or associated information, and Rightmove has no control over the content. This property advertisement does not constitute property particulars. The information is provided and maintained by D B Roberts & Partners, Telford. Please contact the selling agent or developer directly to obtain any information which may be available under the terms of The Energy Performance of Buildings (Certificates and Inspections) (England and Wales) Regulations 2007 or the Home Report if in relation to a residential property in Scotland.
*This is the average speed from the provider with the fastest broadband package available at this postcode. The average speed displayed is based on the download speeds of at least 50% of customers at peak time (8pm to 10pm). Fibre/cable services at the postcode are subject to availability and may differ between properties within a postcode. Speeds can be affected by a range of technical and environmental factors. The speed at the property may be lower than that listed above. You can check the estimated speed and confirm availability to a property prior to purchasing on the broadband provider's website. Providers may increase charges. The information is provided and maintained by Decision Technologies Limited. **This is indicative only and based on a 2-person household with multiple devices and simultaneous usage. Broadband performance is affected by multiple factors including number of occupants and devices, simultaneous usage, router range etc. For more information speak to your broadband provider.
Map data ©OpenStreetMap contributors.





