
Pandora Close, Locks Heath

- PROPERTY TYPE
End of Terrace
- BEDROOMS
3
- BATHROOMS
2
- SIZE
Ask agent
- TENUREDescribes how you own a property. There are different types of tenure - freehold, leasehold, and commonhold.Read more about tenure in our glossary page.
Freehold
Key features
- Spacious light airy accommodation
- Adaptable 3/4 bedroom accommodation
- Modern fitted Kitchen/breakfast room
- Sitting room with double Juliet balconies overlooking local pond
- Tandem parking for 2 cars including carport
- EPC Rating B (85)
Description
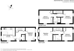
Set off the main thoroughfare along a footpath this property enjoys a lovely outlook with duck pond and open green area to the front. Stepping into the light airy hallway, there is porcelain tiled flooring throughout the ground floor and stairs lead to the first floor. There is a good size cloakroom with W.C. and additional storage. The kitchen/breakfast room is a fantastic sociable family space with an excellent range of matching base and eye level units incorporating a peninsular breakfast bar with 4 ring gas hob with extractor hood above and built in double oven and grill and integrated fridge/freezer, dishwasher and washing machine. To the rear is an additional reception room (potential bedroom 4) with door opening onto the rear garden.
On the first floor is the formal sitting room, a nice retreat for winter evenings or on a warm evening you can bring the outdoors in by opening up the twin double doors of the Juliet balconies. This really gives the feeling of space and openness as you look out over the duck pond. Bedroom three and the modern family bathroom are also on this level. Up to the second floor are two further double bedrooms, the beautifully presented master bedroom with double aspect to the front and side has built in mirror fronted wardrobes and ensuite facilities.
Outside the low maintenance rear garden is laid to lawn with a decked patio seating area. A paved path to the pedestrian gate leads out to the rear parking area with tandem parking for two cars, one of which is under the covered carport.
SUMMARY OF FEATURES:
Spacious light airy accommodation; Adaptable 3/4 bedroom accommodation; Modern fitted Kitchen/breakfast room; 2 bathrooms; Sitting room with double Juliet balconies overlooking local pond; Tandem parking for 2 cars including carport; Boiler replaced 2024
GENERAL INFORMATION:
TENURE: Freehold; SERVICES: All Mains Services; LOCAL AUTHORITY: Fareham Borough Council; TAX BAND: B
DISTANCES:
Locks Heath Centre with Waitrose – 0.6 miles; Holly Hill Woodland Park – 0.8 miles; River Hamble at Warsash – 1.3 miles; Swanwick Station – 1.7 miles; Whiteley Shopping Village – 4 miles
AGENTS NOTE:
Estates Charge approx. £320 pa
Brochures
Brochure- COUNCIL TAXA payment made to your local authority in order to pay for local services like schools, libraries, and refuse collection. The amount you pay depends on the value of the property.Read more about council Tax in our glossary page.
- Ask agent
- PARKINGDetails of how and where vehicles can be parked, and any associated costs.Read more about parking in our glossary page.
- Yes
- GARDENA property has access to an outdoor space, which could be private or shared.
- Yes
- ACCESSIBILITYHow a property has been adapted to meet the needs of vulnerable or disabled individuals.Read more about accessibility in our glossary page.
- Ask agent
Pandora Close, Locks Heath
Add an important place to see how long it'd take to get there from our property listings.
__mins driving to your place
Get an instant, personalised result:
- Show sellers you’re serious
- Secure viewings faster with agents
- No impact on your credit score
Your mortgage
Notes
Staying secure when looking for property
Ensure you're up to date with our latest advice on how to avoid fraud or scams when looking for property online.
Visit our security centre to find out moreDisclaimer - Property reference 33789804. The information displayed about this property comprises a property advertisement. Rightmove.co.uk makes no warranty as to the accuracy or completeness of the advertisement or any linked or associated information, and Rightmove has no control over the content. This property advertisement does not constitute property particulars. The information is provided and maintained by Taylor Hill & Bond, Park Gate. Please contact the selling agent or developer directly to obtain any information which may be available under the terms of The Energy Performance of Buildings (Certificates and Inspections) (England and Wales) Regulations 2007 or the Home Report if in relation to a residential property in Scotland.
*This is the average speed from the provider with the fastest broadband package available at this postcode. The average speed displayed is based on the download speeds of at least 50% of customers at peak time (8pm to 10pm). Fibre/cable services at the postcode are subject to availability and may differ between properties within a postcode. Speeds can be affected by a range of technical and environmental factors. The speed at the property may be lower than that listed above. You can check the estimated speed and confirm availability to a property prior to purchasing on the broadband provider's website. Providers may increase charges. The information is provided and maintained by Decision Technologies Limited. **This is indicative only and based on a 2-person household with multiple devices and simultaneous usage. Broadband performance is affected by multiple factors including number of occupants and devices, simultaneous usage, router range etc. For more information speak to your broadband provider.
Map data ©OpenStreetMap contributors.





