Sowters Lane, Burton on the Wolds, LE12
- PROPERTY TYPE
Land
- SIZE
3,380 sq ft
314 sq m
Key features
- Unique Opportunity to Secure this Building Plot
- Planning For Five Bedroom Detached Home
- Over 3,300 sq ft
- Five Bedrooms with Four En Suites and Family Bathroom
- Semi-Rural Leafy Setting
- 0.22 Acre Plot
- Open Plan Living/Kitchen/Diner
- Popular Village Location
Description
A rare and exciting opportunity to acquire a single building plot with full planning permission for a stunning five-bedroom, two-storey residence, set within the tranquil, semi-rural village of Burton on the Wolds. Spanning 0.22 acres, this generously sized plot benefits from planning approval granted by Charnwood Borough Council on 10th March 2025 (ref P/23/2172/2) for the construction of a detached, architecturally designed home.
Description
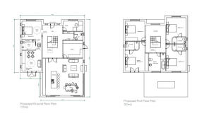
This exceptional property will offer 3,380 sqft of thoughtfully designed living space, with an expansive layout. The ground floor features an entrance hall, a vast kitchen/living/dining area, a utility room, W.C., and a study. Additionally, a self-contained living quarter is included, complete with a bedroom, en suite bathroom, and a kitchenette – perfect for multi-generational living or as a guest suite.
On the first floor, a galleried landing leads to four well-proportioned bedrooms, three of which benefit from en suite bathrooms, alongside a family bathroom. Outside, the property is set back from Sowters Lane, with established hedgerows, a driveway and a ample parking. The wraparound gardens feature mature trees that create an idyllic, leafy sanctuary, providing a peaceful and private setting for this exceptional home.
This is a truly rare opportunity to build a bespoke family home in a charming village location. Early viewing is strongly recommended to appreciate the full potential of this remarkable plot.
Location
The village of Burton on the Wolds offers a popular public house, petrol station with convenience store, excellent primary school and nursery. The village is particularly well placed for further extensive local shopping and extensive schooling at Loughborough. It is also ideally placed for commuting to Leicester, Melton Mowbray and Nottingham, the A46 providing access to the north and also the M1 via the north-west Leicester bypass
Services
The drainage, water, gas and electricity are available. Purchasers will be responsible for making their own enquiries on all mains services.
Tenure
The land will be sold Freehold with vacant possession available upon completion.
Extra Information
To check Internet and Mobile Availability please use the following link: checker.ofcom.org.uk/en-gb/broadband-coverage To check Flood Risk please use the following link: check-long-term-flood-risk.service.gov.uk/postcode
Sowters Lane, Burton on the Wolds, LE12
NEAREST STATIONS
Distances are straight line measurements from the centre of the postcode- Barrow upon Soar Station2.7 miles
- Loughborough Station3.1 miles
- Sileby Station3.8 miles
Notes
Disclaimer - Property reference RX569121. The information displayed about this property comprises a property advertisement. Rightmove.co.uk makes no warranty as to the accuracy or completeness of the advertisement or any linked or associated information, and Rightmove has no control over the content. This property advertisement does not constitute property particulars. The information is provided and maintained by Fine & Country, Woodhouse Eaves. Please contact the selling agent or developer directly to obtain any information which may be available under the terms of The Energy Performance of Buildings (Certificates and Inspections) (England and Wales) Regulations 2007 or the Home Report if in relation to a residential property in Scotland.
Map data ©OpenStreetMap contributors.





