
Newtown Road, Haddenham
- PROPERTY TYPE
Land
- SIZE
Ask agent
Key features
- Development Site
- Planning Consent for 2 Bedroomed Semi Detached Houses
- Foundations Part Completed
- Pre-Commencement Conditions Discharged
- Highly Regarded Village
- Freehold
Description
Planning Consent - Planning consent was granted in March 2008 and Condition 2 (Materials) stated within that permission was discharged in April 2011.
The vendor informs us that prior to the planning consent expiring he commenced work on site by way of partly completing the foundations which were then inspected and passed by Building Control. This has been confirmed by East Cambs District Council.
Once constructed the houses will have an entrance hall with cloakroom, open plan ground floor accommodation consisting of kitchen and living area and 2 first floor bedrooms and a bathroom. They will have gardens to the rear and parking to the front.
In addition to the information above, the vendor has confirmed he has progressed the following points:
1. Design work and structural calculations completed.
2. Houses have been given street numbers.
3. Deed of Easement is in place to connect into the mains drain.
4. Anglian Water agreement to take the drain.
5. NHBC registered project with inspections up to date.
Whilst this information is given in good faith a purchaser should seek confirmation of the above points from their legal advisor.
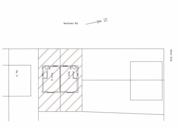
The Site - The site is located close to the entrance of Newtown Road next to number 9.
Services - Mains water, electricity and drainage are available within Newtown Road.
Viewing - Strictly by appointment with the Agents
Agent Notes - Broadband - according to Ofcom.org.uk, Standard (16Mbps), Superfast (50Mbps) and Ultrafast (1800Mbps) broadband is available within Newtown Road.
Mobile Signal/Coverage – according to Ofcom.org.uk, limited coverage can be received for EE, Three, Vodafone and O2.
Brochures
Newtown Road, HaddenhamNewtown Road, Haddenham
NEAREST STATIONS
Distances are straight line measurements from the centre of the postcode- Ely Station5.8 miles
Notes
Disclaimer - Property reference 33814193. The information displayed about this property comprises a property advertisement. Rightmove.co.uk makes no warranty as to the accuracy or completeness of the advertisement or any linked or associated information, and Rightmove has no control over the content. This property advertisement does not constitute property particulars. The information is provided and maintained by Cheffins Residential, Ely. Please contact the selling agent or developer directly to obtain any information which may be available under the terms of The Energy Performance of Buildings (Certificates and Inspections) (England and Wales) Regulations 2007 or the Home Report if in relation to a residential property in Scotland.
Map data ©OpenStreetMap contributors.








