
Broadbottom Road, Mottram

- PROPERTY TYPE
Terraced
- BEDROOMS
2
- BATHROOMS
2
- SIZE
Ask agent
- TENUREDescribes how you own a property. There are different types of tenure - freehold, leasehold, and commonhold.Read more about tenure in our glossary page.
Freehold
Key features
- Stone Terrace Property
- Two Bedrooms
- Popular Village Location
- Electrical work - 2021
- Major roof works - 2021
- Secure Rear Garden
- New Damp Course
- Freehold
- On-Street Parking
- Council Tax A
Description
Country Holmes offers this well-presented two-bedroom terraced cottage in the ever-popular area of Mottram. Comprising an entrance porch, lounge, Dining Kitchen, lean-to with downstairs WC, and to the first floor are two Bedrooms and a Bathroom. Externally the rear is a quaint low maintenance cottage garden with ornate gravel seating areas and a garden shed. The property recently had a full downstairs damp course and metre up replaster with a 10 year guarantee, along with a major roof overhaul and electrical works.
Entrance Porch
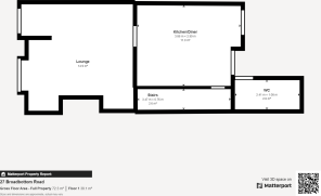
Lounge - 3.94m x 3.91m (12'11" x 12'10")
Kitchen Diner - 3.48m x 3m (11'5" x 9'10")
Glass lean to
Downstairs WC
Stairs and landing
Bedroom One - 3.91m x 3.91m (12'10" x 12'10")
Bedroom Two - 3.48m x 1.57m (11'5" x 5'2")
Bathroom - 2.36m x 1.32m (7'9" x 4'4")
Rear Garden
Important Information
Brochures
Brochure 1- COUNCIL TAXA payment made to your local authority in order to pay for local services like schools, libraries, and refuse collection. The amount you pay depends on the value of the property.Read more about council Tax in our glossary page.
- Band: A
- PARKINGDetails of how and where vehicles can be parked, and any associated costs.Read more about parking in our glossary page.
- On street
- GARDENA property has access to an outdoor space, which could be private or shared.
- Private garden
- ACCESSIBILITYHow a property has been adapted to meet the needs of vulnerable or disabled individuals.Read more about accessibility in our glossary page.
- Ask agent
Broadbottom Road, Mottram
Add an important place to see how long it'd take to get there from our property listings.
__mins driving to your place
Get an instant, personalised result:
- Show sellers you’re serious
- Secure viewings faster with agents
- No impact on your credit score
Affordability
Notes
Staying secure when looking for property
Ensure you're up to date with our latest advice on how to avoid fraud or scams when looking for property online.
Visit our security centre to find out moreDisclaimer - Property reference S1278300. The information displayed about this property comprises a property advertisement. Rightmove.co.uk makes no warranty as to the accuracy or completeness of the advertisement or any linked or associated information, and Rightmove has no control over the content. This property advertisement does not constitute property particulars. The information is provided and maintained by Country Holmes, Glossop. Please contact the selling agent or developer directly to obtain any information which may be available under the terms of The Energy Performance of Buildings (Certificates and Inspections) (England and Wales) Regulations 2007 or the Home Report if in relation to a residential property in Scotland.
*This is the average speed from the provider with the fastest broadband package available at this postcode. The average speed displayed is based on the download speeds of at least 50% of customers at peak time (8pm to 10pm). Fibre/cable services at the postcode are subject to availability and may differ between properties within a postcode. Speeds can be affected by a range of technical and environmental factors. The speed at the property may be lower than that listed above. You can check the estimated speed and confirm availability to a property prior to purchasing on the broadband provider's website. Providers may increase charges. The information is provided and maintained by Decision Technologies Limited. **This is indicative only and based on a 2-person household with multiple devices and simultaneous usage. Broadband performance is affected by multiple factors including number of occupants and devices, simultaneous usage, router range etc. For more information speak to your broadband provider.
Map data ©OpenStreetMap contributors.






