
Plot for sale
Cawthorne Crescent, Filey
- PROPERTY TYPE
Plot
- BEDROOMS
2
- BATHROOMS
1
- SIZE
Ask agent
Key features
- BUILDING PLOT
- APPROXIMATELY 730 sqm / 0.17 acres
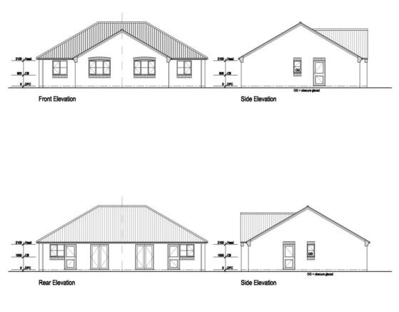
- PLANNING PERMISSION PASSED HISTORICALLY FOR TWO, TWO BEDROOM SEMI DETACHED BUNGLALOWS
Description
Location - The plot is situated on a greenfield site that is approximately 730 sqm / 0.17 acres and set within an already established residential housing area of properties of similar character and style. It is approximately 0.5 miles west of Filey town centre and 0.9 miles from Filey Beach.
Tenure - The site is being sold with the Freehold title.
Bungalow Dimensions -
Lounge - 3.2 x 5.2 (10'5" x 17'0") -
Kitchen - 2.7 x 3 (8'10" x 9'10") -
Bathroom / Wc - 1.7 x 2.15 (5'6" x 7'0") -
Bedroom One - 3.2 x 4 (10'5" x 13'1") -
Bedroom Two - 2.7 x 2.3 (8'10" x 7'6" ) -
Brochures
Cawthorne Crescent, FileyCawthorne Crescent, Filey
NEAREST STATIONS
Distances are straight line measurements from the centre of the postcode- Filey Station0.4 miles
- Hunmanby Station2.7 miles
- Seamer Station5.0 miles
Notes
Disclaimer - Property reference 33145642. The information displayed about this property comprises a property advertisement. Rightmove.co.uk makes no warranty as to the accuracy or completeness of the advertisement or any linked or associated information, and Rightmove has no control over the content. This property advertisement does not constitute property particulars. The information is provided and maintained by Colin Ellis Estate Agents, Scarborough. Please contact the selling agent or developer directly to obtain any information which may be available under the terms of The Energy Performance of Buildings (Certificates and Inspections) (England and Wales) Regulations 2007 or the Home Report if in relation to a residential property in Scotland.
Map data ©OpenStreetMap contributors.






