Warehouse to lease
Clifton Road, Brighouse, West Yorkshire, HD6
- SIZE AVAILABLE
2,605-17,761 sq ft
242-1,650 sq m
- SECTOR
Warehouse to lease
- USE CLASSUse class orders: B2 General Industrial and B8 Storage and Distribution
B2, B8
Lease details
- Lease available date:
- Ask agent
Key features
- 5 RECENTLY REFURBISHED UNITS
- LESS THAN 2 MILES FROM J25 M62
- SUITABLE FOR A VARIETY OF OCCUPIERS STP
Description
The units are located on Clifton Road which is a heavily trafficked access road into Brighouse from Junction 25 of the M62 approximately 2 miles to the South East.
The site enjoys good prominence to Clifton Road and is surrounded by a hub of commercial and industrial users to include showrooms, supermarkets, trade warehouse and garages. The units would be suitable for a variety of uses STP.
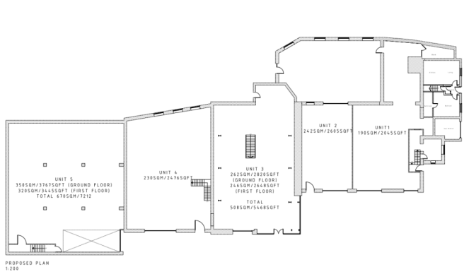
Description SQM SQ.FT
Unit 1 (LET) GF 190 GF 2,045
Unit 2 GF 242 GF 2,605
Unit 3 GF 262 GF 2,820
FF 246 FF 2,648
Unit 4 GF 230 GF 2,476
Unit 5 GF 350 GF 3,767
FF 320 FF 3,445
PLANNING
We recommend interested parties make their own enquiries with the local authority - /
BUSINESS RATES - 2023 LIST
TBC
EPC
TBC
TERMS
The units are available on FRI terms for a number of yearS to be negotiated, rentals available on application.
Brochures
Clifton Road, Brighouse, West Yorkshire, HD6
NEAREST STATIONS
Distances are straight line measurements from the centre of the postcode- Brighouse Station0.4 miles
- Deighton Station2.5 miles
- Low Moor Station3.4 miles
Notes
Disclaimer - Property reference BRIGHOUSE. The information displayed about this property comprises a property advertisement. Rightmove.co.uk makes no warranty as to the accuracy or completeness of the advertisement or any linked or associated information, and Rightmove has no control over the content. This property advertisement does not constitute property particulars. The information is provided and maintained by Malcolm Stuart Property Consultants LLP, Tadcaster. Please contact the selling agent or developer directly to obtain any information which may be available under the terms of The Energy Performance of Buildings (Certificates and Inspections) (England and Wales) Regulations 2007 or the Home Report if in relation to a residential property in Scotland.
Map data ©OpenStreetMap contributors.





