
5 bedroom house for sale
Lender Lane, Mullion, Helston, Cornwall, TR12

- PROPERTY TYPE
House
- BEDROOMS
5
- SIZE
Ask agent
- TENUREDescribes how you own a property. There are different types of tenure - freehold, leasehold, and commonhold.Read more about tenure in our glossary page.
Freehold
Description
An established and profitable business with a 5-bedroom farmhouse, 5 holiday letting cottages and two let commercial premises.
All ideally situated to explore the Lizard Peninsula and the South Cornwall coastline.
In all, extending to 0.4 acres.
Offered for sale by private treaty as a whole.
Location
Colroger House & Cottages is located in the centre of Mullion, a picturesque Cornish village on the Lizard Peninsula in South Cornwall. Just 1½ miles away lies Mullion Cove, home to a National Trust harbour that’s popular for boat trips, paddleboarding, and kayaking due to its rich wildlife, including seals and seabirds. Nearby, are several popular beaches such as the National Trust Poldhu Cove with beach café, Polurrian, Kynance Cove with National Trust car park, Gunwalloe Church Cove beach and Loe Bar.
Other popular destinations on the Lizard include Lizard Point, the most southerly point on the south coast of England, the fishing village of Cadgwith, Kennack Sands and Coverack.
The village of Mullion offers a range of amenities and facilities within walking distance of the property, including pubs, restaurants, takeaways, churches, local shops, a Co-op supermarket, a chemist and a health centre. Families are well-served with both Mullion Community Primary School and Mullion School, a nearby secondary school. Among the local pubs, The Old Inn and Mounts Bay Pub are known for good food within the area. Mullion Golf Course, set on the headland overlooking the sea is just 1¾ miles away.
Additional amenities can be found in the town of Helston, just 7 miles away, including a selection of supermarkets, shops, pubs, a theatre, cinema, and a sports complex with an indoor swimming pool. For further amenities and facilities, the county town of Truro lies 24 miles to the north.
The surrounding area offers a range of tourist attractions, including the picturesque harbour town of Porthleven, just 9 miles away, known for its harbour and restaurants. Other popular nearby destinations also include the Cornish Seal Sanctuary in Gweek, the Trebah Gardens, and the Helford River. Further afield, Falmouth is home to Pendennis Castle (English Heritage) and the National Maritime Museum Cornwall. Guests often visit the fishing village of Mousehole, the Minack Theatre, St Ives, and Carbis Bay (22½ miles away), as well as the dramatic coastline at Land’s End, located 30 miles away.
The Business
Colroger Holiday Cottages is an established and profitable business located in the centre of the village of Mullion, making it extremely popular with guests as they can walk out to the amenities within the village. The Vendor’s have been in ownership of the property since 1969 and have built up high levels of repeat and recommendation business over the last 56 years and the sale is due to retirement.
The business is currently promoted through its own website: operates independently without the use of booking agents. Two of the cottages have recently been listed on Airbnb and social media is used on a limited basis including Facebook and Instagram.
The gross turnover for the business year ending 2023 was £62,479 with a net profit of £45,512. The gross turnover year ending 2022 was £66,979 with a net profit of £38,351.
In addition to the holiday letting business, there are two commercial properties that are currently let out including a café with a passing rent of £6,480 per annum and a dog grooming parlour with a passing rent of £5,760 per annum.
There is potential for further development of the business, particularly by extending the holiday letting season beyond the current limited operating months of March to October. Additionally, to increase the turnover of the business, the appointment of a holiday letting agent could enhance bookings.
Adjoining Colroger House is an externally accessed store, which offers potential for conversion in conjunction with the sun room in the main house, into an annexe or an additional holiday let, subject to gaining the necessary planning consents. Trading information can be provided to bona fide purchasers
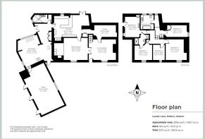
Colroger House
A period 5-bedroom farmhouse that has been refurbished to a high standard with a high degree of privacy from the holiday cottage complex, with a private garden to front and gated access out to the village.
The accommodation on the ground floor comprises a sitting room with Inglenook stone fireplace with parquet flooring, heavy beam over ceiling and windows overlooking the gardens. Doors leading through into the dining room with stone fireplace, slate hearth housing a wood burning stove, window overlooking the front garden and door into the gardens leading out onto a patio area. Stairs to first floor accommodation.
Oak style kitchen with granite work surfaces and central island. Ceramic tiled floor, spotlights, stable door into the rear hall and French doors leading out onto the courtyard. The study is accessed from the kitchen and has a door leading into the dining room.
There is a rear hall which has a door leading out onto the courtyard. From the rear hall, there is a door that leads out onto the gardens. The rear hall gives access into the kitchen and into a wet room. Steps lead up into a sun room which has a picture window overlooking the courtyard, a wood burning stove and skylights.
Further steps and door lead into a store which is currently used as a workshop. Potential to convert the sun room and the store into an annexe for the main house for a dependent relative or into an additional letting holiday cottage, subject to gaining the relevant planning consents.
At first floor, the landing provides access to the rooms. Bedroom 1 with window to front overlooking the gardens and an en-suite shower room which can also be accessed via bedroom 3.
Bedroom 2 with window to front overlooking the gardens.
Bedroom 3 with window to side overlooking the courtyard and door into an en-suite shower room shared with Bedroom 1. Door that leads out onto a balcony overlooking the courtyard and spiral metal staircase
leading down onto the courtyard.
Bedroom 4 with window to side.
Bedroom 5 with window to front overlooking the gardens.
In addition, a family bathroom.
Outside to the front of the property is an enclosed garden laid mainly to lawn with a patio area next to the house which has a high degree of privacy from the cottages and gated access out onto the road and the village. The garden is laid mainly to lawn with flower and shrub borders.
The Cottages
The five holiday cottages, each named after local beaches, are well-equipped with fitted kitchens that include an oven and hob, fridge/freezer, microwave, and washing machine. Poldhu and Polurrian also have a tumble dryer and share a communal hallway that connects the two, making them ideal for larger family groups when rented together.
Each cottage is furnished with a TV, DVD player, and Wi-Fi access. They are electrically heated and feature electric woodburning style effect fires. Each cottage has an allocated parking space for one vehicle, with additional free parking available in the village car park, just a short walk away.
Polpeor
Single storey cottage with open plan sitting/dining room and kitchen area. Bedroom and bathroom. (Sleeps 2).
Poldhu
Single storey cottage comprising a sitting room, dining room and kitchen area. Two bedrooms and an enclosed patio area to the rear. (Sleeps 4)
Polurrian
Single storey cottage comprising a sitting room, dining room and kitchen area. Two bedrooms and an enclosed patio area to the rear. (Sleeps 4)
Kennack
Two storey cottage providing on the ground floor, an open plan sitting/dining room and kitchen area and a bathroom. At first floor, a landing and two bedrooms. (Sleeps 4)
Kynance
Two storey cottage providing on the ground floor, an open plan sitting/dining room and kitchen area and a bathroom. At first floor, a landing and two bedrooms. (Sleeps 4)
The Commercial Properties
At the entrance to the property is a café which is let out on a business tenancy dated October 2024 for a term of 6-years, with a 3-year rent review and a passing rent of £6,480 per annum. Also located at the entrance of the property is a dog grooming parlour which is let on a business tenancy for a term of 2-years dated April 2025 with a passing rent of £5,760 per annum.
Outside
The courtyard, formerly a farmyard, is laid to concrete and adorned with potted plants, hanging baskets, and seasonal flowers. The owners take great pride in gardening this space, particularly during the summer months, for the guests to enjoy.
The courtyard has five allocated spaces for the holiday cottages and additional space for the main farmhouse to park 2/3 vehicles. On the opposite side of the courtyard is an open fronted car park which has space for three further vehicles and is used as a garden store for the property. Adjoining Colroger House is an externally accessed store which has the potential to be converted in conjunction with the sun room in the main house into annexe or an additional holiday letting cottage, subject to gaining the relevant planning consents.
Method of Sale
The property is offered by sale by private treaty inclusive of trade inventory to include furnishings, equipment, fixtures and fittings in relation to the business, excluding any personal items.
Tenure & Possession
The freehold interest is offered for sale with vacant possession available on completion, subject to the current leases relating to the Café and dog grooming parlour.
EPC Ratings
Colroger House E
Polurrian E
Poldhu E
Polpeor E
Kennack E
Kynance E
Council Tax
Band E
Services
The property is serviced by mains water, electricity and drainage. Colroger House has oil-fired central heating.
Rateable Value
According to the Valuation Office website, the premises has a rateable value of £9,450. Interested parties are advised to make their own enquiries.
Local Authority
Cornwall Council
Viewings
Strictly by appointment with agents Carter Jonas, .
What3Words
/// awyer.billiard.cheeses
Brochures
Particulars- COUNCIL TAXA payment made to your local authority in order to pay for local services like schools, libraries, and refuse collection. The amount you pay depends on the value of the property.Read more about council Tax in our glossary page.
- Band: TBC
- PARKINGDetails of how and where vehicles can be parked, and any associated costs.Read more about parking in our glossary page.
- Yes
- GARDENA property has access to an outdoor space, which could be private or shared.
- Yes
- ACCESSIBILITYHow a property has been adapted to meet the needs of vulnerable or disabled individuals.Read more about accessibility in our glossary page.
- Ask agent
Energy performance certificate - ask agent
Lender Lane, Mullion, Helston, Cornwall, TR12
Add an important place to see how long it'd take to get there from our property listings.
__mins driving to your place
Get an instant, personalised result:
- Show sellers you’re serious
- Secure viewings faster with agents
- No impact on your credit score
Your mortgage
Notes
Staying secure when looking for property
Ensure you're up to date with our latest advice on how to avoid fraud or scams when looking for property online.
Visit our security centre to find out moreDisclaimer - Property reference TAU250013. The information displayed about this property comprises a property advertisement. Rightmove.co.uk makes no warranty as to the accuracy or completeness of the advertisement or any linked or associated information, and Rightmove has no control over the content. This property advertisement does not constitute property particulars. The information is provided and maintained by Carter Jonas Rural, Taunton. Please contact the selling agent or developer directly to obtain any information which may be available under the terms of The Energy Performance of Buildings (Certificates and Inspections) (England and Wales) Regulations 2007 or the Home Report if in relation to a residential property in Scotland.
*This is the average speed from the provider with the fastest broadband package available at this postcode. The average speed displayed is based on the download speeds of at least 50% of customers at peak time (8pm to 10pm). Fibre/cable services at the postcode are subject to availability and may differ between properties within a postcode. Speeds can be affected by a range of technical and environmental factors. The speed at the property may be lower than that listed above. You can check the estimated speed and confirm availability to a property prior to purchasing on the broadband provider's website. Providers may increase charges. The information is provided and maintained by Decision Technologies Limited. **This is indicative only and based on a 2-person household with multiple devices and simultaneous usage. Broadband performance is affected by multiple factors including number of occupants and devices, simultaneous usage, router range etc. For more information speak to your broadband provider.
Map data ©OpenStreetMap contributors.





