3 bedroom semi-detached house for sale
Plot 3, Jubilee Way, Holton

- PROPERTY TYPE
Semi-Detached
- BEDROOMS
3
- BATHROOMS
1
- SIZE
957 sq ft
89 sq m
- TENUREDescribes how you own a property. There are different types of tenure - freehold, leasehold, and commonhold.Read more about tenure in our glossary page.
Freehold
Key features
- Exclusive development of 2 bed bungalows and 3 and 4 bed houses
- Charming village location close to Halesworth Town Centre
- off road parking & garages
- Open plan living
- Electric Car Charging Points
Description
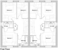
The Pine - 3 BEDROOM SEMI-DETACHED HOUSE
The Pine is a generously sized 3-bed semi-detached home, ideal for family living or those seeking extra space and flexibility. The property boasts two spacious double bedrooms, providing plenty of room for relaxation and storage, along with a comfortable single bedroom, perfect for a child, guest room, or home office. The heart of the home is its open-plan kitchen/diner, a modern and sociable space that’s perfect for family meals, entertaining guests, or enjoying casual dining. The living room is a bright, welcoming space, featuring bi-fold doors that open seamlessly into the garden, creating an ideal flow for indoor-outdoor living.
This home also benefits from two well-appointed bath and shower rooms, ensuring there’s plenty of space for everyone’s needs, as well as a convenient W/C on the ground floor. Additionally, there is ample storage throughout, including built-in cupboards and generous living areas. The Pine combines comfort, style, and practicality, offering a well-designed layout that’s perfect for a growing family or those who appreciate versatile living spaces. With modern features and a fantastic location, this home is sure to suit a wide range of lifestyles.
Say Hello To Holton - Nestled in the heart of Suffolk, Holton is a charming village that blends rural tranquillity with rich history and modern convenience. Whether you’re visiting for a day, considering a move, or simply curious about this picturesque corner of East Anglia, we invite you to explore all that Holton has to offer.
A Village Steeped in History
Holton is steeped in history that dates back centuries. With its winding lanes, traditional thatched cottages, and iconic village church, the past is woven seamlessly into the fabric of everyday life. A quiet walk through the village allows you to step back in time, while also enjoying the beautiful countryside views that surround the area.
Nature on Your Doorstep
For nature lovers, Holton is a haven. The village is surrounded by lush woodlands, gentle rolling hills, and open fields, making it perfect for walking, cycling, or simply soaking up the serenity. Just a short stroll from the village centre, you’ll find yourself immersed in the peace of the Suffolk countryside, with the opportunity to spot a variety of local wildlife and seasonal blooms.
A Community Like No Other
Holton is a place where neighbours become friends and everyone feels at home. The village is known for its strong sense of community, with regular events and activities for all ages. From local markets and village fairs to nature walks and seasonal gatherings, there’s always something to connect you with the heart of the village.
Modern Amenities, Historic Charm
While Holton offers the charm of a traditional village, it also boasts a selection of modern amenities to make life convenient and comfortable. Local pubs and shops provide all your everyday needs, while larger towns like Halesworth and Southwold are just a short drive away, offering even more shopping, dining, and entertainment options.
Explore the Surrounding Area
Holton is perfectly positioned for exploring the beauty of Suffolk. The nearby coastal town of Southwold, with its iconic pier and sandy beaches, is just a short drive away. Discover the breathtaking landscapes of the Suffolk Coast and Heaths Area of Outstanding Natural Beauty or visit one of the many historic sites and charming towns nearby, including the medieval town of Framlingham and the bustling market town of Halesworth.
Your Next Adventure Awaits
Whether you’re drawn to Holton for its stunning landscapes, its welcoming community, or its perfect balance of history and modern living, we’re confident you’ll fall in love with everything this delightful village has to offer.
Specification - Kitchen-
Electrolux Hob EHF6241FOK, Oven EOF6P46X, Hood LFC316X
Integrated Electrolux Fridge/freezer LNT6NE18S1, Integrated Dishwasher KEAF7200L
Symphony Kitchen Range
Electrical-
Outside lighting to front and rear
TV and data points to living room, master bedrooms
Mains-wired smoke detector to all homes
Mains-wired carbon monoxide detectors to all homes
Spotlights to the kitchen/dining area
Spotlights in toilets, bathrooms and
en-suites
Installation of electric vehicle
charging point to all properties
Loft light
Plumbing-
Air source heat pump, Vaillant aroTHERM plus
White Armitage Shanks sanitaryware throughout with white bath panel
Chrome-effect mixer taps
Outside tap to all gardens
Tiling-
Bathroom wall tiles at full height around bath/shower
En-suite wall tiles at full height to shower cubicle with splashback above hand basin
Cloakroom - Tiles over sink
Joinery-
Skirting and architraves – Satinwood (White)
Internal door flush veneer with tubular standard handle in chrome
UPVC double-glazed windows throughout
Timber staircase painted white
Other Items-
Front garden landscaped and turfed where applicable
Rear garden cleared, rotavated and topsoiled
All internal walls painted in Dulux Off White
Natural Riven paving slabs to paths and patios
BT Fibre Broadband to all plots
Predicted Epc- B -
Viewings - Strictly by Durrants Halesworth
Brochures
Plot 3, Jubilee Way, Holton- COUNCIL TAXA payment made to your local authority in order to pay for local services like schools, libraries, and refuse collection. The amount you pay depends on the value of the property.Read more about council Tax in our glossary page.
- Band: TBC
- PARKINGDetails of how and where vehicles can be parked, and any associated costs.Read more about parking in our glossary page.
- Yes
- GARDENA property has access to an outdoor space, which could be private or shared.
- Yes
- ACCESSIBILITYHow a property has been adapted to meet the needs of vulnerable or disabled individuals.Read more about accessibility in our glossary page.
- Ask agent
Energy performance certificate - ask agent
Plot 3, Jubilee Way, Holton
Add an important place to see how long it'd take to get there from our property listings.
__mins driving to your place
Get an instant, personalised result:
- Show sellers you’re serious
- Secure viewings faster with agents
- No impact on your credit score
Your mortgage
Notes
Staying secure when looking for property
Ensure you're up to date with our latest advice on how to avoid fraud or scams when looking for property online.
Visit our security centre to find out moreDisclaimer - Property reference 33824600. The information displayed about this property comprises a property advertisement. Rightmove.co.uk makes no warranty as to the accuracy or completeness of the advertisement or any linked or associated information, and Rightmove has no control over the content. This property advertisement does not constitute property particulars. The information is provided and maintained by Durrants, Southwold. Please contact the selling agent or developer directly to obtain any information which may be available under the terms of The Energy Performance of Buildings (Certificates and Inspections) (England and Wales) Regulations 2007 or the Home Report if in relation to a residential property in Scotland.
*This is the average speed from the provider with the fastest broadband package available at this postcode. The average speed displayed is based on the download speeds of at least 50% of customers at peak time (8pm to 10pm). Fibre/cable services at the postcode are subject to availability and may differ between properties within a postcode. Speeds can be affected by a range of technical and environmental factors. The speed at the property may be lower than that listed above. You can check the estimated speed and confirm availability to a property prior to purchasing on the broadband provider's website. Providers may increase charges. The information is provided and maintained by Decision Technologies Limited. **This is indicative only and based on a 2-person household with multiple devices and simultaneous usage. Broadband performance is affected by multiple factors including number of occupants and devices, simultaneous usage, router range etc. For more information speak to your broadband provider.
Map data ©OpenStreetMap contributors.








