
Boldre, Lymington, SO41

- PROPERTY TYPE
Country House
- BEDROOMS
11
- BATHROOMS
6
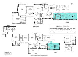
- SIZE
13,000 sq ft
1,208 sq m
- TENUREDescribes how you own a property. There are different types of tenure - freehold, leasehold, and commonhold.Read more about tenure in our glossary page.
Freehold
Key features
- Outstanding Grade II* Listed Victorian country house
- Commanding views over its own land extending to 22 acres
- Multiple additional buildings including workshop, staff accommodation and stables
- Lovingly restored to a high standard throughout.
Description
Discreetly nestled within 22 acres of enchanting parkland and mature woodland, Boldre Grange is a distinguished Grade II* listed country house of rare provenance and exceptional character. This private estate offers the best of both worlds—peaceful seclusion within the New Forest National Park, while being just five minutes from Brockenhurst Station (direct to London Waterloo in approx. 1hr 40mins) and a short drive from the charming Georgian sailing town of Lymington.
Designed in 1872 by renowned architect Richard Norman Shaw RA for landowner John Lane Shrubb, Boldre Grange is a defining example of the English Domestic Revival style that laid the foundations of the Arts & Crafts Movement. Shaw’s hallmark features—such as asymmetrical façades, timber-framed gables, high chimneys, mullioned windows, and quality craftsmanship—are on full display. Architectural drawings are housed at the Royal Institute of British Architects, and the property is noted in Nikolaus Pevsner’s architectural guides.
The current owners have, over 20 years, thoughtfully reinstated Boldre Grange as a grand single residence while maintaining flexibility for division—ideal for extended family, staff accommodation, or generating rental income. The estate includes a separate two-bedroom cottage with private gardens and its own access.
The main house extends to over 10,000 sq ft of elegantly proportioned accommodation, filled with natural light and period detailing. Grand reception spaces include an impressive entrance hall with stone fireplace and galleried staircase, a formal drawing room with south-facing French doors to the terrace, and a richly panelled dining room. The original billiard room has been transformed into a spectacular open-plan kitchen/dining/living space with a barrel ceiling, oak and flagstone floors, underfloor heating, a bespoke Smallbone walnut kitchen with integrated appliances, and a re-enamelled Aga—designed for both luxurious daily living and stylish entertaining.
Upstairs, two principal bedroom suites enjoy south-facing views across the grounds, each with private dressing rooms, fireplaces, and generous en suites. Four further bedrooms, two family bathrooms, and a charming second-floor suite offer abundant accommodation. Original features abound, from parquet and flagstone floors to stone fireplaces, detailed joinery, and elegant staircases.
The grounds are as captivating as the house itself. A long private drive winds through woodland to reveal the property framed by copper beeches, sweeping lawns, and seasonal drifts of daffodils and bluebells. Formal gardens include a yew walk, walled terrace garden with pond, ha-ha, orchard, and Victorian features. Beyond are wildflower meadows, mature woodland, and a raised viewing platform among Scots pines, offering uninterrupted vistas across the estate’s own landscape.
Additional outbuildings include a double garage with office, two bedrooms, and wet room, as well as a courtyard with utility rooms and workshops. Each section of the estate is independently serviced, allowing for operational flexibility and privacy.
Boldre Grange is a rare and important country house offering refined historic charm, modern comfort, and total privacy in one of Hampshire’s most desirable settings.
Tenure: Freehold
Council Tax Band: G
Local Authority: New Forest
Brochures
Brochure 1- COUNCIL TAXA payment made to your local authority in order to pay for local services like schools, libraries, and refuse collection. The amount you pay depends on the value of the property.Read more about council Tax in our glossary page.
- Band: G
- PARKINGDetails of how and where vehicles can be parked, and any associated costs.Read more about parking in our glossary page.
- Garage,Driveway
- GARDENA property has access to an outdoor space, which could be private or shared.
- Yes
- ACCESSIBILITYHow a property has been adapted to meet the needs of vulnerable or disabled individuals.Read more about accessibility in our glossary page.
- Ask agent
Boldre, Lymington, SO41
Add an important place to see how long it'd take to get there from our property listings.
__mins driving to your place
Get an instant, personalised result:
- Show sellers you’re serious
- Secure viewings faster with agents
- No impact on your credit score
Your mortgage
Notes
Staying secure when looking for property
Ensure you're up to date with our latest advice on how to avoid fraud or scams when looking for property online.
Visit our security centre to find out moreDisclaimer - Property reference RX553700. The information displayed about this property comprises a property advertisement. Rightmove.co.uk makes no warranty as to the accuracy or completeness of the advertisement or any linked or associated information, and Rightmove has no control over the content. This property advertisement does not constitute property particulars. The information is provided and maintained by Moveli, London & Country. Please contact the selling agent or developer directly to obtain any information which may be available under the terms of The Energy Performance of Buildings (Certificates and Inspections) (England and Wales) Regulations 2007 or the Home Report if in relation to a residential property in Scotland.
*This is the average speed from the provider with the fastest broadband package available at this postcode. The average speed displayed is based on the download speeds of at least 50% of customers at peak time (8pm to 10pm). Fibre/cable services at the postcode are subject to availability and may differ between properties within a postcode. Speeds can be affected by a range of technical and environmental factors. The speed at the property may be lower than that listed above. You can check the estimated speed and confirm availability to a property prior to purchasing on the broadband provider's website. Providers may increase charges. The information is provided and maintained by Decision Technologies Limited. **This is indicative only and based on a 2-person household with multiple devices and simultaneous usage. Broadband performance is affected by multiple factors including number of occupants and devices, simultaneous usage, router range etc. For more information speak to your broadband provider.
Map data ©OpenStreetMap contributors.






