
2 bedroom semi-detached house for sale
The Street, Poslingford, Sudbury

- PROPERTY TYPE
Semi-Detached
- BEDROOMS
2
- BATHROOMS
1
- SIZE
540 sq ft
50 sq m
- TENUREDescribes how you own a property. There are different types of tenure - freehold, leasehold, and commonhold.Read more about tenure in our glossary page.
Freehold
Key features
- Two Generous Bedrooms
- Sitting Room With Feature Fireplace
- Fitted Kitchen
- Garden In Excess of 100ft
- Ground Floor Bathroom
- Quiet Village Location
- Close To The Town Of Clare
- No Onward Chain
- Oil Fired Central Heating
Description
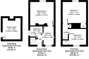
Outside area benefits from former wash house 11' 3" x 9' 6", ideal for conversion to home office, workshop.No onward chain.
A delightful period cottage located in the quiet Suffolk Village of Poslignford. The property sits in an elevated position and benefits from features including a garden in excess of 100ft, two generous bedrooms and a spacious sitting room with feature fireplace. Outside area benefits from former wash house 11' 3" x 9' 6", ideal for conversion to home office, workshop.
No onward chain.
* Two Generous Bedrooms
* Sitting Room With Feature Fireplace
* Fitted Kitchen
* Garden In Excess of 100ft
* Ground Floor Bathroom
* Quiet Village Location
* Close To The Town Of Clare
* No Onward Chain
* Oil Fired Central Heating
Poslingford is a village and civil parish in the West Suffolk district of Suffolk in eastern England, near to a stream that feeds the into the Chilton stream and then the Suffolk Stour. The main part of the village follows the line of The Street (the main road through to the village of Stansfield). Poslingford is only a short car journey from the Historic town of Clare which provides plenty of local amenities.
Entrance Into: -
Rear Hallway - with stairs to first floor, door to bathroom, door way to:
Kitchen - 2.97m x 1.63m - Fitted with a range of base and eye level units with stainless steel sink, space and plumbing for electric cooker, washing machine and under counter fridge, floor mounted oil fired boiler and window to the rear overlooking the garden.
Sitting Room - 3.81m x 3.76m - a generous room with a cast-iron log burning stove upon a brick hearth with shelving and storage built into the chimney recess, window to the front.
Bathroom - Fitted three piece suite comprising a panelled bath with shower attachment over, WC, vanity sink unit and part tiled walls.
First Floor -
Landing - Built-in storage cupboard and rooms off.
Bedroom 1 - 3.81m x 3.38m - A spacious double bedroom with built-in storage cupboard and a window to the front.
Bedroom 2 - 2.79m x 2.54m - A good-sized second bedroom with over stairs storage cupboard and window to rear overlooking the garden.
Outside - The front garden has steps leading up to a pathway providing access to the rear of the property, the front is manly laid to lawn with mature shrubs. The rear features a patio which leads onto a further seating area which is laid with slate chippings. The garden is mainly laid to lawn measuring in all approximately 100ft. Outside area benefits from former wash house 11' 3" x 9' 6", ideal for conversion to home office, workshop.
Council Tax Band - B
Local Authority - West Suffolk
Viewings - By appointment with the agents.
Brochures
The Street, Poslingford, Sudbury- COUNCIL TAXA payment made to your local authority in order to pay for local services like schools, libraries, and refuse collection. The amount you pay depends on the value of the property.Read more about council Tax in our glossary page.
- Band: B
- PARKINGDetails of how and where vehicles can be parked, and any associated costs.Read more about parking in our glossary page.
- Communal
- GARDENA property has access to an outdoor space, which could be private or shared.
- Yes
- ACCESSIBILITYHow a property has been adapted to meet the needs of vulnerable or disabled individuals.Read more about accessibility in our glossary page.
- Ask agent
The Street, Poslingford, Sudbury
Add an important place to see how long it'd take to get there from our property listings.
__mins driving to your place
Get an instant, personalised result:
- Show sellers you’re serious
- Secure viewings faster with agents
- No impact on your credit score
Your mortgage
Notes
Staying secure when looking for property
Ensure you're up to date with our latest advice on how to avoid fraud or scams when looking for property online.
Visit our security centre to find out moreDisclaimer - Property reference 33828250. The information displayed about this property comprises a property advertisement. Rightmove.co.uk makes no warranty as to the accuracy or completeness of the advertisement or any linked or associated information, and Rightmove has no control over the content. This property advertisement does not constitute property particulars. The information is provided and maintained by Jamie Warner Estate Agents, Haverhill. Please contact the selling agent or developer directly to obtain any information which may be available under the terms of The Energy Performance of Buildings (Certificates and Inspections) (England and Wales) Regulations 2007 or the Home Report if in relation to a residential property in Scotland.
*This is the average speed from the provider with the fastest broadband package available at this postcode. The average speed displayed is based on the download speeds of at least 50% of customers at peak time (8pm to 10pm). Fibre/cable services at the postcode are subject to availability and may differ between properties within a postcode. Speeds can be affected by a range of technical and environmental factors. The speed at the property may be lower than that listed above. You can check the estimated speed and confirm availability to a property prior to purchasing on the broadband provider's website. Providers may increase charges. The information is provided and maintained by Decision Technologies Limited. **This is indicative only and based on a 2-person household with multiple devices and simultaneous usage. Broadband performance is affected by multiple factors including number of occupants and devices, simultaneous usage, router range etc. For more information speak to your broadband provider.
Map data ©OpenStreetMap contributors.





