2 bedroom detached house for sale
Eshton Hall, Gargrave

- PROPERTY TYPE
Detached
- BEDROOMS
2
- BATHROOMS
2
- SIZE
Ask agent
Key features
- Detached house
- Within the grounds of Eshton Hall
- EPC Rating C
- Two allocated car parking spaces
- Double glazed windows and LPG heating
Description
Location - Surrounded by open countryside and with fantastic walks and scenery on the door step, Eshton Hall is located a mile from the desirable and pretty village of Gargrave on the edge of the Yorkshire Dales National Park and includes a train station with regular services to Skipton and onwards to Bradford and Leeds, primary school, a range of local shops including a supermarket, three public houses, active village hall, large village green, a church and a regular bus service. Only five miles from Skipton, the property is within comfortable travelling distance of major road networks of West Yorkshire and East Lancashire and their business centres. The historic market town of Skipton, famous for its four days a week open street market, provides comprehensive shopping and leisure facilities and is close to the popular holiday destinations of Grassington, Malham, and Bolton Abbey.
Eshton Hall - Set in approximately 2.7 acres of well maintained communal grounds the Eshton Hall estate has views over the surrounding countryside and benefits from security access via large automatic gates from the road.
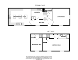
Description - Woodland Cottage (the only detached property at Eshton Hall) is a very well maintained stone built house with LPG central heating and timber double glazed windows throughout. With superb dining kitchen, living room, laundry room and bathroom at ground floor level, the property also offers two double bedrooms and ensuite shower room at first floor. In more detail the property comprises:
Entrance Hall - Part glazed timber door leads into the entrance hallway, with timber floor covering and storage cupboard housing the hot water cylinder. Doors lead to the living room, kitchen diner, laundry room and bathroom.
Living Room - 4.30m x 4.18m (14'1" x 13'8") - Well proportioned living room with windows to 2 elevations, ceiling coving and feature contemporary electric stove.
Bathroom - Well presented bathroom comprising pedestal wash hand basin, high level WC and panel bath with thermostatic shower over and folding shower screen. recessed ceiling lights, extractor fan, full wall tiling, timber floor covering and white ladder style towel heater.
Laundry - 2.91m x 2.66m (max) (9'6" x 8'8" (max)) - Comprising a range of cream gloss wall and base units with grey laminate work surface, 1.5 bowl stainless steel sink with mixer tap and under counter space and plumbing for a washing machine and space for a tumble dryer. Timber floor covering and wall mounted boiler.
Kitchen/Diner - 5.55m x 4.18m (18'2" x 13'8") - A superb light and airy kitchen with 3 velux style roof windows and space for a large dining table. Comprising a range of cream wall and base units with granite worksurfaces over, 1.5 bowl sink and 6 ring AGA gas range with 2 ovens and grill. Integrated dishwasher, fridge and freezer. Feature contemporary electric stove and timber floor covering.
Split Landing - Stairs from the entrance hall lead up to the first floor landing with split staircases leading to both bedrooms. Storage cupboard currently used as a wardrobe.
Bedroom One - 6.62m x 2.95m (max) (21'8" x 9'8" (max)) - Formerly 2 bedrooms which have now been combined into one, this double bedroom comprises three windows overlooking the courtyard area, an over stairs cupboard and loft access hatch. Door leads into the ensuite.
Ensuite Shower Room - Comprising a shower cubicle with thermostatic controls, pedestal wash hand basin and high level WC. Recessed ceiling lights, fully tiled walls, extractor fan and a white ladder style towel heater.
Bedroom Two - 3.26m x 2.96m (10'8" x 9'8") - Double bedroom with window overlooking the courtyard.
Outside - Externally the property benefits from a storage shed adjacent to the building, and also two dedicated car parking spaces. The property overlooks a courtyard area which is illuminated at night. The Eshton Hall development is accessed via secure iron gates and additional parking is available for visitors.
Council Tax & Tenure - Council Tax: Band E
Tenure: Leasehold by way of a 999 year lease from July 2005 on a peppercorn rent
Other Information - The property will suit anyone who requires a beautiful home in a peaceful, stunning environment without any external maintenance costs. A management company manages the common areas of the entire estate, which includes gardening, external door/ window repairs and painting, window cleaning, buildings insurance, fire alarm and automatic gate maintenance, etc. The service charge per annum is currently £3,676.82 which equates to just over £70 per week.
The property is connected to a communal LPG system which is recharged to the current owner by way of a sub meter on the basis of units used.
Viewing - Strictly by appointment through the agents Carling Jones - contact a member of the team at the Skipton Office on
Services - We have not been able to test the equipment, services or installations in the property (including heating and hot water systems) and recommend that prospective purchasers arrange for a qualified person to check the relevant installations before entering into any commitment
Agents Note & Disclaimer - These details do not form part of an offer or contract. They are intended to give a fair description of the property, but neither the vendor nor Carling Jones accept responsibility for any errors it may contain. Purchasers or prospective tenants should satisfy themselves by inspecting the property
Anti Money Laundering Regulations - To enable us to comply with the expanded Money Laundering Regulations we are required to obtain proof of how the property purchase is to be financed as well as identification from all prospective buyers. Buyers are asked to please assist with this so that there is no delay in agreeing a sale. The cost payable by the successful buyer(s) for this is £12 (inclusive of VAT) per named buyer and is paid to the firm that administers the money laundering ID checks, Movebutler. Please note the property will not be marked as sold subject to contract until appropriate identification has been provided and all AML checks are completed.
Brochures
Eshton Hall, GargraveBrochure- COUNCIL TAXA payment made to your local authority in order to pay for local services like schools, libraries, and refuse collection. The amount you pay depends on the value of the property.Read more about council Tax in our glossary page.
- Band: E
- PARKINGDetails of how and where vehicles can be parked, and any associated costs.Read more about parking in our glossary page.
- Yes
- GARDENA property has access to an outdoor space, which could be private or shared.
- Ask agent
- ACCESSIBILITYHow a property has been adapted to meet the needs of vulnerable or disabled individuals.Read more about accessibility in our glossary page.
- Ask agent
Eshton Hall, Gargrave
Add an important place to see how long it'd take to get there from our property listings.
__mins driving to your place
Get an instant, personalised result:
- Show sellers you’re serious
- Secure viewings faster with agents
- No impact on your credit score
Your mortgage
Notes
Staying secure when looking for property
Ensure you're up to date with our latest advice on how to avoid fraud or scams when looking for property online.
Visit our security centre to find out moreDisclaimer - Property reference 33834248. The information displayed about this property comprises a property advertisement. Rightmove.co.uk makes no warranty as to the accuracy or completeness of the advertisement or any linked or associated information, and Rightmove has no control over the content. This property advertisement does not constitute property particulars. The information is provided and maintained by Carling Jones, Skipton. Please contact the selling agent or developer directly to obtain any information which may be available under the terms of The Energy Performance of Buildings (Certificates and Inspections) (England and Wales) Regulations 2007 or the Home Report if in relation to a residential property in Scotland.
*This is the average speed from the provider with the fastest broadband package available at this postcode. The average speed displayed is based on the download speeds of at least 50% of customers at peak time (8pm to 10pm). Fibre/cable services at the postcode are subject to availability and may differ between properties within a postcode. Speeds can be affected by a range of technical and environmental factors. The speed at the property may be lower than that listed above. You can check the estimated speed and confirm availability to a property prior to purchasing on the broadband provider's website. Providers may increase charges. The information is provided and maintained by Decision Technologies Limited. **This is indicative only and based on a 2-person household with multiple devices and simultaneous usage. Broadband performance is affected by multiple factors including number of occupants and devices, simultaneous usage, router range etc. For more information speak to your broadband provider.
Map data ©OpenStreetMap contributors.




