
Cleeve Lodge Road, Downend

- PROPERTY TYPE
Detached Bungalow
- BEDROOMS
3
- BATHROOMS
1
- SIZE
Ask agent
- TENUREDescribes how you own a property. There are different types of tenure - freehold, leasehold, and commonhold.Read more about tenure in our glossary page.
Freehold
Key features
- No onward chain
- 3 double beds
- Large plot
- Detached
- Double garage
- Off street parking
- EPC - TBC
Description
Overview
This property offers a great opportunity to put your own stamp on a well loved family home in a popular part of BS16. While also having no onward chain.
The property is split down the middle by a large entrance hall ,at the front of the building either side of the hallway you will find 2 double bedrooms, both benefiting from bay windows.
Moving back through the property you will find a large living room which leads to a well maintained conservatory and to the adjacent side a good sized kitchen and bathroom.
Continuing upstairs you will find the 3rd bedroom which also is a double and another large room currently being used for storage with another bed set up.
Outside
Externally the property comprises of a large double garage with a workshop, side access, off street parking and a well presented front garden. To the rear you will find a large plot laid mainly to lawn with patio areas off the house and garage.
Location
This perfectly situated family home is in the heart of the beloved Downend. Just walking distance to the High Street this property is also close to local schools, amenities and major transport links such as the M32, Bristol Ring Road and ever popular Bristol to Bath cycle path.
Material information (provided by owner)
Freehold
Council tax band - TBC
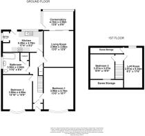
Living room
3.8m x 3.9m
Kitchen
2.79m x 5.2m
Bathroom
2.8m x 3.5m
Conservatory
2.5m x 4.1m
Bedroom 1
4.75m x 3.9m
Bedroom 2
4.5m x 3.9m
Bedroom 3
3.27m x 3.27m
Loft room
5.34m x 2.51m
Workshop
2.5m x 4.3m
Garage
4.8m x 4.3m
Brochures
Brochure 1- COUNCIL TAXA payment made to your local authority in order to pay for local services like schools, libraries, and refuse collection. The amount you pay depends on the value of the property.Read more about council Tax in our glossary page.
- Band: E
- PARKINGDetails of how and where vehicles can be parked, and any associated costs.Read more about parking in our glossary page.
- Yes
- GARDENA property has access to an outdoor space, which could be private or shared.
- Yes
- ACCESSIBILITYHow a property has been adapted to meet the needs of vulnerable or disabled individuals.Read more about accessibility in our glossary page.
- No wheelchair access
Energy performance certificate - ask agent
Cleeve Lodge Road, Downend
Add an important place to see how long it'd take to get there from our property listings.
__mins driving to your place
Get an instant, personalised result:
- Show sellers you’re serious
- Secure viewings faster with agents
- No impact on your credit score
Affordability
Notes
Staying secure when looking for property
Ensure you're up to date with our latest advice on how to avoid fraud or scams when looking for property online.
Visit our security centre to find out moreDisclaimer - Property reference ODE-86254339. The information displayed about this property comprises a property advertisement. Rightmove.co.uk makes no warranty as to the accuracy or completeness of the advertisement or any linked or associated information, and Rightmove has no control over the content. This property advertisement does not constitute property particulars. The information is provided and maintained by Ocean, Downend. Please contact the selling agent or developer directly to obtain any information which may be available under the terms of The Energy Performance of Buildings (Certificates and Inspections) (England and Wales) Regulations 2007 or the Home Report if in relation to a residential property in Scotland.
*This is the average speed from the provider with the fastest broadband package available at this postcode. The average speed displayed is based on the download speeds of at least 50% of customers at peak time (8pm to 10pm). Fibre/cable services at the postcode are subject to availability and may differ between properties within a postcode. Speeds can be affected by a range of technical and environmental factors. The speed at the property may be lower than that listed above. You can check the estimated speed and confirm availability to a property prior to purchasing on the broadband provider's website. Providers may increase charges. The information is provided and maintained by Decision Technologies Limited. **This is indicative only and based on a 2-person household with multiple devices and simultaneous usage. Broadband performance is affected by multiple factors including number of occupants and devices, simultaneous usage, router range etc. For more information speak to your broadband provider.
Map data ©OpenStreetMap contributors.







