Marconi Place, Friern Barnet, London, N11
- SIZE AVAILABLE
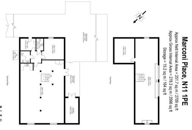
2,996 sq ft
278 sq m
- SECTOR
High street retail property to lease
Lease details
- Lease available date:
- Ask agent
Key features
- Great Location
- Many Original Features
- Open Plan
- 3 Phase Power
- Allocated Parking
- New Lease
Description
Property benefits 3 phase power ,boardroom, kitchenette, perimeter trunking with cat.5 data cabling, cat 2 lighting, entry/alarm system.
160 sq ft approx. storage in a shed attached to the building
Unit benefits 6 secure allocated parking spaces, 1 disabled bay.
Location
Set on Marconi Place within a mainly residential area close to the A1110 Arnos Grove and the A406, providing excellent links to Central London.
New Southgate Overground is a short distance away.
Business Rates
Rateable value - £22,500 (as taken from Gov.uk)
This is not the amount you will pay. The rateable value is used to calculate your rates bill.
Please refer to the Local Authority for more information on rates
Legal Costs
Each side to bear their own legal fees
Tenure
By way of new FR and I Lease with periodic mechanisms for upward only rent reviews
EPC
Energy Rating D 87
Viewing
Via the owners sole agents PSS Commercial.
VAT
Property is VAT elected
Energy Performance Certificates
Photo 14Brochures
Marconi Place, Friern Barnet, London, N11
NEAREST STATIONS
Distances are straight line measurements from the centre of the postcode- Arnos Grove Station0.2 miles
- New Southgate Station0.3 miles
- Bounds Green Station0.9 miles
Notes
Disclaimer - Property reference 1763LH. The information displayed about this property comprises a property advertisement. Rightmove.co.uk makes no warranty as to the accuracy or completeness of the advertisement or any linked or associated information, and Rightmove has no control over the content. This property advertisement does not constitute property particulars. The information is provided and maintained by Paul Simon Seaton Commercial Estate Agents Ltd, London. Please contact the selling agent or developer directly to obtain any information which may be available under the terms of The Energy Performance of Buildings (Certificates and Inspections) (England and Wales) Regulations 2007 or the Home Report if in relation to a residential property in Scotland.
Map data ©OpenStreetMap contributors.





