
1 bedroom flat for sale
Old Street, Clevedon, North Somerset

- PROPERTY TYPE
Flat
- BEDROOMS
1
- BATHROOMS
1
- SIZE
Ask agent
Key features
- Old Street
- Clevedon
- First floor apartment
- One bedroom
- Own entrance
- Living room
- No chain
- Leasehold
- EPC - D
Description
Overview
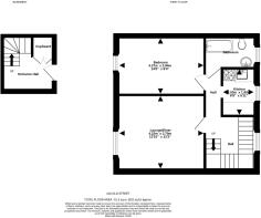
As you walk through the entrance door, there is a hall with understairs storage cupboard supplying an outlet for a washing machine and stairs.
First floor has a separate living room, fitted kitchen with cooker and hob, 3 piece bathroom suite with shower over bath and a double bedroom.
Outside
The apartment has its own front entrance, which is located to the right hand side of the property.
Location
Situated within a short walk to the popular Clevedon High Street, where you will find a variety of shops,, cafe's and restaurants. Clevedon hospital is located down the road. Clevedon has its own beautiful promenade and play park, where you can enjoy walks along the sea front.
We think...
This apartment is for buy to let investors, the current tenant is paying an £850 per month rental.
Material information (provided by owner)
Leasehold. The lease was set up in 2023 with a 999 year lease, with 997 years remaining. Management charge is £51.58 per month. Council Tax Band A.
Brochures
Brochure 1- COUNCIL TAXA payment made to your local authority in order to pay for local services like schools, libraries, and refuse collection. The amount you pay depends on the value of the property.Read more about council Tax in our glossary page.
- Band: A
- PARKINGDetails of how and where vehicles can be parked, and any associated costs.Read more about parking in our glossary page.
- Ask agent
- GARDENA property has access to an outdoor space, which could be private or shared.
- Ask agent
- ACCESSIBILITYHow a property has been adapted to meet the needs of vulnerable or disabled individuals.Read more about accessibility in our glossary page.
- No wheelchair access
Old Street, Clevedon, North Somerset
Add an important place to see how long it'd take to get there from our property listings.
__mins driving to your place
Get an instant, personalised result:
- Show sellers you’re serious
- Secure viewings faster with agents
- No impact on your credit score
Your mortgage
Notes
Staying secure when looking for property
Ensure you're up to date with our latest advice on how to avoid fraud or scams when looking for property online.
Visit our security centre to find out moreDisclaimer - Property reference OPV-89278873. The information displayed about this property comprises a property advertisement. Rightmove.co.uk makes no warranty as to the accuracy or completeness of the advertisement or any linked or associated information, and Rightmove has no control over the content. This property advertisement does not constitute property particulars. The information is provided and maintained by Ocean, Portishead. Please contact the selling agent or developer directly to obtain any information which may be available under the terms of The Energy Performance of Buildings (Certificates and Inspections) (England and Wales) Regulations 2007 or the Home Report if in relation to a residential property in Scotland.
*This is the average speed from the provider with the fastest broadband package available at this postcode. The average speed displayed is based on the download speeds of at least 50% of customers at peak time (8pm to 10pm). Fibre/cable services at the postcode are subject to availability and may differ between properties within a postcode. Speeds can be affected by a range of technical and environmental factors. The speed at the property may be lower than that listed above. You can check the estimated speed and confirm availability to a property prior to purchasing on the broadband provider's website. Providers may increase charges. The information is provided and maintained by Decision Technologies Limited. **This is indicative only and based on a 2-person household with multiple devices and simultaneous usage. Broadband performance is affected by multiple factors including number of occupants and devices, simultaneous usage, router range etc. For more information speak to your broadband provider.
Map data ©OpenStreetMap contributors.





