
3 bedroom detached house for sale
Pittman Drive, Basildon, SS16

- PROPERTY TYPE
Detached
- BEDROOMS
3
- BATHROOMS
3
- SIZE
Ask agent
- TENUREDescribes how you own a property. There are different types of tenure - freehold, leasehold, and commonhold.Read more about tenure in our glossary page.
Ask agent
Key features
- Detached home in cul-de-sac location comprising just 11 properties
- Open plan kitchen, dining & living area
- Separate spacious living room
- 3 double en-suite bedrooms
- Extensive upgrades from standard build specification
- Gas central heating
- Single garage and driveway with 2 spaces
- West facing garden
- Immaculately presented throughout
- Within walking distance of the town centre, station and hospital.
Description
The ground floor boasts an open-plan kitchen, dining and seating area, a separate generous sized front-facing lounge with feature bay window and a downstairs cloakroom. Upstairs are three double bedrooms all with en-suite bathrooms with modern finishes. The master bedroom is truly exceptional, with its spacious design, large bay window and four-piece en-suite.
The interior of this home benefits from an extensive list of upgrades, including a shaker style kitchen by Symphony (complete with Silestone countertops), Hammonds fitted sliding wardrobes to bedrooms one and two, Porcelanosa bathroom tiling to all en-suites and Amtico flooring laid in a herringbone pattern throughout the downstairs spaces.
Externally, there is a generous west facing rear garden with landscaped borders, an extended patio area, external power outlets and gated side access from the driveway.
Council Tax Band - E
Tenure - Freehold
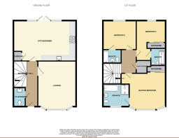
Room Measurements
Kitchen Diner - 19'5 x 13'7
Living room - 11'5 x 16'3
Bed One - 13'8 x 10'8
En-suite - 8'7 x 7'3
Bedroom Two - 9'6 x 14'5
Bedroom Three - 9'7 x 10'3
Ground Floor
The ground floor welcomes you with a bright hallway leading in to the spacious bay-fronted living room which offers a stylish and cosy space to unwind. The heart of the home is the beautifully appointed open-plan kitchen, dining, and living area to the rear, designed with entertaining in mind. This room features an upgraded Symphony shaker-style kitchen with Silestone countertops, an instant hot tap, waste disposal unit, integrated appliances including a gas hob, and a separate utility cupboard - all seamlessly tied together with Amtico herringbone flooring and French doors opening out to the garden. The downstairs also features a spacious cloakroom with WC and sink.
First Floor
On the first floor, the home continues to impress with three generous double bedrooms, each benefiting from its own ensuite bathroom. The primary bedroom is a standout, featuring a striking bay window, fitted Hammonds sliding wardrobes, and a luxurious four-piece ensuite with both bath and large shower cubicle. Bedrooms two and three are equally well-sized and finished to a high standard.
Exterior
Externally, the west-facing garden has been beautifully landscaped to include a large paved patio ideal for alfresco dining, a large lawn with landscaped borders and enclosed fencing and trees for privacy. External power sockets add function, while gated side access leads to the driveway and the 7-metre long garage, which is fully equipped with lighting and power. The front driveway easily accommodates two vehicles, ensuring ample parking. The property also benefits from the remaining term of the NHBC new build warranty, providing peace of mind for years to come.
Location
Beyond the doorstep, residents will enjoy the convenience of a highly accessible location. Just a short stroll from the town centre and C2C train station with direct links to London Fenchurch Street in just 35-40 minutes, this property is also within 5 minutes walk of Basildon Hospital, so everything needed is close to hand. A well-regarded primary school sits nearby, while the surrounding area provides a balance of green space, excellent transport links, and community amenities, making it an ideal spot for anyone looking to enjoy a modern yet connected lifestyle.
- COUNCIL TAXA payment made to your local authority in order to pay for local services like schools, libraries, and refuse collection. The amount you pay depends on the value of the property.Read more about council Tax in our glossary page.
- Ask agent
- PARKINGDetails of how and where vehicles can be parked, and any associated costs.Read more about parking in our glossary page.
- Yes
- GARDENA property has access to an outdoor space, which could be private or shared.
- Yes
- ACCESSIBILITYHow a property has been adapted to meet the needs of vulnerable or disabled individuals.Read more about accessibility in our glossary page.
- Ask agent
Pittman Drive, Basildon, SS16
Add an important place to see how long it'd take to get there from our property listings.
__mins driving to your place
Get an instant, personalised result:
- Show sellers you’re serious
- Secure viewings faster with agents
- No impact on your credit score
Your mortgage
Notes
Staying secure when looking for property
Ensure you're up to date with our latest advice on how to avoid fraud or scams when looking for property online.
Visit our security centre to find out moreDisclaimer - Property reference RX576559. The information displayed about this property comprises a property advertisement. Rightmove.co.uk makes no warranty as to the accuracy or completeness of the advertisement or any linked or associated information, and Rightmove has no control over the content. This property advertisement does not constitute property particulars. The information is provided and maintained by Gilbert & Rose, Leigh-on-sea. Please contact the selling agent or developer directly to obtain any information which may be available under the terms of The Energy Performance of Buildings (Certificates and Inspections) (England and Wales) Regulations 2007 or the Home Report if in relation to a residential property in Scotland.
*This is the average speed from the provider with the fastest broadband package available at this postcode. The average speed displayed is based on the download speeds of at least 50% of customers at peak time (8pm to 10pm). Fibre/cable services at the postcode are subject to availability and may differ between properties within a postcode. Speeds can be affected by a range of technical and environmental factors. The speed at the property may be lower than that listed above. You can check the estimated speed and confirm availability to a property prior to purchasing on the broadband provider's website. Providers may increase charges. The information is provided and maintained by Decision Technologies Limited. **This is indicative only and based on a 2-person household with multiple devices and simultaneous usage. Broadband performance is affected by multiple factors including number of occupants and devices, simultaneous usage, router range etc. For more information speak to your broadband provider.
Map data ©OpenStreetMap contributors.






