3 bedroom end of terrace house for sale
Weldon Drive, West Molesey, KT8

- PROPERTY TYPE
End of Terrace
- BEDROOMS
3
- BATHROOMS
2
- SIZE
Ask agent
- TENUREDescribes how you own a property. There are different types of tenure - freehold, leasehold, and commonhold.Read more about tenure in our glossary page.
Freehold
Key features
- NO ONWARD CHAIN
- THREE BEDROOMS
- END OF TERRACE HOME
- POTENTIAL TO EXTEND (S.T.P.P)
- SPACIOUS LIVING ROOM
- DINING ROOM
- CONSERVATORY WITH UNDERFLOOR HEATING
- MODERN KITCHEN
- MASTER BEDROOM WITH EN-SUITE SHOWER ROOM
- WIDE GARDEN PLOT
Description
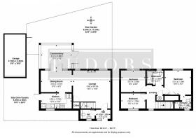
TUDORS are pleased to offer for sale this well loved and cared for three bedroom end of terrace home, which is tucked away in a quiet position in a cul de sac within the Bishop fox Way development. The property has been significantly improved by the current vendors with the recently added conservatory, engineered wood flooring and levelling of the rear garden. Offered to the market with NO ONWARD CHAIN the property does offer lots of scope and potential to extend to the side (STPP) or to the rear within permitted development.
The accommodation comprises; an entrance hallway, a downstairs WC and a bright living room with wood engineered flooring which overlooks the rear garden with archway to a dining room. The dining area in turn opens to a kitchen one way and the other onto a nicely sized conservatory with underfloor heating - Ideal area for entertainment guests. The kitchen has many eye/base level units/cupboards with worktop area and space for a free standing cooker/oven, fridge/freezer, washing machine and dishwasher. The conservatory has UPVC double glazed doors that open onto a well presented garden. Stairs from the hallway lead up to a landing with access to three generous bedrooms, master bedroom with en-suite shower room with WC and a modern family bathroom with white suite.
Externally there is a private and secluded rear garden with patio and artificial grass areas with pretty pergola area and a side access gate and a door leading from the garden directly into a garage with power/light and up/over door. To the front there is a driveway for off road parking leading to the garage. The front garden has shrub areas along with artificial grass. Other benefits include double-glazing and gas central heating. (EPC rating: ) Elmbridge Borough Council = Band E
Located in the pleasant Bishop Fox Development within easy reach of several primary schools, including Hurst Park school, Chandlers field School and St. Albans school which recently had Outstanding Ofsted report along with a newly built secondary school; Heathside. The property is located within easy reach of a towpath along the River Thames (via Cherry Orchard Road) leading to Hampton Court with its Palace, restaurants, boutiques, antiques shops and cafés. Local bus routes connect to Kingston, Walton, Bushy Park and Hampton Court train station - Oyster zone 6 - with direct trains to London Waterloo. The local football club, rowing club, sailing club, cricket club, Pavilion sports club and Hurst swimming pool are all nearby. East Molesey Cricket Club, Molesey football club, Island Farm Sailing Club, Molesey Rowing Club, The Pavilion sports club and Hurst swimming pool are just a selection of exciting sporting activities that Molesey offers.
- COUNCIL TAXA payment made to your local authority in order to pay for local services like schools, libraries, and refuse collection. The amount you pay depends on the value of the property.Read more about council Tax in our glossary page.
- Band: E
- PARKINGDetails of how and where vehicles can be parked, and any associated costs.Read more about parking in our glossary page.
- Yes
- GARDENA property has access to an outdoor space, which could be private or shared.
- Yes
- ACCESSIBILITYHow a property has been adapted to meet the needs of vulnerable or disabled individuals.Read more about accessibility in our glossary page.
- Ask agent
Energy performance certificate - ask agent
Weldon Drive, West Molesey, KT8
Add an important place to see how long it'd take to get there from our property listings.
__mins driving to your place
Get an instant, personalised result:
- Show sellers you’re serious
- Secure viewings faster with agents
- No impact on your credit score
Your mortgage
Notes
Staying secure when looking for property
Ensure you're up to date with our latest advice on how to avoid fraud or scams when looking for property online.
Visit our security centre to find out moreDisclaimer - Property reference 29022302. The information displayed about this property comprises a property advertisement. Rightmove.co.uk makes no warranty as to the accuracy or completeness of the advertisement or any linked or associated information, and Rightmove has no control over the content. This property advertisement does not constitute property particulars. The information is provided and maintained by Tudor & Co, Surrey. Please contact the selling agent or developer directly to obtain any information which may be available under the terms of The Energy Performance of Buildings (Certificates and Inspections) (England and Wales) Regulations 2007 or the Home Report if in relation to a residential property in Scotland.
*This is the average speed from the provider with the fastest broadband package available at this postcode. The average speed displayed is based on the download speeds of at least 50% of customers at peak time (8pm to 10pm). Fibre/cable services at the postcode are subject to availability and may differ between properties within a postcode. Speeds can be affected by a range of technical and environmental factors. The speed at the property may be lower than that listed above. You can check the estimated speed and confirm availability to a property prior to purchasing on the broadband provider's website. Providers may increase charges. The information is provided and maintained by Decision Technologies Limited. **This is indicative only and based on a 2-person household with multiple devices and simultaneous usage. Broadband performance is affected by multiple factors including number of occupants and devices, simultaneous usage, router range etc. For more information speak to your broadband provider.
Map data ©OpenStreetMap contributors.







